Trilocale Via Cretier 14, Verrès
€ 149.000€ 149.000 Trilocale ristrutturato con box auto
Descrizione L'appartamento, situato in una piccola palazzina con poche unità abitative, è stato recentemente ristrutturato. Si trova vicino alle scuole, a poca distanza dalla stazione dei pullman e in una posizione comoda per accedere a tutti i servizi.
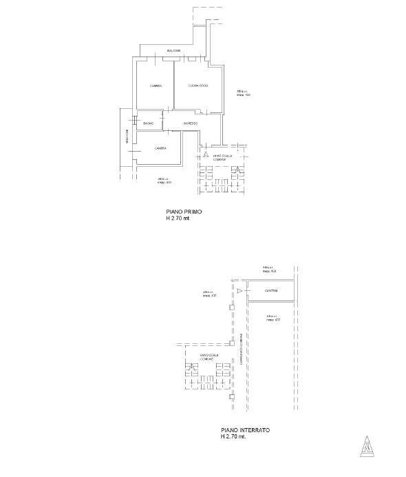
L'alloggio, posto al piano primo, ha una superficie commerciale di 94 mq e si compone di ingresso, soggiorno con angolo cottura, 2 camere da letto, bagno finestrato con doccia e 2 balconi.
Al piano interrato completano la proprietà cantine e box auto.
Inoltre, l'appartamento dispone di un parcheggio privato condominiale, un grande giardino condominiale e un montascale per disabili.
Potrai richiedere la prima consulenza gratuita per il mutuo al ns. Consulente del Credito Auxilia Finance S.p.a. Sig, Massimiliano Carta.
L'alloggio, posto al piano primo, ha una superficie commerciale di 94 mq e si compone di ingresso, soggiorno con angolo cottura, 2 camere da letto, bagno finestrato con doccia e 2 balconi.
Al piano interrato completano la proprietà cantine e box auto.
Inoltre, l'appartamento dispone di un parcheggio privato condominiale, un grande giardino condominiale e un montascale per disabili.
Potrai richiedere la prima consulenza gratuita per il mutuo al ns. Consulente del Credito Auxilia Finance S.p.a. Sig, Massimiliano Carta.
Dati principali
| Riferimento | 10549RA70345-3015 |
| Data annuncio | 09/06/2025 |
| Contratto | Vendita |
| Tipologia | Appartamento |
| Superficie | 79 m2 |
| Locali | 3 (2 camere da letto, 1 altro), 1 bagno |
| Piano | 1 |
Costi
| Prezzo | 149.000 € |
| Prezzo al m2 | 1.886 €/m2 |
Efficienza energetica
| Anno costruzione | 1973 |
| Riscaldamento | Centralizzato |
| Classe energetica | Immobile esente da certificazione energetica |
Planimetrie
Indirizzo e mappa
Via Cretier 14, Verrès
Calcolo mutuo
Prezzo di vendita:
Anticipo
20,00
Mutuo
80,00
Tasso: -+
Rata: 426 al mese
I risultati sono una stima indicativa basata sui dati inseriti e non costituiscono un’offerta finanziaria.
Inserzionista

Immobiliare Neige di Silvana Briscese
Via Mario Colliard 34, Hone
Mostra Telefono
Mostra Cellulare
Chiama
CONTATTA

