Villa via Serra, Buttigliera d'Asti
€ 350.000Ampia villa moderna con bosco di proprietà
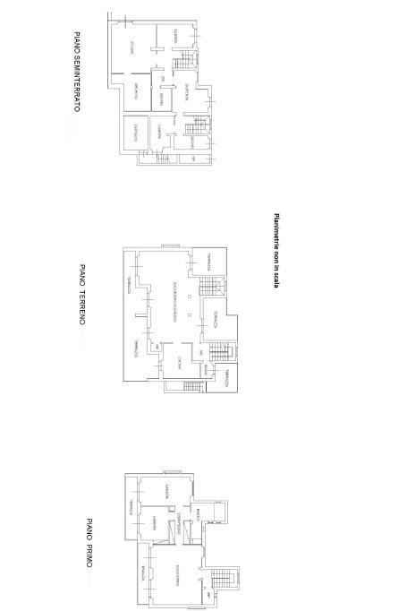
Alle porte di Buttigliera d’Asti, la villa, completamente ristrutturata all’inizio degli anni ‘90 rappresenta una soluzione abitativa comoda e funzionale, con spazi ampi e versatili pensati per accogliere le esigenze di una famiglia o di chi desidera ambienti flessibili e facilmente personalizzabili. Nel 2023 è stato realizzato un intervento di efficientamento energetico con l’installazione di nuovi camini a legna e di un termocamino, migliorando il comfort abitativo e la sostenibilità. Al piano terra si sviluppano il soggiorno con camino e la cucina con termocamino, mentre due terrazze esposte a nord offrono un piacevole rifugio fresco durante le calde giornate estive, grazie anche alla presenza del bosco che regala ombra e tranquillità. Una scala collega i diversi livelli: al primo piano si apre un secondo soggiorno con accesso al balcone esposto a sud, una camera padronale e un bagno con jacuzzi che invita a momenti di benessere e relax. Il piano semi-interrato offre due camere, una seconda cucina, due bagni e uno studio con archivio. Questi spazi possono essere utilizzati per ospitare familiari, accogliere ospiti o creare un ambiente di lavoro in tutta privacy, con la possibilità di realizzare due ingressi separati e indipendenti per una maggiore autonomia. All’esterno, la proprietà è completata da un locale tecnico e un deposito, mentre sul retro si apre il bosco privato recintato, un angolo verde ideale per chi ama la natura.
Dati principali
| Riferimento | W-02XDNF |
| Data annuncio | 04/06/2025 |
| Contratto | Vendita |
| Tipologia | Villa |
| Superficie | 410 m2 |
| Locali | più di 5 (4 camere da letto, 6 altro), 4 bagni, cucina abitabile |
| Piano | 3 totali |
| Tipo di costruzione | Signorile |
| Numero di balconi | 1 |
| Box auto | Assente |
| Arredamento | Assente |
Caratteristiche
Costi
| Prezzo | 350.000 € |
| Prezzo al m2 | 854 €/m2 |
Efficienza energetica
| Anno costruzione | 1971 |
| Stato | Ottimo |
| Riscaldamento | Autonomo |
| Classe energetica | C |
| Indice di prestazione energetica (IPE) | 175 kWh/m2 anno |
Planimetrie
Indirizzo e mappa
via Serra, Buttigliera d'Asti
Calcolo mutuo
Prezzo di vendita:
Anticipo
20,00
Mutuo
80,00
Tasso: -+
Rata: 1.001 al mese
I risultati sono una stima indicativa basata sui dati inseriti e non costituiscono un’offerta finanziaria.
Inserzionista

Engel & Völkers Asti • Monferrato
Piazza Medici 30, Asti
Mostra Telefono
Chiama
CONTATTA

