Rustico Borgata Trossieri, 5, Perrero
€ 6.500Porzione di rustico con giardino
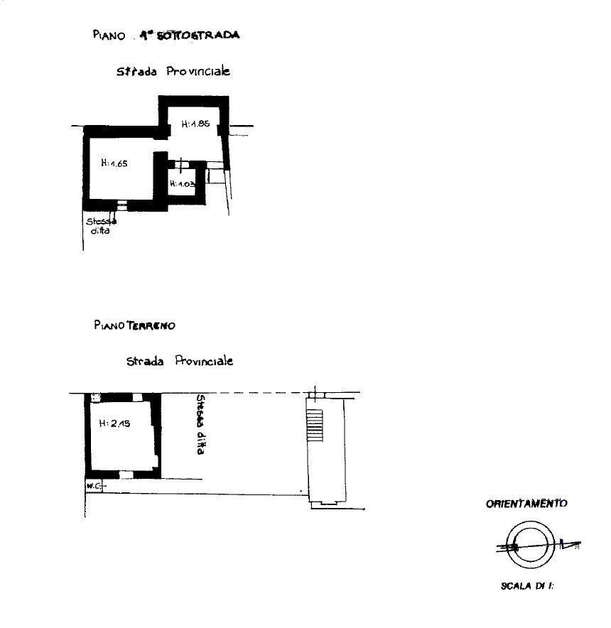
In borgata Trossieri proponiamo in vendita porzione di rustico completamente da ristrutturare. L'immobile è disposto su tre livelli e si compone al piano terra di cucina con balcone, al piano primo semi-interrano troviamo due locali con forno annesso e due cantine al secondo piano seminterrato. Completa la soluzione un giardino in comproprietà di 117mq. Splendida vista sulle montagne della Val Germanasca.
Dati principali
| Riferimento | pa-90b |
| Data annuncio | 21/05/2025 |
| Contratto | Vendita |
| Tipologia | Rustico |
| Superficie | 53 m2 |
| Locali | 3 (1 camera da letto, 2 altro), cucina abitabile |
| Piano | Su più livelli, 3 totali |
| Tipo di costruzione | Civile |
| Occupato | Libero |
| Numero di balconi | 1 |
| Box auto | Assente |
| Lati liberi | Due, paralleli |
Caratteristiche
Costi
| Prezzo | 6.500 € |
| Prezzo al m2 | 123 €/m2 |
Efficienza energetica
| Stato | Da ristrutturare |
| Riscaldamento | Autonomo |
| Tipo Impianto Di Riscaldamento | a stufa |
| Tipo Alimentazione Riscaldamento | Pellet |
| Infissi esterni | Vetro / Legno |
| Classe energetica | G |
| Indice di prestazione energetica (EP GL, NREN) | 342.38 kWh/m2 anno |
Planimetrie
Indirizzo e mappa
Borgata Trossieri, 5, Perrero
Calcolo mutuo
Prezzo di vendita:
Anticipo
20,00
Mutuo
80,00
Tasso: -+
Rata: 19 al mese
I risultati sono una stima indicativa basata sui dati inseriti e non costituiscono un’offerta finanziaria.
Inserzionista

Chisone Perosa Argentina
via Roma 14, Perosa Argentina
Mostra Telefono
Chiama
CONTATTA

