Trilocale via Giuseppe Rivani, 39, Bologna (zona Mazzini)
€ 399.442VIA RIVANI 39 - A41
NUOVA COSTRUZIONE - EDIFICI ZEB - RIVANI 39 IL TUO IMPEGNO PER IL PIANETA TROVA CASA – VIA RIVANI 39 L’intervento rappresenta l’esempio più avanzato di edilizia sostenibile oggi realizzabile, con conseguente significativa riduzione dell’impatto ambientale abbinato ad un alto benessere abitativo. La combinazione di tecnologie di ultima generazione altamente performanti, materiali ecocompatibili e soluzioni progettuali innovative contribuirà a creare un edificio all’avanguardia nel settore della edilizia green. La realizzazione prevede la costruzione del primo di tre edifici residenziali a bassissimo consumo energetico grazie all’avanzato contenuto tecnologico degli impianti, con l’obiettivo di rispettare i rigorosi criteri di sostenibilità ambientale come già previsti dai protocolli della Comunità Europea la cui entrata in vigore è prevista per il 2030. L’edificio sarà quindi conforme agli standard di certificazione energetica “EDIFICI ZEB” (Zero Energy Building), caratterizzandosi per l’uso esclusivo di energia rinnovabile e la riduzione dell’impatto ambientale in particolare per il 100% dell’ energia richiesta per il riscaldamento , per il raffrescamento e per la produzione dell’ acqua calda sanitaria. Gli impianti AUTONOMI saranno dotati di batterie di accumulo autonome per aumentare la disponibilità di energia pulita anche durante il periodo notturno in cui la produzione è assente. Classe energetica EDIFICI ZEB. VARIE TIPOLGIE DISPONIBILI, COMPLETAMENTE PERSONALIZZABILI, CON METRATURE DA MQ 65 A MQ 150. AUTORIMESSE DI VARIE METRATURE E CANTINE CON PREZZI A PARTE. Per informazioni contattare Geom. FRANCESCO SILVI al 349.3621921.
Dati principali
| Riferimento | REPORT_Rivani A41 |
| Data annuncio | 21/02/2025 |
| Contratto | Vendita |
| Tipologia | Appartamento |
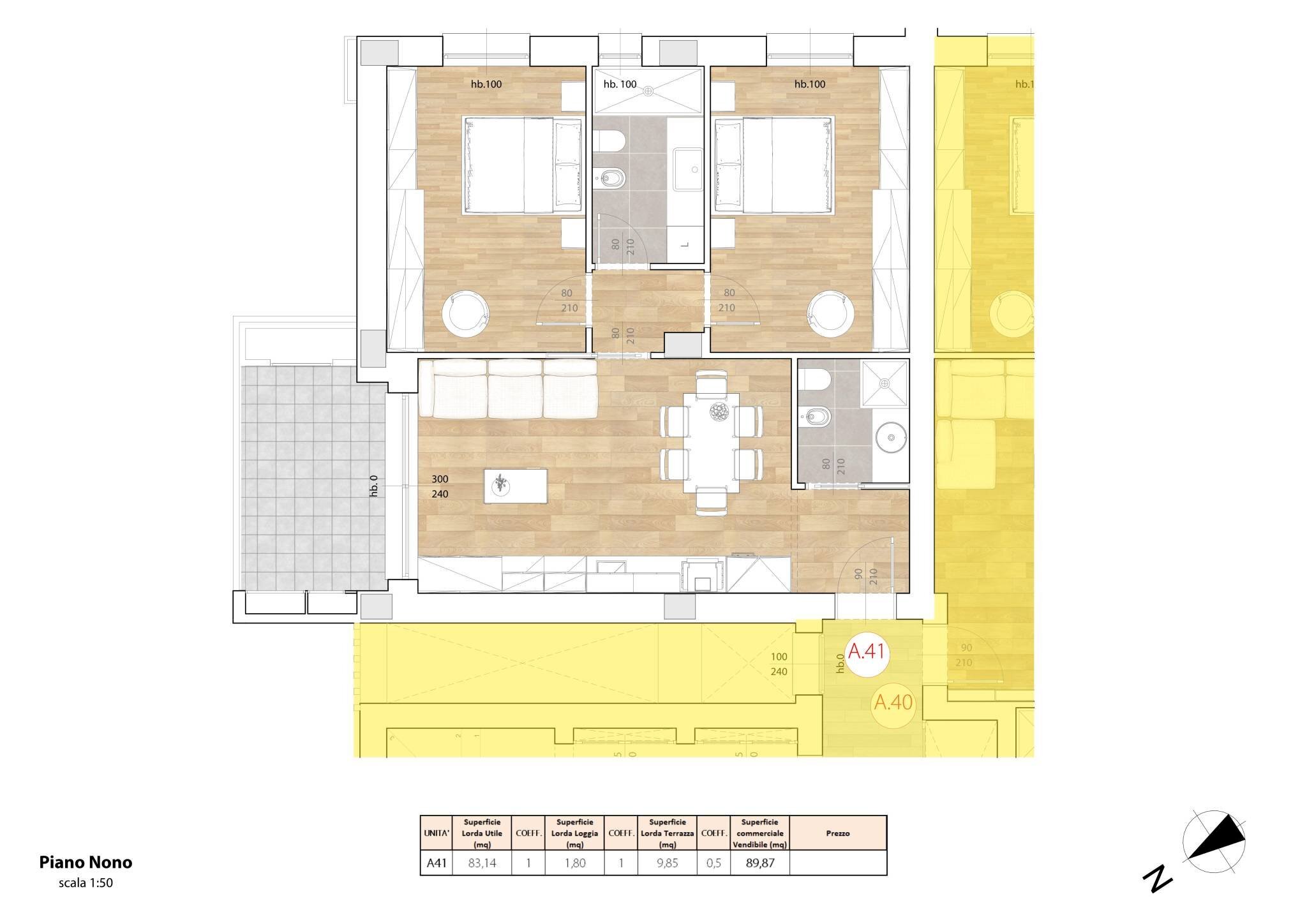
| Superficie | 90 m2 |
| Locali | 3 (2 camere da letto, 1 altro), 2 bagni, cucina angolo cottura |
| Piano | 9 di 10 totali |
| Tipo di costruzione | Signorile |
| Numero di terrazzi | 1 |
| Arredamento | Assente |
Caratteristiche
Costi
| Prezzo | 399.442 € |
| Prezzo al m2 | 4.438 €/m2 |
| Spese condominiali | € 1,00/mese |
Efficienza energetica
| Anno costruzione | 2025 |
| Stato | Nuovo |
| Riscaldamento | Autonomo |
| Classe energetica | A4 |
Planimetrie
Indirizzo e mappa
via Giuseppe Rivani, 39, Bologna
Calcolo mutuo
Prezzo di vendita:
Anticipo
20,00
Mutuo
80,00
Tasso: -+
Rata: 1.142 al mese
I risultati sono una stima indicativa basata sui dati inseriti e non costituiscono un’offerta finanziaria.
Inserzionista

Report Immobiliare
Via D'Azeglio 78, Bologna
Mostra Telefono
Chiama
CONTATTA

