Ufficio via Cascina Colombaro, 56, Cuneo (zona Donatello)
€ 295.000UFFICIO CABLATO VARIE DESTINAZIONI POSSIBILI
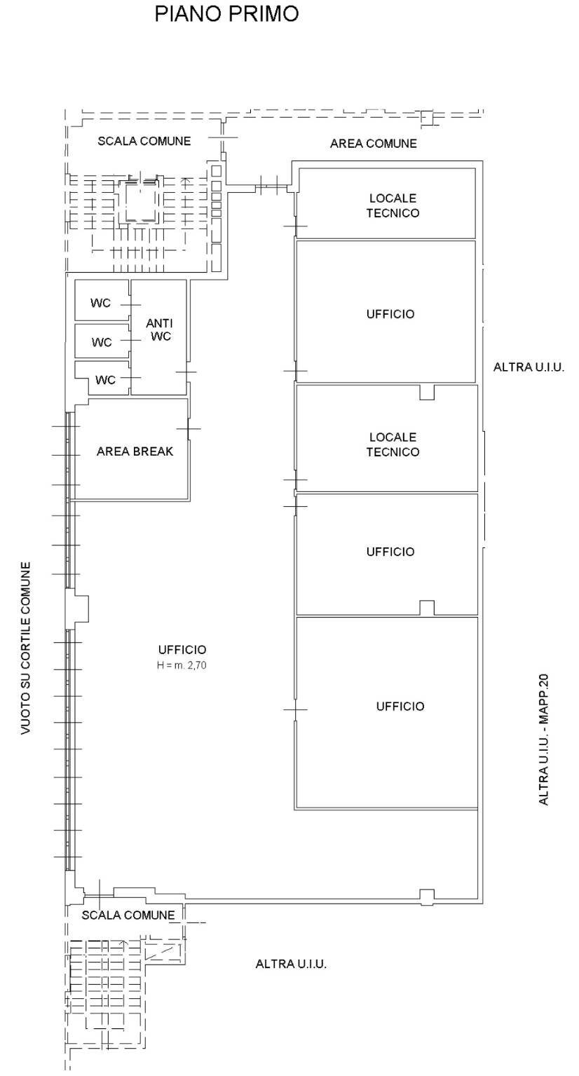
CONTATTO DIRETTO GEOM. ROBERTO NICOLINO 3356280141 CUNEO, Via Cascina Colombaro 56: Uffici di superficie catastale pari a 488 metri quadrati ideale studio medico o centro medicale, palestra. L'immobile si trova al piano primo con ascensore ed è composto da vari locali uffici, sale riunioni, sale conferenze, locali tecnici, area relax e bagni. Totalmente cablato, impianto di allarme, pavimento galleggiante, pareti divisorie modulari rimovibili, totalmente controsoffittato. Ampio parcheggio esterno, posti auto assegnati nel parcheggio sotterraneo. A pochi metri da Euronics, supermercato Ipercoop, mensa, bar e palestra.
Dati principali
| Riferimento | Via Cascina Colombaro, Cuneo |
| Data annuncio | 24/04/2025 |
| Contratto | Vendita |
| Tipologia | Ufficio |
| Superficie | 488 m2 |
| Piano | 1 totali |
| Tipo di costruzione | Media |
| Uso immobile | Commerciale |
Caratteristiche
Costi
| Prezzo | 295.000 € |
| Prezzo al m2 | 605 €/m2 |
| Spese condominiali | € 400,00/mese |
Efficienza energetica
| Riscaldamento | Centralizzato |
| Classe energetica | B |
| Indice di prestazione energetica (IPE) | 19.81 kWh/m2 anno |
Planimetrie
Indirizzo e mappa
via Cascina Colombaro, 56, Cuneo - quartiere Donatello
Calcolo mutuo
Prezzo di vendita:
Anticipo
20,00
Mutuo
80,00
Tasso: -+
Rata: 844 al mese
I risultati sono una stima indicativa basata sui dati inseriti e non costituiscono un’offerta finanziaria.
Inserzionista

Nicolino Immobiliare by N-Group
Via Roma 10, Cuneo
Mostra Telefono
Mostra Cellulare
Chiama
CONTATTA

