Appartamento Via Chiuse Nuove snc, Santa Croce Camerina
€ 280.000
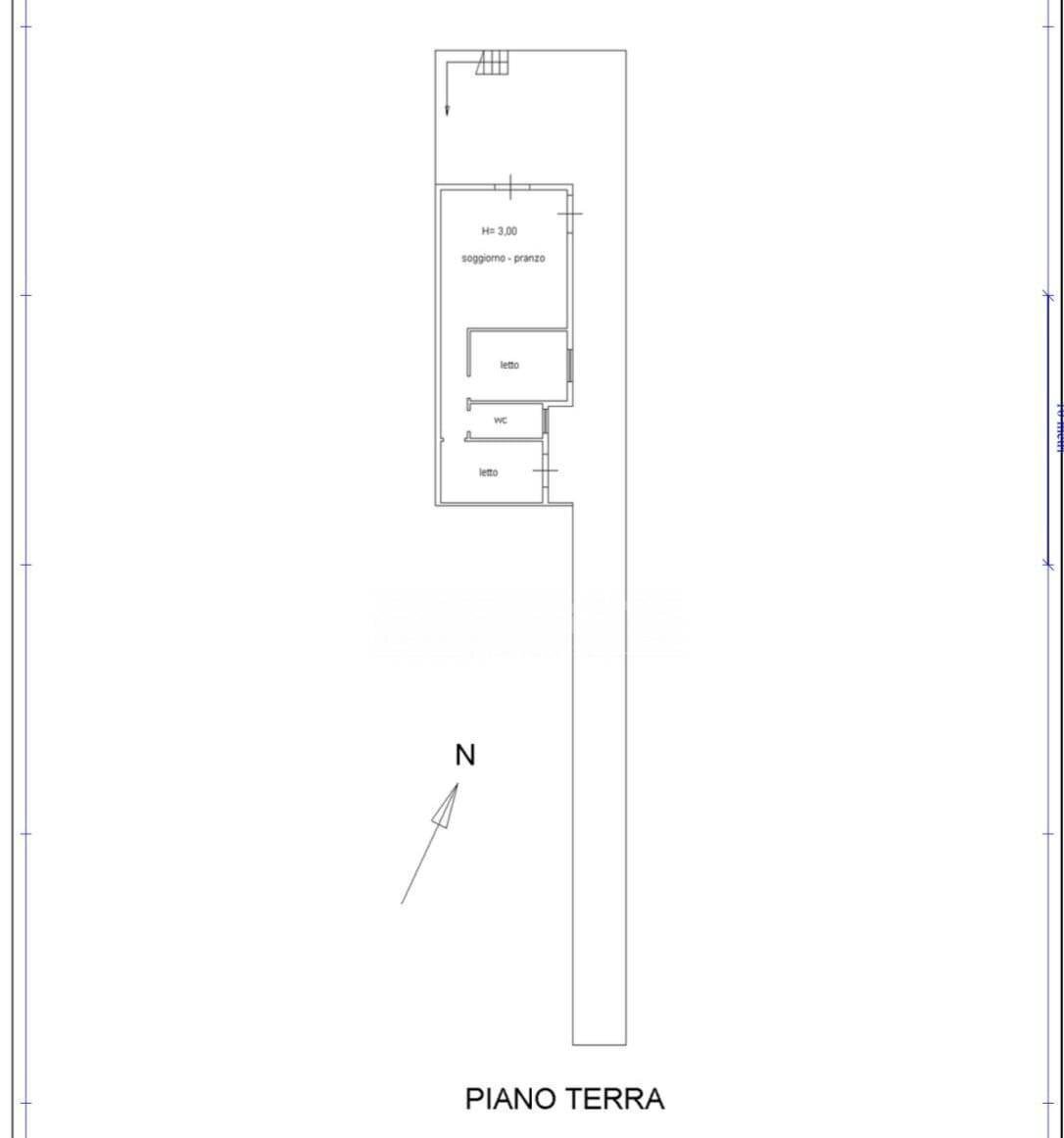
Unità immobiliari con opzioni flessibili di acquisto a Kaukana, Santa Croce Camerina Disponibili otto appartamenti a pochi passi dal mare situati in una palazzina, con le seguenti caratteristiche: Quattro appartamenti al piano terra: ciascuno di 65 m². Quattro appartamenti al primo piano: ciascuno di 65 m² di abitazione più 65 m² di terrazzo esclusivo al piano superiore. Opzioni di personalizzazione e unificazione È possibile: Unificare due unità al piano terra in un'unica abitazione. Collegare un appartamento al piano terra con uno al primo piano per creare una soluzione su più livelli. Collegare un appartamento al primo piano con uno sempre al primo piano per creare una soluzione su un livello interamente al primo piano ed avere l' esclusività dell' intera terrazzo. Beneficiare di sconti per acquisti multipli o combinati. Offerte di Acquisto, l' immobile è venduto allo stato rustico ad un prezzo di 280 mila euro Trattabili o ad 780 mila euro si vende l' intero immobile completamente ristrutturano nella quale potrete scegliere se edificare un massimo di 8 appartamenti o anche una sola villa di circa 500mq Lacquirente potrà poi procedere con una ristrutturazione personalizzata. Questa soluzione rappresenta unopportunità unica per chi cerca flessibilità nei pagamenti e potenzialità di personalizzazione.
Dati principali
| Riferimento | TTR100-972 |
| Data annuncio | 15/05/2025 |
| Contratto | Vendita |
| Tipologia | Appartamento |
| Superficie | 520 m2 |
| Locali | più di 5 (16 camere da letto, 8 altro), 8 bagni, cucina a vista |
| Piano | 1 |
| Tipo di costruzione | Signorile |
| Occupato | Libero |
| Box auto | Assente |
Caratteristiche
Costi
| Prezzo | 280.000 € |
| Prezzo al m2 | 538 €/m2 |
Efficienza energetica
| Stato | Parzialmente ristrutturato |
| Riscaldamento | Autonomo |
| Tipo Impianto Di Riscaldamento | ad aria |
| Tipo Alimentazione Riscaldamento | Elettrico |
| Classe energetica | A1 |
Planimetrie
Indirizzo e mappa
Via Chiuse Nuove
snc, Santa Croce Camerina
Annuncio senza mappa,
prova a chiedere la posizione all'inserzionista
prova a chiedere la posizione all'inserzionista
Calcolo mutuo
Prezzo di vendita:
Anticipo
20,00
Mutuo
80,00
Tasso: -+
Rata: 801 al mese
I risultati sono una stima indicativa basata sui dati inseriti e non costituiscono un’offerta finanziaria.
Inserzionista
Think Tank Realtor
Via Antioco 10, Siracusa
Mostra Telefono
Mostra Cellulare
Chiama
CONTATTA

