Casa indipendente regione castagnito 17, Pezzolo Valle Uzzone
€ 130.000
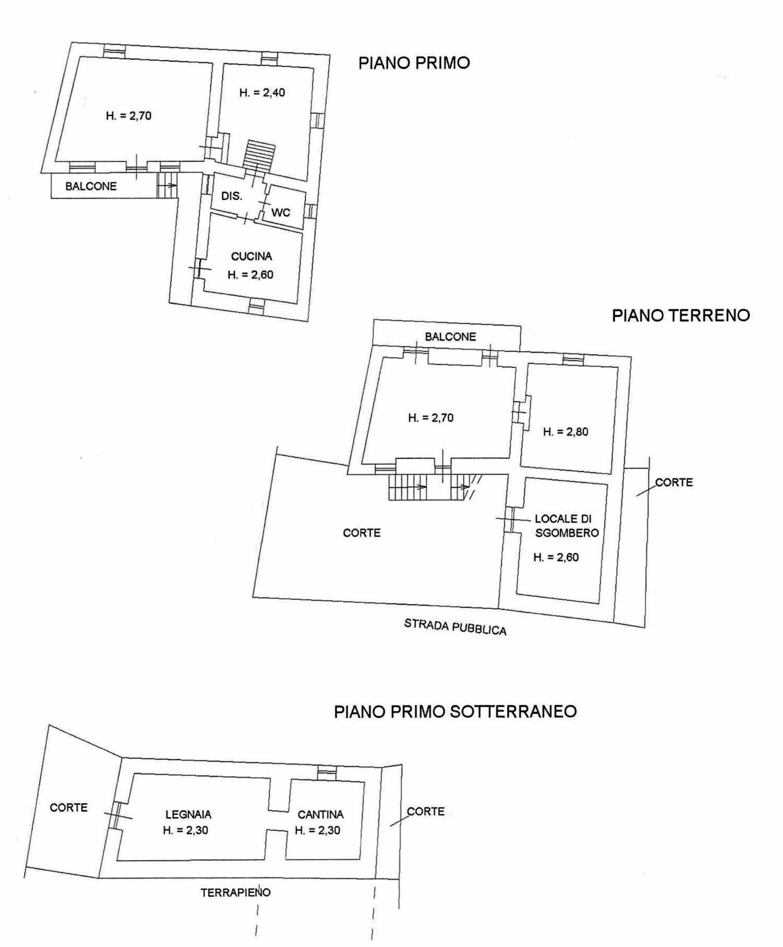
Il tempo nella borgata si è fermato ! Ci troviamo nelle langhe, vicino a Cortemilia, e più precisamente a ridosso del piccolo borgo di Gorrino, Comune di Pezzolo Valle Uzzone a circa 700 metri sul livello del mare. L'immobile che proponiamo è all'interno di una piccola e storica borgata dove lo scorrere del tempo sembra essersi arrestato. L'abitazione è indipendente, costituita da due corpi internamente uniti, uno più recente l'altro con i tratti tipici storici del luogo. Circondato da circa 1.000 mq di giardino e con la presenza in zona di altri 15.000 mq di terreno coltivabile e a vigneto. L'edificio è composto da più vani personalizzabili, disposti su tre differenti livelli. Il livello seminterrato con le cantine dai soffitti a volta in pietra di langa e due piani abitativi. All'interno del giardino insiste un ulteriore fabbricato, soppalcabile e con bagno, dotato di porticato ed utilizzabile come depandance o taverna. La borgata è in parte abitata da italiani e stranieri che negli anni hanno acquistato le abitazioni, ristrutturandole ed adibendole a propria casa vacanza in luogo caratterizzato dalla tranquillità. Ideale come casa vacanza o come investimento per bed & breakfast. Possibilità mutuo fino al 100% con consulente del credito dedicato.
Dati principali
| Riferimento | 26 |
| Data annuncio | 15/05/2025 |
| Contratto | Vendita |
| Tipologia | Casa indipendente |
| Superficie | 240 m2 |
| Locali | più di 5 (2 camere da letto, 6 altro), 2 bagni |
| Occupato | Libero |
Costi
| Prezzo | 130.000 € |
| Prezzo al m2 | 542 €/m2 |
Efficienza energetica
| Riscaldamento | Autonomo |
| Tipo Alimentazione Riscaldamento | Altro |
| Classe energetica | D |
| Indice di prestazione energetica (IPE) | 102 kWh/m2 anno |
Planimetrie
Indirizzo e mappa
regione castagnito
17, Pezzolo Valle Uzzone
Annuncio senza mappa,
prova a chiedere la posizione all'inserzionista
prova a chiedere la posizione all'inserzionista
Calcolo mutuo
Prezzo di vendita:
Anticipo
20,00
Mutuo
80,00
Tasso: -+
Rata: 372 al mese
I risultati sono una stima indicativa basata sui dati inseriti e non costituiscono un’offerta finanziaria.
Inserzionista

Maurizio Crocco - Agente Immobiliare
Via Roma, Cairo Montenotte
Mostra Cellulare
Chiama
CONTATTA

