Villa Via delle Cicogne, Santa Croce Camerina
€ 200.000
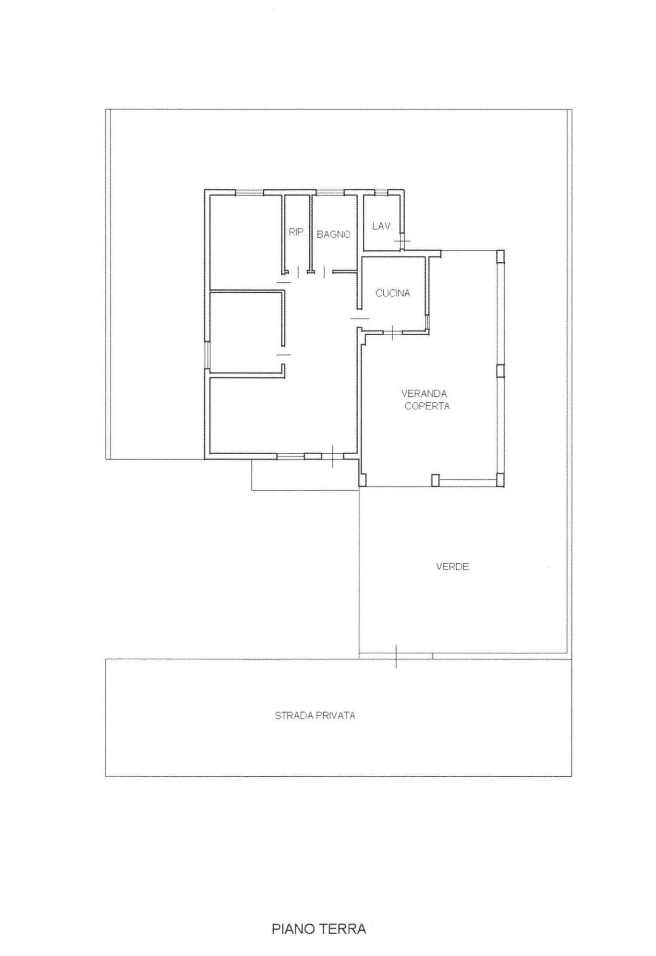
A Santa Croce, in zona Punta Braccetto, a 550 mq circa dal mare proponiamo in vendita una Villa con giardino di circa 700 mq circa. Limmobile, di circa 240 mq totali, disposto su due livelli, è composto al piano terra da un ampio salone, due camere da letto, cucina, ripostiglio, bagno, un doppio servizio/lavanderia e una comoda veranda coperta. Il primo piano, accessibile tramite scala esterna, è composto da ingresso, cucina/pranzo, due camere matrimoniali, due camere doppie, una camera singola, ripostiglio e due bagni. A completare la proprietà un garage di circa 33 mq e due locali tecnici ubicati nel sottotetto. La Villa inoltre dispone di quota di pozzo trivellato. Ideale sia come abitazione principale, sia come immobile da mettere a reddito.
Dati principali
| Riferimento | 1264 |
| Data annuncio | 15/05/2025 |
| Contratto | Vendita |
| Tipologia | Villa |
| Superficie | 240 m2 |
| Locali | più di 5 (7 camere da letto, 6 altro), 4 bagni, cucina abitabile |
| Piano | Terra, 2 totali |
| Tipo di costruzione | Popolare |
| Occupato | Libero |
| Box auto | Doppio |
Caratteristiche
Costi
| Prezzo | 200.000 € |
| Prezzo al m2 | 833 €/m2 |
Efficienza energetica
| Stato | Buono |
| Tipo Impianto Di Riscaldamento | ad aria |
| Tipo Alimentazione Riscaldamento | Elettrico |
| Classe energetica | G |
| Indice di prestazione energetica (IPE) | - |
Planimetrie
Indirizzo e mappa
Via delle Cicogne, Santa Croce Camerina
Annuncio senza mappa,
prova a chiedere la posizione all'inserzionista
prova a chiedere la posizione all'inserzionista
Calcolo mutuo
Prezzo di vendita:
Anticipo
20,00
Mutuo
80,00
Tasso: -+
Rata: 572 al mese
I risultati sono una stima indicativa basata sui dati inseriti e non costituiscono un’offerta finanziaria.
Inserzionista

Millevani Immobiliare
Corso Vittorio Veneto n. 119, Pozzallo
Mostra Telefono
Chiama
CONTATTA

