Rustico via petriolo 22, Greve in Chianti
€ 1.600.000
AZIENDA NEL CHIANTI CLASSICO
La zona del Chianti Classico si estende nel cuore della regione Toscana ed è in grado di offrire un paesaggio variegato, grazie alla natura dell`unicità del suo territorio orografico e dove non a caso, vengono prodotti rinomati vini. In tale contesto, esistono degli angoli di pace dove il silenzio della natura e i suoi panorami sono in grado di estrapolare l`astante in una dimensione fuori dalla caoticità del nostro tempo.
Qui, in un piccolo borgo sulle colline che circondano il paesino di Lamole nel comune di Greve in Chianti in provincia di Firenze, si staglia questa realtà aziendale.
Il nucleo abitativo e strutturale con un proprio ingresso indipendente dal resto del borgo, si erge in posizione con vista panoramica a 360 gradi sulla sottostante vallata e sulle ondulate colline del territorio.
Le strutture immobiliari, tutte in pietra a vista, sono circondate da ampi giardini e nello specifico comprendono:
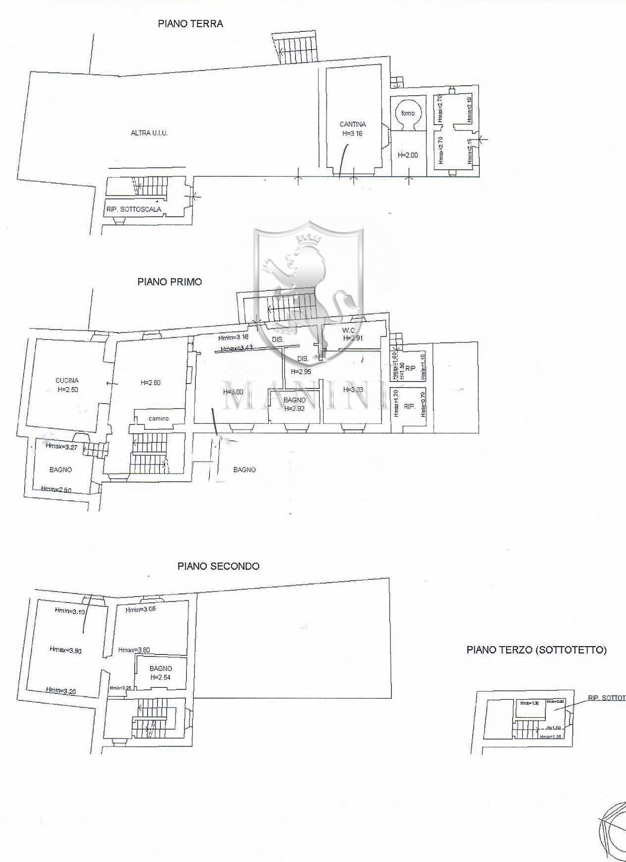
Casa padronale suddivisa su due piani abitativi e comprensiva oltre della zona giorno al piano terra, di quattro camere ciascuna con il proprio bagno pari a 201mq.
Attigua unità immobiliare abitativa, comprensiva oltre alla zona giorno, di due camere complete di relativi servizi igienici pari a mq 128 mq.
Locale cantina di mq. 67 mq. e comprensiva di n 9 serbatoi in acciaio inox e della capienza di circa 200 ettolitri, occorrenti alle operazioni di vinificazione e stoccaggio, oltre a tutte le attrezzature necessarie al condizionamento delle uve aziendali e dei relativi vini prodotti.
Completano il corpo aziendale vani polifunzionali e utili a rimessaggio mezzi agricoli e attrezzature e per una superficie di mq 17 mq.
È presente inoltre una piscina interrata con vista panoramica sulla valle di m. 6 x 12, alimentata con acqua di sorgente e pozzo e corredata di stanza tecnica che accoglie il sistema di pompaggio e l`impianto di clorazione delle acque, oltre ad una cisterna di stoccaggio e riserva idrica da 10.000 lt.
La superficie agricola aziendale è pari a 6 ha di terreni e nello specifico, così suddivisi:
Vigneto atto a produrre uve a Chianti Classico per ha 2 e con un carico di 136 q.li di uve per tale denominazione e pari a 92 hl. di vino, ossia a 12.700 bottiglie da 0,75 litri.
Vigneto atto a produrre uve a IGT Toscano per ha 0,05.20 e con un carico di 6,75 q.li di uve per tale denominazione e pari a 4,7 hl. di vino, ossia a 630 bottiglie sempre da 0,75 litri.
Tutta la descritta superficie vitata, è protetta da recinzione metallica.
Oliveta di ha 3,80.00 con circa 800 piante di olivi e nelle varietà frantoio, moraiolo e leccino che producono un ottimo olio extra vergine italiano e con un potenziale produttivo superiore ai 1.600 litri.
Bosco misto, per ha 0, 02,00
La parte relativa agli immobili è in buono stato conservativo come del resto lo sono le colture agricole.
La zona del Chianti Classico si estende nel cuore della regione Toscana ed è in grado di offrire un paesaggio variegato, grazie alla natura dell`unicità del suo territorio orografico e dove non a caso, vengono prodotti rinomati vini. In tale contesto, esistono degli angoli di pace dove il silenzio della natura e i suoi panorami sono in grado di estrapolare l`astante in una dimensione fuori dalla caoticità del nostro tempo.
Qui, in un piccolo borgo sulle colline che circondano il paesino di Lamole nel comune di Greve in Chianti in provincia di Firenze, si staglia questa realtà aziendale.
Il nucleo abitativo e strutturale con un proprio ingresso indipendente dal resto del borgo, si erge in posizione con vista panoramica a 360 gradi sulla sottostante vallata e sulle ondulate colline del territorio.
Le strutture immobiliari, tutte in pietra a vista, sono circondate da ampi giardini e nello specifico comprendono:
Casa padronale suddivisa su due piani abitativi e comprensiva oltre della zona giorno al piano terra, di quattro camere ciascuna con il proprio bagno pari a 201mq.
Attigua unità immobiliare abitativa, comprensiva oltre alla zona giorno, di due camere complete di relativi servizi igienici pari a mq 128 mq.
Locale cantina di mq. 67 mq. e comprensiva di n 9 serbatoi in acciaio inox e della capienza di circa 200 ettolitri, occorrenti alle operazioni di vinificazione e stoccaggio, oltre a tutte le attrezzature necessarie al condizionamento delle uve aziendali e dei relativi vini prodotti.
Completano il corpo aziendale vani polifunzionali e utili a rimessaggio mezzi agricoli e attrezzature e per una superficie di mq 17 mq.
È presente inoltre una piscina interrata con vista panoramica sulla valle di m. 6 x 12, alimentata con acqua di sorgente e pozzo e corredata di stanza tecnica che accoglie il sistema di pompaggio e l`impianto di clorazione delle acque, oltre ad una cisterna di stoccaggio e riserva idrica da 10.000 lt.
La superficie agricola aziendale è pari a 6 ha di terreni e nello specifico, così suddivisi:
Vigneto atto a produrre uve a Chianti Classico per ha 2 e con un carico di 136 q.li di uve per tale denominazione e pari a 92 hl. di vino, ossia a 12.700 bottiglie da 0,75 litri.
Vigneto atto a produrre uve a IGT Toscano per ha 0,05.20 e con un carico di 6,75 q.li di uve per tale denominazione e pari a 4,7 hl. di vino, ossia a 630 bottiglie sempre da 0,75 litri.
Tutta la descritta superficie vitata, è protetta da recinzione metallica.
Oliveta di ha 3,80.00 con circa 800 piante di olivi e nelle varietà frantoio, moraiolo e leccino che producono un ottimo olio extra vergine italiano e con un potenziale produttivo superiore ai 1.600 litri.
Bosco misto, per ha 0, 02,00
La parte relativa agli immobili è in buono stato conservativo come del resto lo sono le colture agricole.
Dati principali
| Riferimento | 431 |
| Data annuncio | 13/05/2025 |
| Contratto | Vendita |
| Tipologia | Rustico |
| Superficie | 580 m2 |
| Locali | più di 5 (10 altro), cucina a vista |
| Tipo di costruzione | Signorile |
| Occupato | Libero |
| Numero posti auto | 5 |
| Arredamento | Completo |
Caratteristiche
Costi
| Prezzo | 1.600.000 € |
| Prezzo al m2 | 2.759 €/m2 |
Efficienza energetica
| Stato | Buono |
| Riscaldamento | Autonomo |
| Tipo Alimentazione Riscaldamento | Gpl |
| Classe energetica | G |
| Indice di prestazione energetica (IPE) | 200 kWh/m2 anno |
Planimetrie
Indirizzo e mappa
via petriolo
22, Greve in Chianti
Annuncio senza mappa,
prova a chiedere la posizione all'inserzionista
prova a chiedere la posizione all'inserzionista
Calcolo mutuo
Prezzo di vendita:
Anticipo
20,00
Mutuo
80,00
Tasso: -+
Rata: 4.576 al mese
I risultati sono una stima indicativa basata sui dati inseriti e non costituiscono un’offerta finanziaria.
Inserzionista

Manini Group
Via A. Gramsci, 3, Torrita di Siena
Mostra Telefono
Mostra Cellulare
Chiama
CONTATTA

