Villa Via Vecchia Gravina Sc, Minervino Murge
€ 280.000
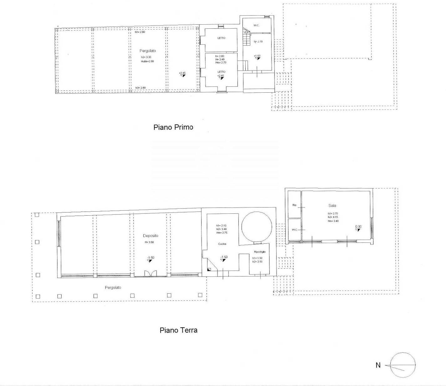
PUGLIA - MINERVINO MURGE - VIA VECCHIA GRAVINA A Minervino Murge, immersa nel verde del Parco Nazionale dell'Alta Murgia, proponiamo in vendita una spaziosa villa disposta su tre livelli. La proprietà offre una vista mozzafiato e si distingue per un ampio giardino terrazzato. Inoltre, è dotata di un vasto terreno, ideale per chi ama la vita all'aria aperta e desidera coltivare un orto o dedicarsi ad attività all'aperto. Al piano terra si trova la zona giorno, composta da un ampio soggiorno, una cucina abitabile, un bagno e un ripostiglio. La zona notte comprende due camere da letto e un secondo bagno. Questa villa rappresenta una vera oasi di pace e tranquillità, lontana dal caos cittadino ma comunque comoda a tutti i servizi e le attività commerciali del centro di Minervino Murge.
Dati principali
| Riferimento | CBI094-169-63758 |
| Data annuncio | 13/05/2025 |
| Contratto | Vendita |
| Tipologia | Villa |
| Superficie | 335 m2 |
| Locali | più di 5 (2 camere da letto, 5 altro), 2 bagni, cucina abitabile |
| Piano | Terra, 2 totali |
| Tipo di costruzione | Signorile |
| Occupato | Libero |
| Box auto | Assente |
| Arredamento | Assente |
Caratteristiche
Costi
| Prezzo | 280.000 € |
| Prezzo al m2 | 836 €/m2 |
Efficienza energetica
| Stato | Parzialmente ristrutturato |
| Riscaldamento | Autonomo |
| Classe energetica | G |
| Indice di prestazione energetica (IPE) | 175 kWh/m2 anno |
Planimetrie
Indirizzo e mappa
Via Vecchia Gravina
Sc, Minervino Murge
Annuncio senza mappa,
prova a chiedere la posizione all'inserzionista
prova a chiedere la posizione all'inserzionista
Calcolo mutuo
Prezzo di vendita:
Anticipo
20,00
Mutuo
80,00
Tasso: -+
Rata: 801 al mese
I risultati sono una stima indicativa basata sui dati inseriti e non costituiscono un’offerta finanziaria.
Inserzionista

Coldwell Banker Gruppo Bodini
Via Nicolò Putignani, 20, Bari
Mostra Telefono
Chiama
CONTATTA

