Locale Commerciale via Marmora, 12/b, Cuneo
€ 135.000CONFRERIA, Via Marmora - LOCALE COMMERCIALE (CENTRO ESTETICO)
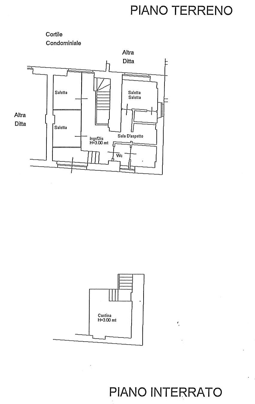
Al piano terra di piccola palazzina di fine '800 (ex filanda) sita nel cuore della frazione di Confreria, in zona di facilissimo parcheggio, vendiamo grazioso locale commerciale completamente RISTRUTTURATO nel 2008 e da allora adibito a CENTRO ESTETICO; composto di ingresso, corridoio-disimpegno, saletta d'attesa (o piccolo ufficio), 3 salette principali (tutte con punti acqua interni e una anche con vano doccia), bagno con anti-bagno e CANTINA/MAGAZZINO collegata internamente al negozio mediante scala interna.
Il locale è libero su 3 lati, gode di buona esposizione e luminosità e dispone, tra le altre cose, di soffitti a volta, di accesso secondario sul retro, di riscaldamento AUTONOMO, di impianto A/C e di basse spese condominiali.
Volendo si presta ad essere ideale anche come studio professionale, studio medico o laboratorio. Sicuramente ottimo come INVESTIMENTO: attualmente infatti è già locato a centro estetico e nel prezzo di vendita sono compresi anche gran parte degli arredi e delle attrezzature presenti nel locale.
APE: E (IPE: 83,06 KWh/mc).
MASSA Studio Immobiliare - 0171/65510 - 366/3344622 - www.massaimmobiliare.com
Il locale è libero su 3 lati, gode di buona esposizione e luminosità e dispone, tra le altre cose, di soffitti a volta, di accesso secondario sul retro, di riscaldamento AUTONOMO, di impianto A/C e di basse spese condominiali.
Volendo si presta ad essere ideale anche come studio professionale, studio medico o laboratorio. Sicuramente ottimo come INVESTIMENTO: attualmente infatti è già locato a centro estetico e nel prezzo di vendita sono compresi anche gran parte degli arredi e delle attrezzature presenti nel locale.
APE: E (IPE: 83,06 KWh/mc).
MASSA Studio Immobiliare - 0171/65510 - 366/3344622 - www.massaimmobiliare.com
Dati principali
| Riferimento | NG-046 |
| Data annuncio | 04/03/2025 |
| Contratto | Vendita |
| Tipologia | Locale Commerciale |
| Superficie | 87 m2 |
| Locali | 1 bagno |
| Piano | Terra, 3 totali |
| Tipo di costruzione | Epoca |
| Box auto | Assente |
| Uso immobile | Commerciale |
| Numero locali | 4 |
Caratteristiche
Costi
| Prezzo | 135.000 € |
| Prezzo al m2 | 1.552 €/m2 |
Efficienza energetica
| Anno costruzione | 1880 |
| Stato | Ottimo |
| Aria Condizionata | Autonomo |
| Riscaldamento | Autonomo |
| Tipo Alimentazione Riscaldamento | Metano |
| Classe energetica | E |
| Indice di prestazione energetica (IPE) | 83.06 kWh/m2 anno |
Planimetrie
Indirizzo e mappa
via Marmora, 12/b, Cuneo
Calcolo mutuo
Prezzo di vendita:
Anticipo
20,00
Mutuo
80,00
Tasso: -+
Rata: 386 al mese
I risultati sono una stima indicativa basata sui dati inseriti e non costituiscono un’offerta finanziaria.
Inserzionista

MASSA STUDIO IMMOBILIARE
VIA MARMORA, 18, Cuneo
Mostra Telefono
Mostra Cellulare
Chiama
CONTATTA

