Villa a Schiera ALDO MORO, Triggiano
Trattativa riservata
Descrizione dell’immobile Progetto adiacente nuovo parco urbano.
Realizzazione di appartamenti di nuova edificazione.
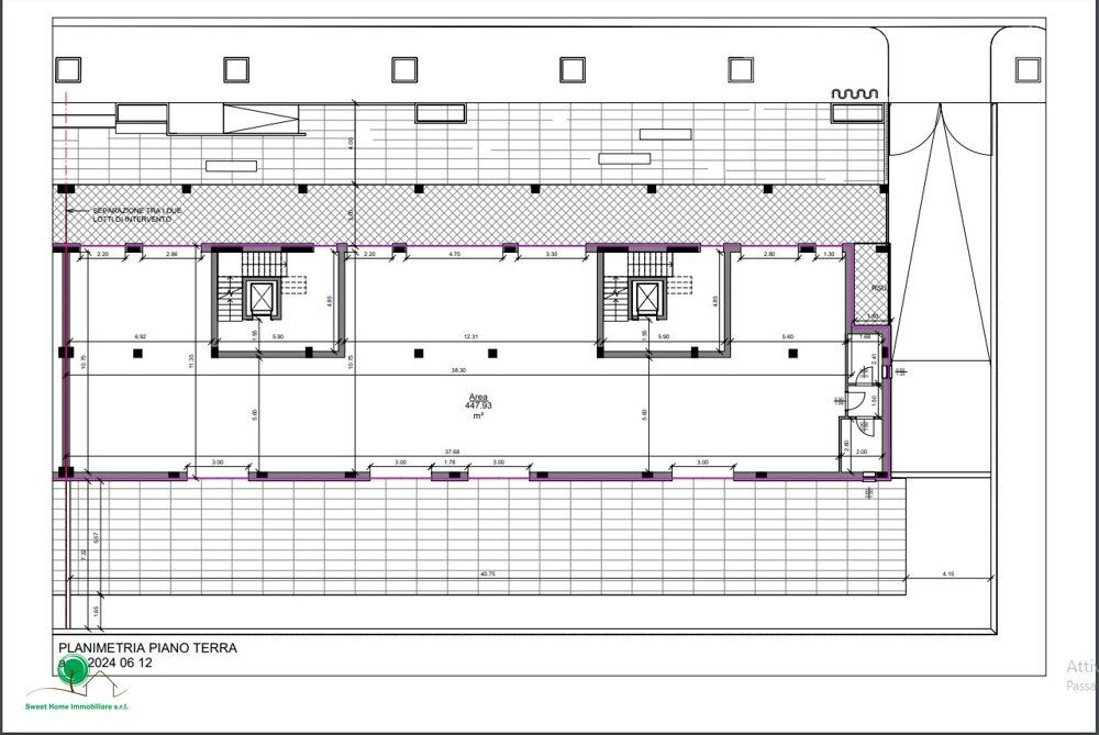
Piano terra, locali commerciali per nuovi insediamenti attività di vendita al dettaglio.
Appartamenti sono situati a primo, secondo e terzo piano , nella parte seminterrato sono situati posti auto box.
PER INFO RIVOLGERSI ALL'UFFICIO COMMERCIALE IN TRIGGIANO ALLA VIA DELLE MURA, 123 C/O LA SWEET HOME IMMOBILIARE S.r.l.
Orari d'apertura :
Dal lunedì al venerdì
09:00/13:00
16:00/20:00
Sabato mattina
09:00/13:00
☎️ 0804621036 - 3714571864 -3937357265
Realizzazione di appartamenti di nuova edificazione.
Piano terra, locali commerciali per nuovi insediamenti attività di vendita al dettaglio.
Appartamenti sono situati a primo, secondo e terzo piano , nella parte seminterrato sono situati posti auto box.
PER INFO RIVOLGERSI ALL'UFFICIO COMMERCIALE IN TRIGGIANO ALLA VIA DELLE MURA, 123 C/O LA SWEET HOME IMMOBILIARE S.r.l.
Orari d'apertura :
Dal lunedì al venerdì
09:00/13:00
16:00/20:00
Sabato mattina
09:00/13:00
☎️ 0804621036 - 3714571864 -3937357265
Dati principali
| Riferimento | Immo-2024-182 |
| Data annuncio | 19/10/2024 |
| Contratto | Vendita |
| Tipologia | Villa a Schiera |
Costi
| Prezzo | Trattativa riservata |
Efficienza energetica
| Classe energetica | Immobile esente da certificazione energetica |
Indirizzo e mappa
ALDO MORO, Triggiano
Inserzionista

SweetHome Immobiliare Srl
Via Della Mura 123 127, Triggiano
Mostra Telefono
Chiama
CONTATTA

