Ricevi copia del giornale via mail
19 risultati per
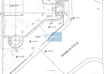
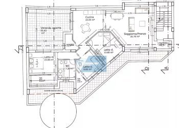
terreni edificabili in vendita a Noto
Annunci immobiliari a Noto:
Terreni edificabili in affitto a Noto
Agenzie immobiliari a Noto












































































































































































































