Shed via 1 Maggio, Viguzzolo
€ 250.000
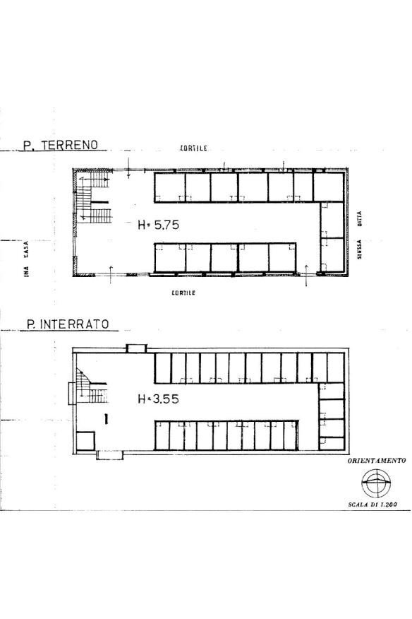
PEDEMONTE MASSIMO PROPONE IN VENDITA CAPANNONE ENOLOGICO CON PIAZZALE + VILLETTA CON GIARDINO + TERRENO EDIFICABILE SU AREA COMPLESSIVA DI CIRCA MQ 3.600 A VIGUZZOLO Gli immobili sono situati ai piedi della Val Curone: zona sempre più ricercata per la coltivazione di vitigni sopratutto del pregiato Timorasso Ottima posizione adiacente a strada comoda a raggiungere le principali vie di comunicazione che collegano Viguzzolo ai paesi vicini e precisamente a soli 15 minuti dai caselli autostradali (MI-GE) e (TO-PC) La proprietà, alla quale si accede grazie al comodo cancello automatico, è costituita da: 1 capannone con ampio piazzale di manovra + Villetta indipendente con giardino + 1 area verde edificabile di circa mq 1200 IL CAPANNONE E’ disposto su 2 piani aventi una superficie di circa mq 350 per piano Attualmente strutturato come cantina enologica industriale con una portata totale 9.000 ettolitri, contiene 40 vasche da 160 Ettolitri fino a 300 Ettolitri. Esternamente dispone di una pesa con portata massima di 150 Quintali. Possibilità di utilizzare il capannone anche per scopi diversi. LA VILLA Si presenta in modiche condizioni di manutenzione. È disposta su un unico piano abitativo rialzato di circa mq 150 + circa mq 60 di locale cantina al piano interrato. La parte abitativa, dispone di 2 ingressi (il principale verso il giardino e il secondario verso il cortile adiacente al capannone) è costituita da: ingresso, sala, cucina abitabile, 3 camere, 1 ripostiglio, 2 bagni e 1 balcone Adiacente alla villa è presente un TERRENO di tipo industriale completamente cintato di circa mq 1.200 attualmente adibita a prato verde/giardino Tra i due immobili è presente un ampio cortile adatto per spazi di manovra anche per mezzi pesanti L’intera proprietà comprende una superficie complessiva di circa mq 3.600 PREZZO DI VENDITA DELL’INTERA PROPRIETA’ € 250.000,00 TRATTABILI VISITATE IL NOSTRO SITO www.pedemontemassimomediatore.com CONTATTATECI per avere tutte le informazioni che desiderate tel. 0131/868477 e-mail: [email protected] CI TROVATE a Tortona in Via Emilia n. 54 (Piazza Malaspina) dal lunedì al venerdì dalle 9.00 alle 13.00 e dalle 15.00 alle 19.00
Main data
| Reference | 114/4 |
| Ad date | 11/03/2021 |
| Contract | Sale |
| Typology | Shed |
| Surface | 700 m2 |
| Plan | 2 totals |
| Real estate use | Commercial and Industrial |
Costs
| Price | 250.000 € |
| Price per m2 | 357 €/m2 |
Energy efficiency
| Heating | Autonomous |
| Energy rating | Property exempt from energy certification |
Floor plans
Address and map
via 1 Maggio, Viguzzolo
Mortgage calculation
Selling price:
Advance
20,00
Mortgage
80,00
Rate: -+
Payment: 715 per month
The results are an indicative estimate based on the data entered and do not constitute a financial offer.
Advertiser
Call
CONTACT


