Villa Via Verdi, Daverio
€ 470.000
Una è già stata venduta, una è in trattativa Disponibile solo la villa di testa, con giardino di circa 1000 mq, al prezzo di 470.000. A Mornago, in via Edmondo De Amicis, stanno sorgendo tre ville indipendenti di nuova costruzione. Dopo linteresse ricevuto, è ora disponibile solo la villa di testa, la più prestigiosa per ampiezza degli spazi esterni e privacy. Immagina di svegliarti con la luce del sole che filtra tra le travi in legno del tuo soggiorno a doppia altezza. In cucina il profumo del caffè, mentre fuori, il tuo giardino privato ti accoglie per iniziare la giornata nel silenzio della natura. Benvenuto a Mornago, in via Edmondo De Amicis, dove il tempo rallenta, ma tutto è a portata di mano: una zona residenziale soleggiata, a pochi minuti dal centro, vicina a Varese, Gallarate e a tutte le comodità. Vivere qui significa scegliere la calma senza rinunciare alla connessione con tutto ciò che conta. Ed è qui che nascono tre ville indipendenti di nuova costruzione, progettate per offrirti tutto ciò che cerchi in una casa: spazio, comfort ed efficienza. Il soggiorno con tetto a vista è il cuore pulsante della casa: ampio, luminoso, perfetto per condividere momenti in famiglia o accogliere gli amici. La zona notte, silenziosa e riservata, offre una camera padronale con cabina armadio privata e una seconda camera ideale per figli o ospiti. I doppi servizi e gli spazi ben distribuiti rendono la quotidianità pratica e armoniosa. Al piano superiore, un ampio soppalco affacciato sulla zona giorno attende solo di essere personalizzato: uno studio, una palestra, uno spazio per i tuoi hobby? La scelta è tua. Ogni villa è completamente indipendente e immersa nella tranquillità. Il giardino privato è lo spazio ideale per vivere allaperto, leggere sotto un albero, cenare sotto le stelle o semplicemente godere del silenzio. Grazie alla classe energetica A3/A4, agli impianti fotovoltaici e alla tecnologia domotica, ogni ambiente è sempre alla temperatura ideale, con costi contenuti e il massimo rispetto per lambiente. Qui non stai solo comprando una casa. Stai scegliendo il tuo stile di vita. Contattaci per scoprire il cantiere e iniziare a costruire la casa che hai sempre sognato. NB. Le immagini dellunità abitativa presenti nell'annuncio si riferiscono ad un altro cantiere in cui è stata utilizzata la stessa tipologia architettonica: hanno lo scopo di illustrare il possibile risultato finale del progetto e non rappresentano lunità attualmente in vendita a Mornago. Le immagini sono quindi da considerarsi puramente dimostrative. Se questo immobile si avvicina alla tipologia di casa che stai cercando, puoi contattarci telefonicamente o tramite WHATSAPP allo 0331.985995. Ti risponderemo il prima possibile. Inoltre, ti ricordiamo che presso i nostri uffici immobiliari potrai ricevere, previo appuntamento, una consulenza di mutuo gratuita con professionisti di nostra fiducia che a seconda delle tue esigenze, saprà indicarvi il miglior prodotto finanziario sul mercato! Cosa aspetti? Contattaci, è GRATIS! E se devi VENDERE? Chiamaci per una valutazione: è a costo ZERO, Offriamo Noi! Seguici sui SOCIAL e visita il nostro SITO www.piazzaaffariimmobiliare.it per rimanere aggiornato sulle nostre proposte, o vieni a trovarci presso la nostra SEDE in via Matteotti, 66 a Solbiate Arno: ci conosceremo, faremo una ricerca mirata secondo le tue esigenze ed insieme troveremo la soluzione più adatta a te e alla tua famiglia.
Main data
| Reference | DAVL1 |
| Ad date | 30/04/2026 |
| Contract | Sale |
| Typology | Villa |
| Surface | 250 m2 |
| Locals | 4 (3 bedrooms, 1 other), 2 bathrooms, kitchen on sight |
| Plan | Earth, 2 totals |
| Construction type | Average |
| Occupied | Free |
| Garage | Double |
| Furniture | Absent |
Costs
| Price | 470.000 € |
| Price per m2 | 1.880 €/m2 |
Energy efficiency
| Heating | Autonomous |
| Heating System Type | on the floor |
| Energy rating | A3 |
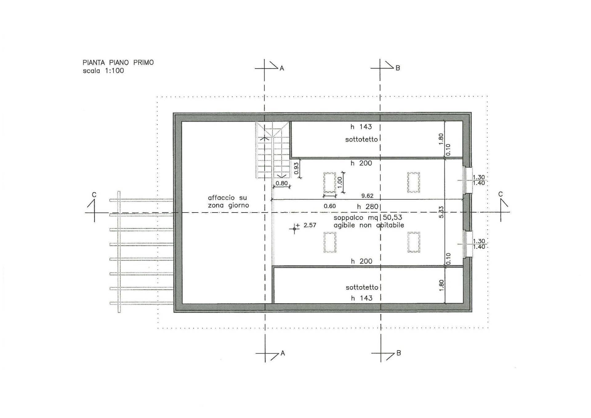
Floor plans
Address and map
Via Verdi, Daverio
Ad without map,
try asking the advertiser for the position
try asking the advertiser for the position
Mortgage calculation
Selling price:
Advance
20,00
Mortgage
80,00
Rate: -+
Payment: 1.344 per month
The results are an indicative estimate based on the data entered and do not constitute a financial offer.
Advertiser

Piazza Affari Immobiliare
Via Matteotti 66, Solbiate Arno
Show Phone
Show Mobile
Call
CONTACT

