Two-room apartment Via Bereguardo, Vigevano
€ 115.000Bilocale in vendita
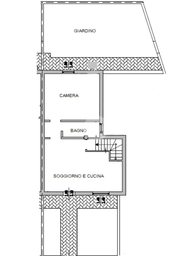
Via Bereguardo – VIGEVANO (PV) : In un contesto residenziale proponiamo, un BILOCALE DA RISTRUTTURARE, con giardino privato.
Il comune è ben collegato a Milano tramite i mezzi ferroviari, e con autobus di linea per le zone urbane e ed extra urbane.
Vigevano è un comune situato nella provincia di Pavia, in Lombardia. Immersa nella Lomellina nord-orientale, separata da Milano dal Ticino, Vigevano è raggiungibile con una trentina di minuti di treno dal capoluogo lombardo, nel cuore della città potete ammirare Piazza Ducale, tradizionalmente nota come la più bella piazza d’Italia. Costruita per volere di Ludovico il Moro su disegno di Leonardo Da Vinci tra il 1492 ed il 1494, è a pianta rettangolare, racchiusa su tre lati da edifici porticati e sul quarto lato dalla facciata della cattedrale. Per gli appassionati di escursioni naturalistiche, il comune è compreso interamente nel Parco lombardo del Ticino.
L'appartamento risulta essere così composto : L’ingresso si apre direttamente sulla zona living con cucina a vista, un ambiente unico e luminoso pensato per accogliere sia l’area relax sia quella dedicata ai pasti, con affaccio diretto verso l’esterno.
Dal soggiorno si accede infatti al giardino privato, che rappresenta una naturale estensione della casa: uno spazio riservato ideale per pranzare all’aperto, creare un angolo verde o semplicemente godersi momenti di relax.
Proseguendo dalla zona giorno si raggiunge il disimpegno che conduce al bagno finestrato con box doccia ed infine la camera da letto, pensata per garantire privacy e comfort.
Inoltre, l’immobile è dotato di infissi in PVC con doppi vetri, porta blindata e predisposizione per l'aria condizionata.
L’immobile è stato appena ristrutturato e si presenta in condizioni pari al nuovo con pavimento in grès porcellanato effetto parquet in tutti gli ambienti ; attualmente sono in fase di ultimazione gli ultimi lavori di rifinitura, che completeranno l’abitazione rendendola pronta per essere abitata.
'Le immagini sono state ritoccate a scopo illustrativo e non costituiscono un elemento contrattuale'
VALUTAZIONI GRATUITE.
Ogni agenzia ha un proprio titolare ed è autonoma. Le informazioni non costituiscono elemento contrattuale.
Presso la nostra agenzia è possibile, su richiesta, ricevere una consulenza gratuita grazie ai professionisti Kiron ed accedere ad un’ampia gamma di prodotti creditizi e assicurativi.
Il comune è ben collegato a Milano tramite i mezzi ferroviari, e con autobus di linea per le zone urbane e ed extra urbane.
Vigevano è un comune situato nella provincia di Pavia, in Lombardia. Immersa nella Lomellina nord-orientale, separata da Milano dal Ticino, Vigevano è raggiungibile con una trentina di minuti di treno dal capoluogo lombardo, nel cuore della città potete ammirare Piazza Ducale, tradizionalmente nota come la più bella piazza d’Italia. Costruita per volere di Ludovico il Moro su disegno di Leonardo Da Vinci tra il 1492 ed il 1494, è a pianta rettangolare, racchiusa su tre lati da edifici porticati e sul quarto lato dalla facciata della cattedrale. Per gli appassionati di escursioni naturalistiche, il comune è compreso interamente nel Parco lombardo del Ticino.
L'appartamento risulta essere così composto : L’ingresso si apre direttamente sulla zona living con cucina a vista, un ambiente unico e luminoso pensato per accogliere sia l’area relax sia quella dedicata ai pasti, con affaccio diretto verso l’esterno.
Dal soggiorno si accede infatti al giardino privato, che rappresenta una naturale estensione della casa: uno spazio riservato ideale per pranzare all’aperto, creare un angolo verde o semplicemente godersi momenti di relax.
Proseguendo dalla zona giorno si raggiunge il disimpegno che conduce al bagno finestrato con box doccia ed infine la camera da letto, pensata per garantire privacy e comfort.
Inoltre, l’immobile è dotato di infissi in PVC con doppi vetri, porta blindata e predisposizione per l'aria condizionata.
L’immobile è stato appena ristrutturato e si presenta in condizioni pari al nuovo con pavimento in grès porcellanato effetto parquet in tutti gli ambienti ; attualmente sono in fase di ultimazione gli ultimi lavori di rifinitura, che completeranno l’abitazione rendendola pronta per essere abitata.
'Le immagini sono state ritoccate a scopo illustrativo e non costituiscono un elemento contrattuale'
VALUTAZIONI GRATUITE.
Ogni agenzia ha un proprio titolare ed è autonoma. Le informazioni non costituiscono elemento contrattuale.
Presso la nostra agenzia è possibile, su richiesta, ricevere una consulenza gratuita grazie ai professionisti Kiron ed accedere ad un’ampia gamma di prodotti creditizi e assicurativi.
Main data
| Reference | 61209824 |
| Ad date | 29/04/2026 |
| Contract | Sale |
| Typology | Apartment |
| Surface | 75 m2 |
| Locals | 2 (2 other), 1 bathroom |
Costs
| Price | 115.000 € |
| Price per m2 | 1.533 €/m2 |
Energy efficiency
| Year built | 2025 |
| Heating | Autonomous |
| Heating Power Type | Methane |
| Energy rating | E |
| Energy performance index (EP GL, REN ) | 106.4 kWh/m3 year |
| Energy performance index (EP GL, NREN ) | 263.8 kWh/m3 year |
Floor plans
Address and map
Via Bereguardo, Vigevano
Mortgage calculation
Selling price:
Advance
20,00
Mortgage
80,00
Rate: -+
Payment: 329 per month
The results are an indicative estimate based on the data entered and do not constitute a financial offer.
Advertiser
Call
CONTACT

