Three-room apartment Via San Bernardo 13, Rescaldina
€ 135.000
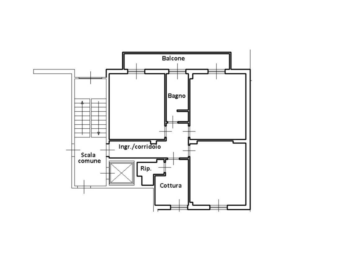
Fondocasa Senago offre in vendita un ampio Tre locali di 92 mq con box e cantina! INFORMAZIONE DI VALORE: Sappiamo che la vera paura è vendere la tua casa e poi non riuscire a trovare una nuova abitazione. Ma con il nostro supporto, non solo potrai vendere la tua casa con successo, ma ti aiuteremo a garantire una transizione senza problemi, in modo che non dovrai mai preoccuparti di rimanere senza una casa. Contattaci e scopri come possiamo rendere questo processo sicuro per te. UBICAZIONE E CONTESTO: Situato in una zona residenziale, questo appartamento è ben servito nelle vicinanze da molte attività essenziali quali supermercati, farmacie, banche, poste, mezzi pubblici, uffici comunali, parchi e scuole. È l'opportunità che stavi cercando! CARATTERISTICHE: Questo appartamento è pronto per te e si compone di: ingresso, cucina abitabile con ripostiglio, ampio soggiorno, una camera matrimoniale, un'ulteriore camera, un servizio finestrato con doccia e vasca e un balcone. La pavimentazione è in ceramica in tutti gli ambienti, gli infissi sono in pvc con doppio vetro, il balcone dispone di tende da sole, è presente l'impianto di condizionamento a pompa di calore in tutti gli ambienti e tutte le finestre dispongono di zanzariere. Il riscaldamento è centralizzato con contabilizzatori di calore. Completano la proprietà un box ad 12.000 oltre il prezzo di vendita ed una cantina. LE NOSTRE CASE SONO TUTTE IN ESCLUSIVA! LE VEDI SOLO CON NOI! Se sei interessato, non esitare a contattarci per fissare un appuntamento o per ulteriori informazioni al numero 02-83552331, indicando il riferimento RIF.DE093
Main data
| Reference | DE093 |
| Ad date | 25/04/2026 |
| Contract | Sale |
| Typology | Apartment |
| Surface | 92 m2 |
| Locals | 3 (2 bedrooms, 1 other), 1 bathroom, kitchen habitable |
| Construction type | Average |
| Occupied | Free |
| Garage | Single |
| Furniture | Absent |
Costs
| Price | 135.000 € |
| Price per m2 | 1.467 €/m2 |
Energy efficiency
| Status | Good |
| Heating | Centralized |
| Energy rating | E |
| Energy Performance Index (IPE) | 190 kWh/m2 year |
Floor plans
Address and map
Via San Bernardo
13, Rescaldina
Ad without map,
try asking the advertiser for the position
try asking the advertiser for the position
Mortgage calculation
Selling price:
Advance
20,00
Mortgage
80,00
Rate: -+
Payment: 386 per month
The results are an indicative estimate based on the data entered and do not constitute a financial offer.
Advertiser

Senago
Piazza Tricolore, 20, Senago
Show Phone
Call
CONTACT

