Apartment Giovanni Paisiello 85, Maglie
€ 125.000
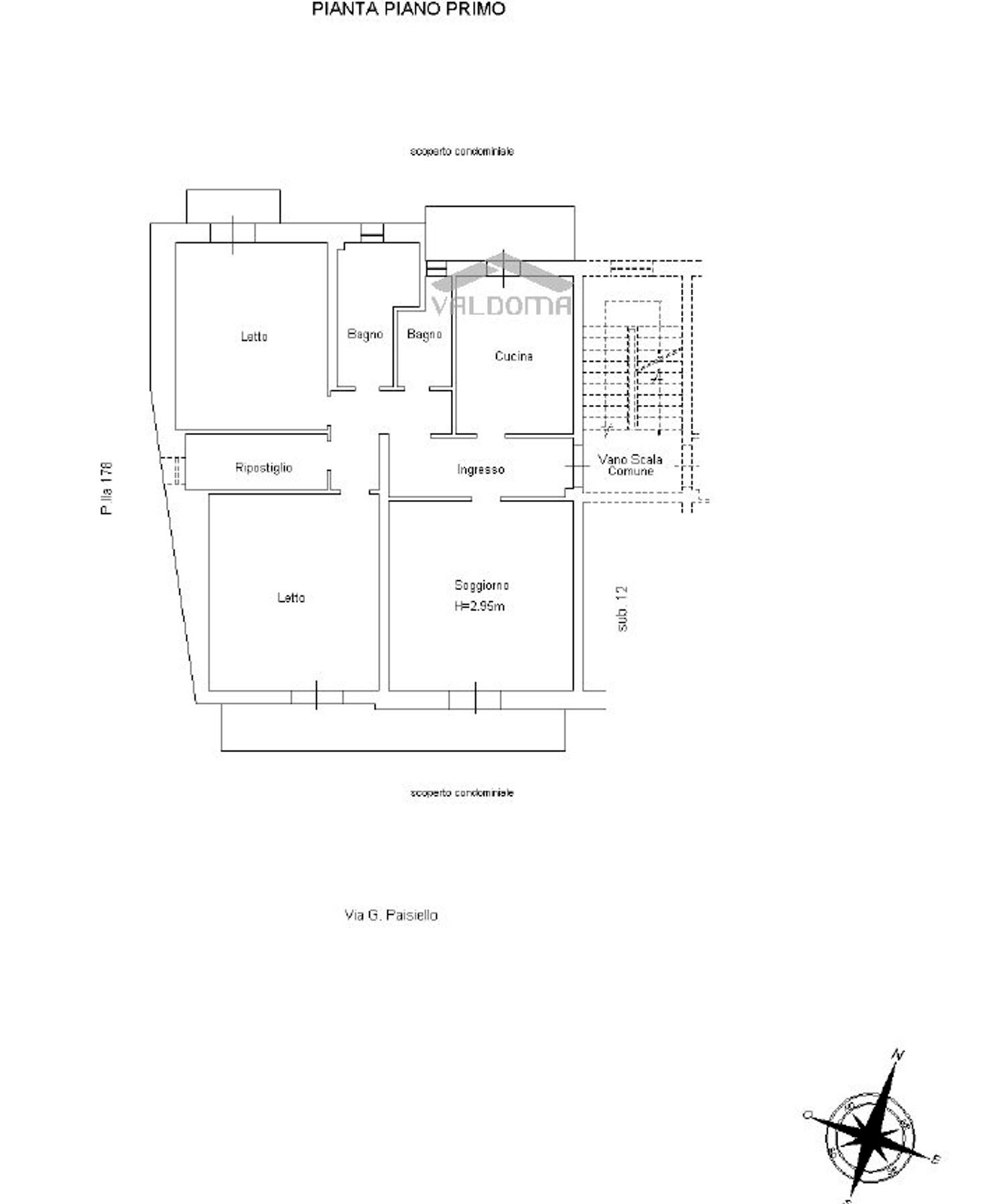
Valdoma Immobiliare propone in esclusiva un appartamento spazioso, al primo piano, in condominio tranquillo e a soli 650 metri dal centro. L'ingresso con porta blindata apre su un disimpegno che collega: cucina abitabile con balcone interno e secondo accesso; ampio salone con balcone su strada; camera matrimoniale con balcone interno; cameretta con finestrino; studio con balcone su strada. Lavori completati con Superbonus 110% (dicembre 2024): cappotto termico e isolamento della copertura; avvolgibili e cassonetti coibentati; impianto solare termico per acqua calda; fotovoltaico 3.64 kW con accumulo 9.60 kWh; nuova caldaia a condensazione con valvole termostatiche; frangisole a tenda verticale; sistema di building automation; predisposizione per climatizzazione. Completa la proprietà un'ampia cantina. Perché scegliere questo appartamento: posizione comoda, in città viva e servita; efficienza energetica già garantita; vicinanza ai luoghi più rinomati: solo 15 minuti da Otranto, 38 minuti da Gallipoli, 30 minuti da Lecce, 44 minuti da Santa Maria di Leuca. Contatta Valdoma per una prima visita virtuale.
Main data
| Reference | MGL232704 |
| Ad date | 24/04/2026 |
| Contract | Sale |
| Typology | Apartment |
| Surface | 138 m2 |
| Locals | more than 5 (3 bedrooms, 3 other), 2 bathrooms, kitchen habitable |
| Plan | 1 from 2 totals |
| Construction type | Average |
| Garage | Absent |
Costs
| Price | 125.000 € |
| Price per m2 | 906 €/m2 |
Energy efficiency
| Status | Good |
| Heating | Autonomous |
| Energy rating | A1 |
Floor plans
Virtual tour
Address and map
Giovanni Paisiello
85, Maglie
Ad without map,
try asking the advertiser for the position
try asking the advertiser for the position
Mortgage calculation
Selling price:
Advance
20,00
Mortgage
80,00
Rate: -+
Payment: 357 per month
The results are an indicative estimate based on the data entered and do not constitute a financial offer.
Advertiser

VALDOMA
VIA OTRANTO 42, Maglie
Show Phone
Show Mobile
Call
CONTACT

