Three-room apartment Giovanni Verga 18, Cesano Maderno
€ 255.000
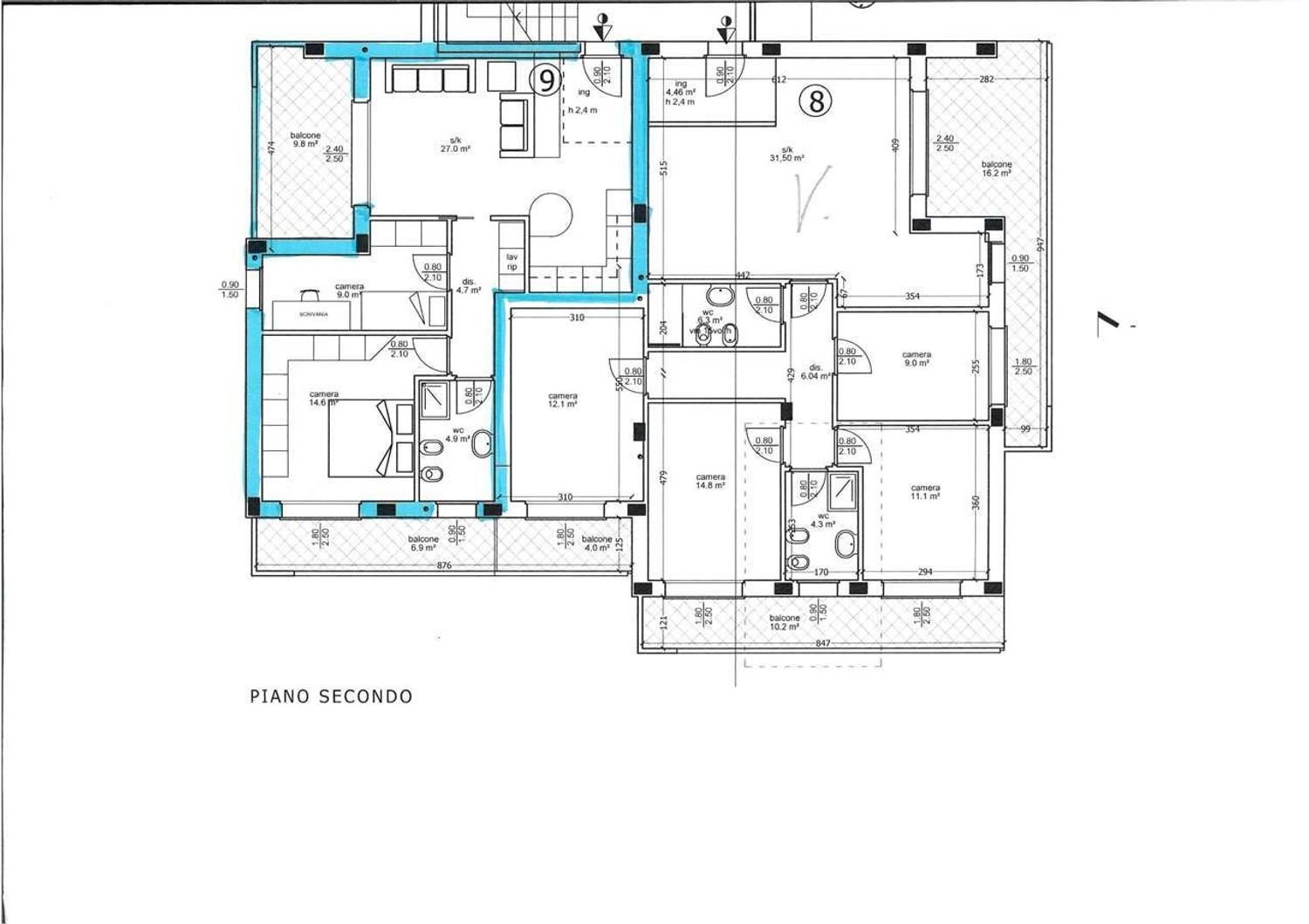
Residenza Chantal a Cesano Maderno (San Bernardo) - In corso di realizzazione, zona tranquilla e verde, servita dall'ingresso al parco del Grugnotorto. Comoda con le principali vie di comunicazione, la zona è fornita di tutti i servizi essenziali (asili, scuole, etc. ), attività commerciali e di ristorazione. Il progetto prevede la realizzazione di una palazzina composta da 12 appartamenti dotati di impianti autonomi ad alta efficienza energetica (Classe A4) con il massimo confort abitativo. Disponiamo di bilocali, trilocali e quadrilocali con terrazzi e giardini privati. Cantine. Box di varie metrature. Possibilità di personalizzazione interna e scelta delle finiture da ampio capitolato. L'edificio sarà caratterizzato da linee pulite e moderne e sarà dotati di spazi funzionali ed eleganti caratterizzati dall'impiego di materiali di alta qualità. L'utilizzo di tecnologie all'avanguardia, conferirà alla casa comfort ambientale, termico ed acustico. I consumi energetici saranno ridotti al minimo grazie a soluzioni ad alta efficienza. Appartamento n. 9 trilocale al piano secondo di 74,3 mq. oltre 17 mq. di terrazzi composto da: ingresso, soggiorno con cucina a vista, 2 camere e bagno, due balconi Lo Studio Ca'Bella è l'ufficio vendita esclusivo della Residenza Chantal. Progettazione Studio Architetto Gatti. Se avete un'immobile da vendere o da affittare contattateci, Vi forniremo una VALUTAZIONE GRATUITA e vi illustreremo come potremmo aiutarVi, attraverso i nostri servizi, a vendere o affittare il Vostro immobile al miglior prezzo e nel minor tempo possibile. Rimani aggiornato sulle nostre offerte cliccando "MI PIACE" alla nostra pagina Facebook: Studio Ca'Bella Seguici su Instagram: studiocabella Da 40 anni camminiamo insieme nel mercato immobiliare per esaudire ogni sogno, ogni ideale di casa, promuovendo e offrendo servizi di consulenza ed intermediazione immobiliare per ogni esigenza: abitativa, commerciale, industriale. Studio Ca'Bella s. a. s. Via Ronzoni, 10 20811 Cesano Maderno (MB) Tel. 0362/508494.
Main data
| Reference | 01-Chantal app |
| Ad date | 24/04/2026 |
| Contract | Sale |
| Typology | Apartment |
| Surface | 84 m2 |
| Locals | 3 (2 bedrooms, 1 other), 1 bathroom |
| Plan | 2 from 3 totals |
| Construction type | Average |
| Occupied | Free |
| Furniture | Absent |
Costs
| Price | 255.000 € |
| Price per m2 | 3.036 €/m2 |
Energy efficiency
| Heating | Autonomous |
| Heating System Type | on the floor |
| Heating Power Type | Photovoltaic |
| Energy rating | A4 |
Floor plans
Address and map
Giovanni Verga
18, Cesano Maderno
Ad without map,
try asking the advertiser for the position
try asking the advertiser for the position
Mortgage calculation
Selling price:
Advance
20,00
Mortgage
80,00
Rate: -+
Payment: 729 per month
The results are an indicative estimate based on the data entered and do not constitute a financial offer.
Advertiser

Studio Ca Bella srl
via giuseppe ronzoni 10, Cesano Maderno
Show Phone
Show Mobile
Call
CONTACT

