Shop Via XX Settembre 13, San Nicola la Strada
€ 900 per month
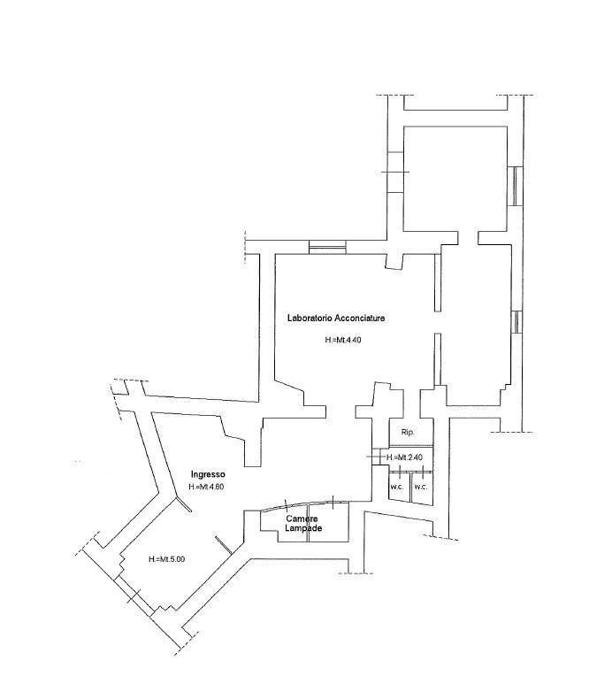
Ampio locale commerciale in zona centrale in affitto Nel pieno centro di San Nicola la Strada, precisamente in Via XX Settembre, proponiamo in locazione un locale commerciale al piano terra di circa 280 mq, La soluzione, caratterizzata da una posizione strategica e ad elevata visibilità, si sviluppa in un ampio ingresso e quattro spaziosi vani, facilmente modulabili in base alle esigenze dellattività. Completano limmobile due bagni e un pratico ripostiglio. La generosa metratura e la versatilità degli ambienti rendono il locale ideale per molteplici destinazioni commerciali, studi professionali o attività di rappresentanza. Ottima opportunità per chi desidera investire o avviare la propria attività in una delle zone più centrali e servite della città.
Main data
| Reference | LCF120 |
| Ad date | 24/04/2026 |
| Contract | Rent |
| Typology | Shop |
| Surface | 280 m2 |
| Locals | 4 (4 other), 2 bathrooms, kitchen not present |
| Plan | Earth |
| Occupied | Free |
| Garage | Absent |
| Furniture | Absent |
Costs
| Price | 900 € per month |
Energy efficiency
| Status | Good |
| Heating | Autonomous |
| Heating System Type | by air |
| Heating Power Type | Electric |
| Energy rating | G |
| Energy Performance Index (IPE) | - |
Floor plans
Address and map
Via XX Settembre
13, San Nicola la Strada
Ad without map,
try asking the advertiser for the position
try asking the advertiser for the position
Advertiser

L'immobiliare.com Caserta
Via Ferrarecce 129/133, Caserta
Show Phone
Show Mobile
Call
CONTACT

