Rustic Via Martiri della Libertà 21, Mathi
€ 495.000
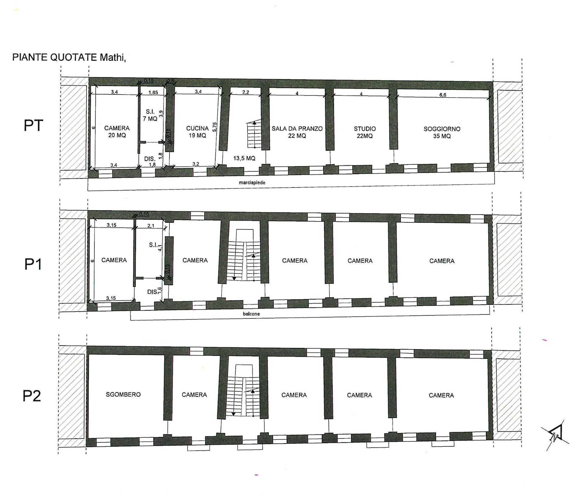
Nel centro di Mathi, nel suggestivo borgo medioevale un tempo occupato dallantico castello di cui resta oggi il caratteristico torrione, proponiamo in vendita una prestigiosa dimora dei primi 800, di grande impatto storico, espressione autentica della memoria architettonica del borgo. Laccesso avviene attraverso due cancelli, che conducono a un contesto di grande fascino e quiete: il giardino, di circa 760 mq, interamente racchiuso da mura perimetrali, elemento che richiama loriginaria funzione difensiva del sito e al contempo garantisce una dimensione di assoluta riservatezza. Questa bellissima proprietà si sviluppa su tre livelli per una superficie interna abitativa complessiva di 500 mq circa, più il sottotetto e le pertinenze. La distribuzione degli ambienti richiama quella delle antiche residenze signorili, ovvero una sequenza armonica di stanze di rappresentanza comunicanti, disposte luna dopo laltra, unite da un corridoio longitudinale che si affaccia sul giardino interno. Gli interni conservano un rilevante valore storico artistico, tutte le stanze risultano affrescate e decorate, tutti gli ambienti sono arricchiti da arredi depoca che esaltano lautenticità storica, nei quali si percepisce ancora oggi il prestigio dellantica residenza. Descrizioni degli ambienti: Al piano terreno troviamo la cucina, la sala da pranzo, una camera da letto e il grande salone caratterizzato dai soffitti finemente affrescati e decorazioni originali Il primo ed il secondo piano, sono un susseguirsi di suggestive stanze per un totale di nove camere da letto Dal secondo ed ultimo piano si accede al sottotetto, dove recentemente è stato effettuato un rifacimento integrale della copertura. Pertinenze: Al piano interrato tramite una scala in pietra, si accede al locale utilizzato quale tavernetta, le volte a botte con mattoni a vista rendono anche questambiente una particolare bellezza antica. Un altro locale cantina di circa 25 mq con accesso dal giardino. Infine, due piccole costruzioni gemelle al lato del portico dingresso incorniciano lentrata nella proprietà, i due corpi laterali hanno la dimensione di circa 18 mq caduna, negli anni usate come giardino dinverno. Questa particolare proprietà, unica nel suo genere è ideale sia come residenza di rappresentanza sia per progetti di valorizzazione di pregio.
Main data
| Reference | 14386 |
| Ad date | 24/04/2026 |
| Contract | Sale |
| Typology | Rustic |
| Surface | 664 m2 |
| Locals | more than 5 (9 bedrooms, 2 other), 2 bathrooms, kitchen habitable |
| Plan | Entire building, 3 totals |
| Occupied | Free |
| Furniture | Partial |
Costs
| Price | 495.000 € |
| Price per m2 | 745 €/m2 |
Energy efficiency
| Status | Good |
| Heating | Autonomous |
| Energy rating | E |
| Energy Performance Index (IPE) | 145 kWh/m2 year |
Floor plans
Address and map
Via Martiri della Libertà
21, Mathi
Ad without map,
try asking the advertiser for the position
try asking the advertiser for the position
Mortgage calculation
Selling price:
Advance
20,00
Mortgage
80,00
Rate: -+
Payment: 1.416 per month
The results are an indicative estimate based on the data entered and do not constitute a financial offer.
Advertiser

Martinetto Immobiliare srl
Via Torino, 64, San Francesco al Campo
Show Phone
Show Mobile
Call
CONTACT

