Rustic Via Francesco Crispi, Gattatico
€ 130.000Rustico in vendita
GATTATICO - CASA COLONICA IMMERSA NELLE CAMPAGNE REGGIANE.
Se cerchi una dimora che non sia solo una casa, ma un pezzo di storia immerso nel silenzio delle campagne reggiane, questa soluzione è l'opportunità che stavi aspettando. Ti proponiamo una tipica casa colonica ideale per chi desidera un ritorno alle origini senza rinunciare ai comfort della modernità.
L'immobile si presenta attualmente allo stato grezzo, ma con il vantaggio di avere già i lavori di ristrutturazione avviati. Un'ottima base di partenza: gli impianti sono già stati predisposti e gli interni sono stati sabbiati, riportando alla luce la bellezza dei materiali originari. La casa aspetta solo di essere ultimata e personalizzata secondo il tuo gusto e le tue esigenze.
La struttura conserva la distribuzione iconica delle corti di una volta, abbiamo la porta morta centrale, uno spazio coperto e versatile che funge da splendido ingresso scenografico, ma assolutamente versatile anche come zona svago di grande impatto.
Situata a destra della porta morta vi è l’ex stalla, l'ambiente più suggestivo della proprietà, caratterizzata dal soffitto con le classiche volte in mattoncini, si presta a diventare un salone unico, una taverna o ciò che più si preferisce.
Sulla sinistra della struttura si sviluppa la residenza principale, pensata per accogliere anche famiglie numerose.
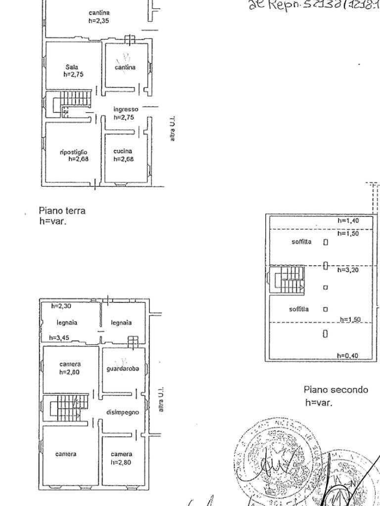
Piano Terra: La zona giorno è composta da un accogliente ingresso, sala, cucina abitabile, una camera da letto supplementare (ottima come studio o per gli ospiti), bagno e una pratica cantina.
Primo Piano: La zona notte ospita tre ampie camere da letto e un secondo bagno.
Sottotetto: Un valore aggiunto incredibile; grazie alle altezze generose, questo piano può essere completamente recuperato e sfruttato come mansarda abitabile, ulteriore zona notte o area relax.
La proprietà non finisce qui. Troverai spazi accessori fondamentali come l'ex fienile e un suggestivo portico, ideali per cene all'aperto. Il tutto è completato da uno spazio verde privato, un giardino di proprietà dove godersi la serenità della natura in totale privacy.
PER MAGGIORI INFORMAZIONI O PER FISSARE UNA VISITA PRIVATA CHIAMACI AL 0522.902044
Se cerchi una dimora che non sia solo una casa, ma un pezzo di storia immerso nel silenzio delle campagne reggiane, questa soluzione è l'opportunità che stavi aspettando. Ti proponiamo una tipica casa colonica ideale per chi desidera un ritorno alle origini senza rinunciare ai comfort della modernità.
L'immobile si presenta attualmente allo stato grezzo, ma con il vantaggio di avere già i lavori di ristrutturazione avviati. Un'ottima base di partenza: gli impianti sono già stati predisposti e gli interni sono stati sabbiati, riportando alla luce la bellezza dei materiali originari. La casa aspetta solo di essere ultimata e personalizzata secondo il tuo gusto e le tue esigenze.
La struttura conserva la distribuzione iconica delle corti di una volta, abbiamo la porta morta centrale, uno spazio coperto e versatile che funge da splendido ingresso scenografico, ma assolutamente versatile anche come zona svago di grande impatto.
Situata a destra della porta morta vi è l’ex stalla, l'ambiente più suggestivo della proprietà, caratterizzata dal soffitto con le classiche volte in mattoncini, si presta a diventare un salone unico, una taverna o ciò che più si preferisce.
Sulla sinistra della struttura si sviluppa la residenza principale, pensata per accogliere anche famiglie numerose.
Piano Terra: La zona giorno è composta da un accogliente ingresso, sala, cucina abitabile, una camera da letto supplementare (ottima come studio o per gli ospiti), bagno e una pratica cantina.
Primo Piano: La zona notte ospita tre ampie camere da letto e un secondo bagno.
Sottotetto: Un valore aggiunto incredibile; grazie alle altezze generose, questo piano può essere completamente recuperato e sfruttato come mansarda abitabile, ulteriore zona notte o area relax.
La proprietà non finisce qui. Troverai spazi accessori fondamentali come l'ex fienile e un suggestivo portico, ideali per cene all'aperto. Il tutto è completato da uno spazio verde privato, un giardino di proprietà dove godersi la serenità della natura in totale privacy.
PER MAGGIORI INFORMAZIONI O PER FISSARE UNA VISITA PRIVATA CHIAMACI AL 0522.902044
Main data
| Reference | 61207147 |
| Ad date | 23/04/2026 |
| Contract | Sale |
| Typology | Rustic |
| Surface | 565 m2 |
| Locals | more than 5 (8 other) |
| Plan | 2 totals |
| Number of parking spaces | 2 |
Costs
| Price | 130.000 € |
| Price per m2 | 230 €/m2 |
Energy efficiency
| Year built | 1900 |
| Heating | Absent |
| Energy rating | E |
| Energy performance index (EP GL, REN ) | 182.43 kWh/m3 year |
| Energy performance index (EP GL, NREN ) | 182.43 kWh/m3 year |
Floor plans
Address and map
Via Francesco Crispi, Gattatico
Mortgage calculation
Selling price:
Advance
20,00
Mortgage
80,00
Rate: -+
Payment: 372 per month
The results are an indicative estimate based on the data entered and do not constitute a financial offer.
Advertiser
Call
CONTACT

