Commercial Activity via Senite, Scala
€ 1.300.000STRUTTURA RICETTIVA CON AREA SCOPERTA
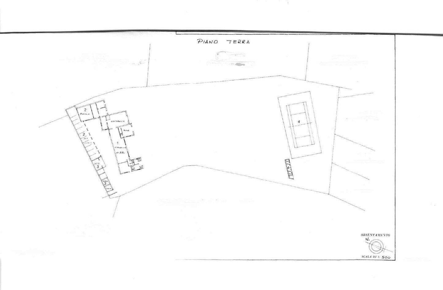
Situato nella pittoresca cittadina di Scala, questo immobile si trova in Via Senite, una posizione che offre un contesto tranquillo e facilmente accessibile. Scala è nota per il suo fascino storico e la sua bellezza naturale, rendendo questa proprietà un'opportunità unica per chi desidera investire in un'area ricca di cultura e tradizione. La struttura, di categoria catastale D/2 e D/8, è adibita a ristorazione con annessa area scoperta adibita ad area pic-nic, sulla stessa area che si estende su una superficie commerciale di circa 8000 metri quadrati insistono depositi, due vasche per la raccolta dell'acqua ed un campo da calcetto. È situata al piano terra, garantendo un accesso comodo e diretto. Lo spazio è mantenuto in buone condizioni, pronto per essere utilizzato o personalizzato secondo le esigenze del nuovo proprietario. Inoltre, la presenza di un campo da tennis/calcetto aggiunge un elemento di esclusività e svago, ideale per chi desidera offrire un'esperienza completa ai propri clienti. L'immobile è attualmente libero, offrendo la possibilità di un immediato utilizzo o di un rapido avvio di eventuali lavori di ristrutturazione o personalizzazione. La vendita di questa proprietà rappresenta un'opportunità rara di acquisire uno spazio commerciale di ampie dimensioni in una delle località più affascinanti della regione. Con la sua posizione strategica, questo immobile è perfetto per chi cerca un investimento solido e versatile. Ottimo con alta redditività. Punti di forza dell'immobile: - Ristorante/area pic-nic/ campetto da calcio-tennis - ampia metratura - ottima redditività Stai pensando di vendere o affittare il tuo locale commerciale? Con RockAgent puoi vendere o affittare il tuo immobile assicurandoti un servizio eccellente, garantito da agenti immobiliari selezionati supportati da un team tecnico, marketing e legale di altissimo livello. Visita il sito RockAgent.it e ottieni una valutazione gratuita del tuo immobile.
Main data
| Reference | 154696 - 20/04/2026 |
| Ad date | 10/03/2026 |
| Contract | Sale |
| Typology | Commercial Activity |
| Surface | 8000 m2 |
Costs
| Price | 1.300.000 € |
| Price per m2 | 163 €/m2 |
Energy efficiency
| Heating | Absent |
| Energy rating | Property exempt from energy certification |
Floor plans
Address and map
via Senite, Scala
Mortgage calculation
Selling price:
Advance
20,00
Mortgage
80,00
Rate: -+
Payment: 3.718 per month
The results are an indicative estimate based on the data entered and do not constitute a financial offer.
Advertiser

RockAgent
Via di Santa Costanza 21, Roma
Show Phone
Call
CONTACT

