Attic via Nazionale, 5, Bellante
€ 135.000AMPIO APPARTAMENTO PANORAMICO CON GRANDI TERRAZZI
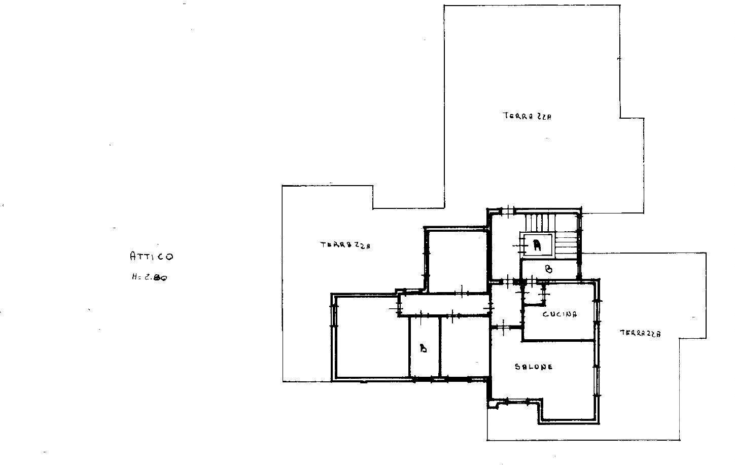
Ampio appartamento panoramico con grandi terrazzi e lastrico solare di proprietà, in posizione strategica e servitissima, nel Comune di Bellante. Proponiamo in vendita ampio appartamento di circa 140 mq, situato al quarto piano di una palazzina in Via Nazionale, a pochi minuti dal casello autostradale e lungo la principale arteria che collega Teramo alla costa adriatica. L’immobile si distingue per spazi generosi, grande luminosità e una vista panoramica aperta sulle colline circostanti. Spazi esterni e valore aggiunto, 3 ampie aree esterne / terrazzi per circa 291 mq. totalmente vivibili e personalizzabili, ideali per zona relax, pranzi all’aperto, area verde o spazi hobby. Panorama suggestivo sulle colline, con affacci aperti e ottima esposizione. Lastrico solare di proprietà, elemento raro e di grande valore, sfruttabile per efficientamento energetico, installazione di pannelli solari, impianti per la climatizzazione o soluzioni tecnologiche evolute. Posti auto esterni, garage e fondaco di pertinenza ideale come deposito, dispensa o spazio di servizio. A pochi minuti dal casello autostradale, posizione strategica tra Teramo e la costa adriatica. Tutti i principali servizi nelle immediate vicinanze, inclusi centro commerciale, negozi, attività e collegamenti principali Grazie al piano alto, l’appartamento risulta estremamente luminoso, arioso e panoramico, rappresentando una soluzione ideale per famiglie, per chi cerca grandi spazi esterni, o come investimento immobiliare di qualità. Immobile regolarmente accatastato. Punti di forza dell'immobile: - #UltimoPianoPanoramico - #GrandiTerrazzi - #PosizioneStrategica L'immobile è situato a pochi metri dalla stazione di BELLANTE-RIPATTONE (380 m). L'asilo per bambini più vicino è INFANZIA BELLANTE STAZIONE (140 m). Stai pensando di vendere o affittare casa? Con RockAgent puoi vendere o affittare il tuo immobile assicurandoti un servizio eccellente, garantito da agenti immobiliari selezionati supportati da un team tecnico, marketing e legale di altissimo livello. Visita il sito RockAgent.it e ottieni una valutazione gratuita del tuo immobile.
Main data
| Reference | 181088 - 20/04/2026 |
| Ad date | 26/02/2026 |
| Contract | Sale |
| Typology | Attic |
| Surface | 141 m2 |
| Locals | 5 (3 bedrooms, 2 other), 2 bathrooms, kitchen habitable |
| Plan | 4 from 4 totals |
| Construction type | Average |
| Number of terraces | 1 |
| Garage | Single |
| Number of parking spaces | 2 |
| Furniture | Partial |
Costs
| Price | 135.000 € |
| Price per m2 | 957 €/m2 |
| Condominium fees | €109,00/month |
Energy efficiency
| Year built | 1980 |
| Status | Excellent |
| Heating | Autonomous |
| Energy rating | E |
| Energy Performance Index (IPE) | 175 kWh/m2 year |
Floor plans
Address and map
via Nazionale, 5, Bellante
Mortgage calculation
Selling price:
Advance
20,00
Mortgage
80,00
Rate: -+
Payment: 386 per month
The results are an indicative estimate based on the data entered and do not constitute a financial offer.
Advertiser

RockAgent
Via di Santa Costanza 21, Roma
Show Phone
Call
CONTACT

