Independent house via Francesco Cossiga, 180, Siligo
€ 95.000CASA INDIPENDENTE IMMERSA NEL VERDE
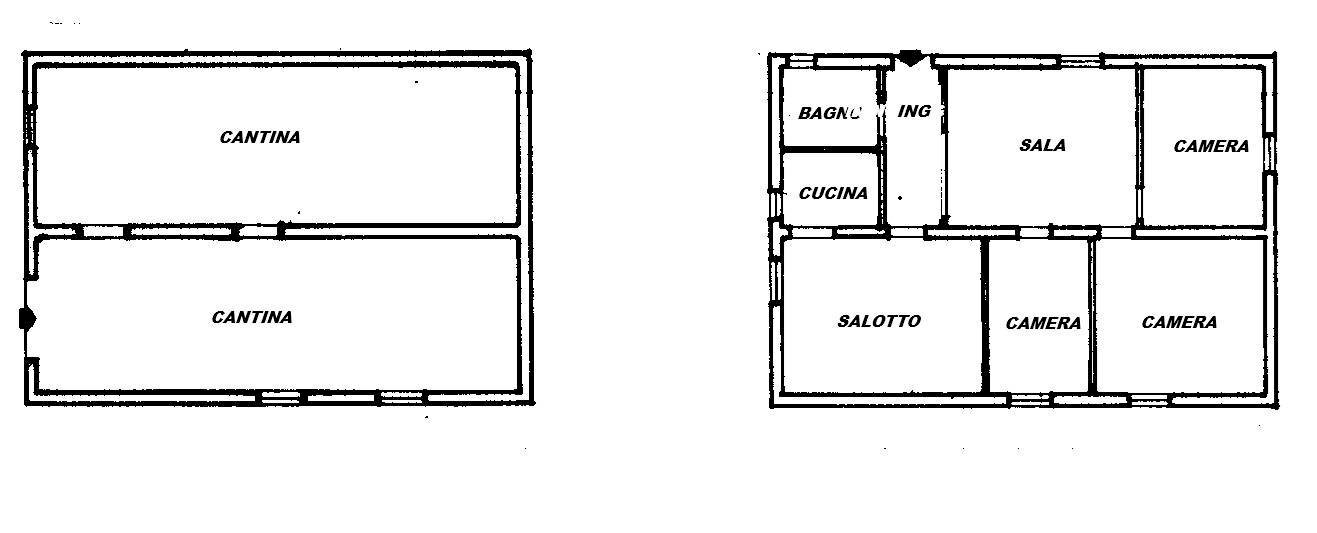
Situato nel tranquillo comune di Siligo, questo terratetto unifamiliare si trova in Via Francesco Cossiga, una zona che offre un contesto residenziale sereno e ben collegato. La proprietà è libera su quattro lati, garantendo così una maggiore privacy e luminosità. La posizione è ideale per chi cerca un ambiente tranquillo senza rinunciare alla comodità dei servizi essenziali nelle vicinanze, visto anche l' immediato ingresso con cancello sulla strada principale all' uscita del paese. L'immobile si sviluppa su due piani, con una superficie commerciale di circa 145 metri quadrati. Al piano terra, l'ingresso conduce a un accogliente soggiorno dotato di camino e ad una grande sala, perfette per creare un'atmosfera calda e accogliente durante le serate invernali. La cucina è un pratico cucinotto, adatto per chi ama cucinare in uno spazio funzionale. La zona notte comprende tre camere da letto, offrendo ampio spazio per una famiglia o per ospiti. Il bagno, finestrato e completo di doccia è ben posizionato per servire comodamente tutte le stanze. La veranda esterna, che costeggia due quarti della proprietà, offre uno spazio esterno aggiuntivo, ideale per momenti di relax all'aperto. La proprietà include anche una taverna, nel piano seminterrato, che può essere utilizzata come spazio ricreativo o per lo stoccaggio, e una cantina per ulteriore spazio di archiviazione, con un suo ingresso indipendente. L'immobile è in stato abitabile e viene venduto arredato, facilitando così un immediato trasferimento. Il riscaldamento è autonomo, con un impianto a radiatori alimentato a pellet, mentre il climatizzatore autonomo offre aria condizionata sia fredda che calda, garantendo comfort in ogni stagione. Gli infissi sono in vetro camera. Il terreno, piantumato con alberi da frutto, uliveto e macchia mediterranea di circa mezzo ettaro, circonda tutta la proprietà, garantendo un' oasi di pace per chiunque ami la natura. Spazio necessario per ospitare più posti auto nel cortile, un vantaggio significativo per chi possiede più veicoli. L'immobile è attualmente a reddito e sarà libero da Marzo 2026. Punti di forza dell'immobile: - indipendente - terreno - pronto da vivere La linea di autobus più vicina è SILIGO VIA F.COSSIGA 64 (260 m). Stai pensando di vendere o affittare casa? Con RockAgent puoi vendere o affittare il tuo immobile assicurandoti un servizio eccellente, garantito da agenti immobiliari selezionati supportati da un team tecnico, marketing e legale di altissimo livello. Visita il sito RockAgent.it e ottieni una valutazione gratuita del tuo immobile.
Main data
| Reference | 160638 - 20/04/2026 |
| Ad date | 10/03/2026 |
| Contract | Sale |
| Typology | Independent house |
| Surface | 145 m2 |
| Locals | 4 (3 bedrooms, 1 other), 1 bathroom, kitchen small kitchen |
| Plan | 2 totals |
| Construction type | Average |
| Number of terraces | 1 |
| Number of parking spaces | 2 |
| Furniture | Complete |
Costs
| Price | 95.000 € |
| Price per m2 | 655 €/m2 |
Energy efficiency
| Year built | 1960 |
| Status | Good |
| Heating | Autonomous |
| Energy rating | D |
| Energy Performance Index (IPE) | 175 kWh/m2 year |
Floor plans
Address and map
via Francesco Cossiga, 180, Siligo
Mortgage calculation
Selling price:
Advance
20,00
Mortgage
80,00
Rate: -+
Payment: 272 per month
The results are an indicative estimate based on the data entered and do not constitute a financial offer.
Advertiser

RockAgent
Via di Santa Costanza 21, Roma
Show Phone
Call
CONTACT

