Rustic Frazione Montale, 136, Arcevia
€ 157.000TIPICO CASALE IN PIETRA CON GIARDINO
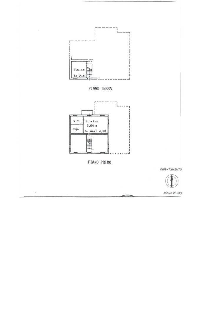
Casale in pietra con giardino. Situato nella tranquilla frazione di Montale, nel comune di Arcevia, questo affascinante casale in pietra rappresenta una rara opportunità per chi desidera vivere immerso nel verde delle colline marchigiane, in un contesto di pace e riservatezza. Ottima ubicazione: lontana dallo stress cittadino ma senza rinunciare alla comodità dei servizi: negozi, supermercati, farmacia, banca, bar e altre attività sono facilmente raggiungibili a piedi. E' un tipico casale marchigiano che ha già beneficiato di importanti interventi di ristrutturazione strutturale, tra cui il rifacimento dei solai e l’installazione delle chiavi di contenimento, a garanzia di solidità e sicurezza. In circa 30 minuti di auto, si raggiungono il mare di Senigallia, le Grotte di Frasassi, il Parco naturale circostante e numerosi luoghi di interesse culturale e religioso. L’ingresso conduce a una cucina tipica, impreziosita da un grande camino che rende l’ambiente caldo e accogliente nelle serate invernali. Alla destra si trova un locale con ingresso indipendente, ideale come soggiorno aggiuntivo, studio o ufficio. Salendo pochi gradini (circa 10), si accede alla zona giorno principale composta da un ampio e luminoso salone con un balcone con vista aperta sulla colline. Vi è un bagno con ripostiglio e due camere da letto. Al piano terra è presente un grande locale con soffitti alti, collegato internamente con la cucina che ha un ingresso indipendente: uno spazio perfetto da adibire a taverna. Sotto di essa è stata realizzata una suggestiva grotta, con importanti lavori di rinforzo strutturale già eseguiti. La proprietà comprende inoltre: un ampio locale cat. D/10, attualmente utilizzato come box, con la possibilità di essere trasformato in un mini appartamento; un antico forno in pietra; un giardino interno recintato, con ingresso indipendente, alberi ad alto fusto che garantiscono ombra naturale e piante di ulivo, ideale per vivere gli spazi esterni in totale privacy. SOLO CASALE costo eu 157.000 . A disposizione ci sono anche circa 3 ettari di terreno agricolo con pozzo ad euro 60.000 - CASALE E TERRENO euro 217.000 Il casale è già abitabile, anche se sono consigliati aggiornamenti agli impianti elettrici / riscaldamento. L’immobile è dotato di asseverazione tecnica di conformità urbanistica e planimetrica, redatta da un ingegnere. È possibile organizzare una visita in videochiamata con l’agente immobiliare Fortunati, che fornirà ogni dettaglio e accompagnerà l’acquirente in tutte le fasi fino al rogito. Il metraggio indicato è da considerarsi indicativo e non esaustivo. Punti di forza dell'immobile: - indipendente con giardino - ottima ubicazione - solare La linea di autobus più vicina è MONTALE (FONTANELLE) (470 m). Stai pensando di vendere o affittare casa? Con RockAgent puoi vendere o affittare il tuo immobile assicurandoti un servizio eccellente, garantito da agenti immobiliari selezionati supportati da un team tecnico, marketing e legale di altissimo livello. Visita il sito RockAgent.it e ottieni una valutazione gratuita del tuo immobile.
Main data
| Reference | 181534 - 20/04/2026 |
| Ad date | 26/02/2026 |
| Contract | Sale |
| Typology | Rustic |
| Surface | 300 m2 |
| Locals | more than 5 (2 bedrooms, 7 other), 1 bathroom, kitchen habitable |
| Plan | 1 from 1 totals |
| Construction type | Average |
| Number of balconies | 1 |
| Garage | Single |
| Number of parking spaces | 6 |
| Furniture | Partial |
Costs
| Price | 157.000 € |
| Price per m2 | 523 €/m2 |
Energy efficiency
| Year built | 1900 |
| Status | Good |
| Heating | Centralized |
| Energy rating | G |
| Energy Performance Index (IPE) | 615 kWh/m2 year |
Floor plans
Address and map
Frazione Montale, 136, Arcevia
Mortgage calculation
Selling price:
Advance
20,00
Mortgage
80,00
Rate: -+
Payment: 449 per month
The results are an indicative estimate based on the data entered and do not constitute a financial offer.
Advertiser

RockAgent
Via di Santa Costanza 21, Roma
Show Phone
Call
CONTACT

