Building land C.da Serpaolo, Augusta
€ 260.000
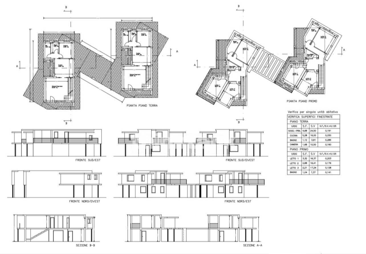
Proponiamo in vendita un interessante terreno edificabile ad Augusta vicino al mare, unopportunità immobiliare ideale sia per chi desidera costruire la propria abitazione sia per chi è alla ricerca di un investimento immobiliare con ottime prospettive di valorizzazione. Il lotto ha una superficie totale di 1008 mq, con 756 mq edificabili, e dispone già di progetto approvato, prospetti e oneri urbanistici pagati. Un grande vantaggio per chi desidera iniziare rapidamente la realizzazione dellimmobile senza affrontare lunghe tempistiche burocratiche. Dall'acquisto passerebbero solo 6-8 mesi per la realizzazione dell'immobile. Il progetto prevede la realizzazione di due ville bifamiliari, offrendo quindi una grande flessibilità di acquisto. È infatti possibile acquistare lintero terreno per sviluppare tutte le unità abitative come investimento, oppure acquistare una singola villa bifamiliare da destinare a uso abitativo. Questa caratteristica rende il terreno edificabile ad Augusta particolarmente interessante per costruttori, investitori o famiglie che desiderano vivere in un contesto residenziale moderno. La proprietà si trova in una delle zone residenziali più esclusive e apprezzate del panorama augustano, caratterizzata da tranquillità, contesto abitativo di qualità e vicinanza al mare. La posizione è ideale per chi desidera vivere lontano dal caos ma allo stesso tempo rimanere vicino ai principali servizi e alla costa. Uno dei punti di forza di questo terreno edificabile ad Augusta vicino al mare è proprio la sua posizione strategica. La vicinanza alla costa permette di godere facilmente di passeggiate sul lungomare, momenti di relax e del clima tipicamente mediterraneo, rendendo limmobile perfetto sia come abitazione principale sia come casa per le vacanze. Dal punto di vista dellesposizione, il terreno gode di tripla esposizione est, ovest e nord, un elemento molto importante per la qualità abitativa delle future costruzioni. Questa esposizione garantisce ottima luminosità naturale durante tutta la giornata, ambienti più salubri e un maggiore comfort abitativo. Investire in un terreno edificabile ad Augusta con progetto già approvato per due ville bifamiliari significa puntare su una nuova costruzione moderna ed efficiente, sempre più richiesta nel mercato immobiliare attuale. Le abitazioni di nuova costruzione offrono infatti migliori prestazioni energetiche, comfort abitativo e maggiore valore nel tempo. Questa proposta rappresenta quindi una rara opportunità nel mercato immobiliare di Augusta, perfetta per chi desidera costruire la propria casa in una zona prestigiosa o sviluppare un progetto immobiliare con grande potenziale di rendimento.
Main data
| Reference | TTR101-2115 |
| Ad date | 21/04/2026 |
| Contract | Sale |
| Typology | Building land |
| Surface | 1008 m2 |
| Occupied | Free |
Costs
| Price | 260.000 € |
| Price per m2 | 258 €/m2 |
Energy efficiency
| Heating Power Type | Other |
| Energy rating | Property exempt from energy certification |
Floor plans
Address and map
C.da Serpaolo, Augusta
Ad without map,
try asking the advertiser for the position
try asking the advertiser for the position
Mortgage calculation
Selling price:
Advance
20,00
Mortgage
80,00
Rate: -+
Payment: 744 per month
The results are an indicative estimate based on the data entered and do not constitute a financial offer.
Advertiser
Think Tank Realtor
Via Antioco 10, Siracusa
Show Phone
Show Mobile
Call
CONTACT

