Villa Frazione Dicomano Campagna 11, Dicomano
€ 435.000
A soli 35 km da Firenze, in posizione dominante sulla cittadina di Dicomano raggiungibile in auto in meno di un chilometro proponiamo in vendita una splendida villa libera sui quattro lati, immersa nella quiete e nella bellezza delle colline toscane. Estremamente luminosa, la proprietà vanta un ampio terrazzo esposto a sud che abbraccia labitazione, regalando ogni giorno un panorama mozzafiato sul paesaggio tipico della Toscana. La superficie supera i 200 mq (circa 300 mq commerciali) e si sviluppa principalmente al piano terra, dove si trovano sette vani finestrati, tra cui due spaziose camere matrimoniali una delle quali con elegante guardaroba e bagno privato con vasca. Completano il livello un secondo bagno con doccia, una cucina con dispensa, una comoda zona pranzo e una meravigliosa sala living con vista impareggiabile sulle colline. Al piano sottostante, accessibile da una luminosa veranda, si apre un ulteriore spazio composto da quattro locali finestrati, un vano tecnico e due bagni, di cui uno con doccia: ambienti perfetti per creare zone relax, hobby, palestra o per accogliere ospiti. La villa è circondata da oltre 4.000 mq di giardino privato, in parte alberato e ricco di essenze che esplodono di colori e profumi già prima della primavera, impreziosito da tre magnifiche magnolie. Una proprietà unica, ideale per chi cerca tranquillità, natura e ampi spazi senza rinunciare alla comodità dei servizi. Per garantire la privacy dei proprietari, la mappa e l'indirizzo possono non rispecchiare esattamente l'ubicazione precisa dell'immobile. La presente scheda non costituisce forma di contratto, le informazioni qui contenute sono da ritenersi del tutto indicative e non potranno essere utilizzate come parte integrante in un eventuale contratto di vendita o locazione della proprietà. La presente non vincola in alcun modo la società.
Main data
| Reference | 002- Villa "Le Tre Magnolie" Dicomano |
| Ad date | 15/04/2026 |
| Contract | Sale |
| Typology | Villa |
| Surface | 300 m2 |
| Locals | more than 5 (2 bedrooms, 5 other), 3 bathrooms, kitchen habitable |
| Plan | Earth, 2 totals |
| Construction type | Signorile |
| Occupied | Free |
| Garage | Absent |
| Number of parking spaces | 2 |
| Furniture | Partial |
Costs
| Price | 435.000 € |
| Price per m2 | 1.450 €/m2 |
Energy efficiency
| Status | Excellent |
| Heating | Autonomous |
| Energy rating | G |
| Energy Performance Index (IPE) | - |
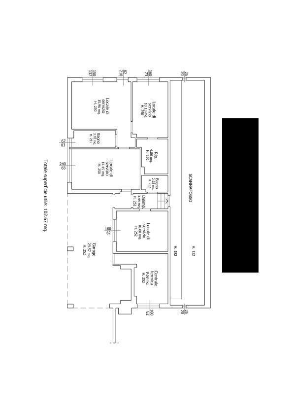
Floor plans
Address and map
Frazione Dicomano Campagna
11, Dicomano
Ad without map,
try asking the advertiser for the position
try asking the advertiser for the position
Mortgage calculation
Selling price:
Advance
20,00
Mortgage
80,00
Rate: -+
Payment: 1.244 per month
The results are an indicative estimate based on the data entered and do not constitute a financial offer.
Advertiser

Ritmo Maison
Via G. Marconi, 13Rosso, Firenze
Show Mobile
Call
CONTACT

