Warehouse via Galliera 33, Bologna
€ 75.000
Grande deposito in pieno centro storico, con bagno e lucernario.
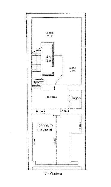
In via Galliera, una delle strade più nobili del centro storico di Bologna, adiacenze Piazzetta della Pioggia, a metà strada tra la Stazione Ferroviaria e Piazza Maggiore (dieci minuti a piedi, in entrambi i casi), Vi proponiamo, in vendita, un deposito di 46 mq commerciali, caratterizzato da un suggestivo soffitto a volte, completamente intonacato e tinteggiato, con generose altezze: minima 2,20 mt e massima 3,00 mt. E' situata al piano interrato di un piccolo condominio dotato di un grazioso cortile, utile per parcheggiare le biciclette. L'androne, i vani scale e tutti gli spazi comuni sono molto ben tenuti.
Il nostro immobile è composto da due vani e da un bagno con doccia. Il vano di ingresso possiede un lucernario, che prende luce ed aria dal cortile interno, ed un lavabo. Al momento, il tutto è dotato di una robusta porta in ferro e si trova in buone condizioni, con già installato un sistema di aerazione che comunica con l'esterno. Questo immobile è solo un magazzino/deposito, sicuramente appetibile per chi vive o ha un'attività in zona, ma viene subito l'idea di utilizzarlo anche come sala hobby, sala di registrazione per uso amatoriale, palestra privata, rifugio anti atomico ;-)) o altro ancora, per tutti coloro che già amano il centro storico.
Per ulteriori informazioni e/o sopralluoghi, pervia firma del foglio visita, telefonate al 348 8911523 Paolo Giacopini Immobiliare.
In via Galliera, una delle strade più nobili del centro storico di Bologna, adiacenze Piazzetta della Pioggia, a metà strada tra la Stazione Ferroviaria e Piazza Maggiore (dieci minuti a piedi, in entrambi i casi), Vi proponiamo, in vendita, un deposito di 46 mq commerciali, caratterizzato da un suggestivo soffitto a volte, completamente intonacato e tinteggiato, con generose altezze: minima 2,20 mt e massima 3,00 mt. E' situata al piano interrato di un piccolo condominio dotato di un grazioso cortile, utile per parcheggiare le biciclette. L'androne, i vani scale e tutti gli spazi comuni sono molto ben tenuti.
Il nostro immobile è composto da due vani e da un bagno con doccia. Il vano di ingresso possiede un lucernario, che prende luce ed aria dal cortile interno, ed un lavabo. Al momento, il tutto è dotato di una robusta porta in ferro e si trova in buone condizioni, con già installato un sistema di aerazione che comunica con l'esterno. Questo immobile è solo un magazzino/deposito, sicuramente appetibile per chi vive o ha un'attività in zona, ma viene subito l'idea di utilizzarlo anche come sala hobby, sala di registrazione per uso amatoriale, palestra privata, rifugio anti atomico ;-)) o altro ancora, per tutti coloro che già amano il centro storico.
Per ulteriori informazioni e/o sopralluoghi, pervia firma del foglio visita, telefonate al 348 8911523 Paolo Giacopini Immobiliare.
Main data
| Reference | VP305P |
| Ad date | 14/04/2026 |
| Contract | Sale |
| Typology | Warehouse |
| Surface | 46 m2 |
| Locals | 2 (2 other) |
| Occupied | Free |
Costs
| Price | 75.000 € |
| Price per m2 | 1.630 €/m2 |
Energy efficiency
| Heating Power Type | Other |
| Energy rating | Property exempt from energy certification |
Floor plans
Address and map
via Galliera
33, Bologna
Ad without map,
try asking the advertiser for the position
try asking the advertiser for the position
Mortgage calculation
Selling price:
Advance
20,00
Mortgage
80,00
Rate: -+
Payment: 214 per month
The results are an indicative estimate based on the data entered and do not constitute a financial offer.
Advertiser
Call
CONTACT


