Office via Nona Strada, 23, Padova
€ 800 per monthUFFICIO IN ZONA INDUSTRIALE
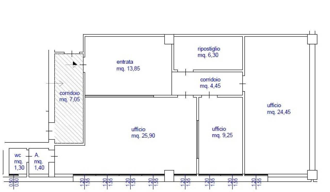
A Padova, in zona industriale, proponiamo in locazione un ufficio con due posti auto. L'immobile si trova in Via Nona Strada, ed è situato al secondo e ultimo piano di un edificio di tre piani, in un contesto direzionale servito da bar e ristorante. La posizione è facilmente accessibile e ben collegata, rendendola ideale per chi cerca un ufficio in una zona strategica della città, comodo alla tangenziale e al casello autostradale di Padova Est. L'edificio è dotato di ascensore, garantendo comodità e praticità. L'ufficio ha una superficie commerciale di circa 105 metri quadrati e si presenta in buono stato. È composto da un ingresso-reception, tre uffici, un ripostiglio e due posti auto. Subito disponibile Punti di forza dell'immobile: - Ottima posizione - Luminoso - Buone condizioni La linea di autobus più vicina è VIALE INDUSTRIA / ARGENTINA (450 m). Stai pensando di vendere o affittare il tuo locale commerciale? Con RockAgent puoi vendere o affittare il tuo immobile assicurandoti un servizio eccellente, garantito da agenti immobiliari selezionati supportati da un team tecnico, marketing e legale di altissimo livello. Visita il sito RockAgent.it e ottieni una valutazione gratuita del tuo immobile.
Main data
| Reference | 158920 - 10/04/2026 |
| Ad date | 10/04/2026 |
| Contract | Rent |
| Typology | Office |
| Surface | 105 m2 |
| Plan | 3 totals |
| Construction type | Average |
| Real estate use | Commercial |
Costs
| Price | 800 € per month |
| Condominium fees | €100,00/month |
Energy efficiency
| Year built | 1990 |
| Heating | Autonomous |
| Energy rating | D |
| Energy Performance Index (IPE) | 105.53 kWh/m2 year |
Floor plans
Address and map
via Nona Strada, 23, Padova
Advertiser

RockAgent
Via di Santa Costanza 21, Roma
Show Phone
Call
CONTACT

