Shop via Goito, 14, Bologna (neighborhood Centro Storico)
€ 840.000VENDITA - Bologna - Via Goito ad.ze Via Indipendenza
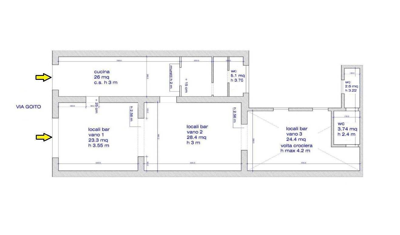
Via Goito ad.ze Via Indipendenza: locale commerciale (C/1) già adibito a PUB, in posizione invidiabile a due passi da Via Indipendenza, dotato di una vetrina su strada, composto da tre ampi vani, locale cucina con ingresso a parte, bagno per gli avventori e bagno per il personale, già accessoriato di bancone ed altri arredamenti specifici dell'attività, tutto da pulire accuratamente con risultato assicurato, libero subito. (APE E 277) Il Locale è Classificato SUE-SUAP (confermato il 12 Febbraio 2026) come E8 per Somministrazione Bar-PUB-Ristorazione. Per visionare ulteriori fotografie e/o planimetrie dell'immobile mandateci una richiesta. Vi risponderemo appena possibile.
Main data
| Reference | CSGL840PUB |
| Ad date | 08/04/2026 |
| Contract | Sale |
| Typology | Shop |
| Surface | 140 m2 |
| Plan | 4 totals |
| Real estate use | Commercial |
Costs
| Price | 840.000 € |
| Price per m2 | 6.000 €/m2 |
Energy efficiency
| Heating | Autonomous |
| Energy rating | E |
| Energy Performance Index (IPE) | 277 kWh/m2 year |
Floor plans
Address and map
via Goito, 14, Bologna - neighborhood Centro Storico
Mortgage calculation
Selling price:
Advance
20,00
Mortgage
80,00
Rate: -+
Payment: 2.402 per month
The results are an indicative estimate based on the data entered and do not constitute a financial offer.
Advertiser
Call
CONTACT


