Three-room apartment VIA LEONARDO DA VINCI 102, Cernusco sul Naviglio
€ 289.000
Ampio Trilocale con Balcone Perimetrale a pochi passi dalla MM2 Cernusco sul Naviglio
In una delle zone più richieste di Cernusco sul Naviglio, a pochi minuti dalla fermata MM2 e dal suggestivo centro storico pedonale, Sogim Immobiliare propone in vendita trilocale caratterizzato da ambienti ampi, luminosi e perfettamente distribuiti.
Situato al primo piano, lappartamento conquista fin dal primo ingresso grazie alle generose metrature e alla piacevole doppia esposizione che dona luce naturale durante tutta la giornata.
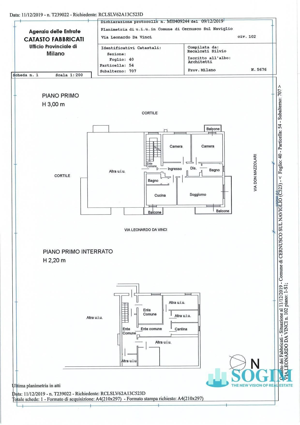
La zona living offre un ampio salone di circa 27 mq con accesso al balcone perimetrale, uno spazio ideale per rilassarsi, condividere momenti in famiglia o creare una piacevole area outdoor. La cucina abitabile, spaziosa e funzionale, completa perfettamente la zona giorno.
La zona notte è composta da due grandi camere matrimoniali, sempre più difficili da trovare nelle moderne costruzioni, entrambe affacciate sul tranquillo cortile interno per garantire privacy e silenzio.
Limmobile dispone inoltre di doppi servizi: un bagno principale finestrato e un secondo bagno di servizio, ideale anche come lavanderia.
Completa la proprietà una cantina al piano seminterrato.
Una posizione che migliora la qualità della vita
Via Leonardo da Vinci rappresenta la soluzione perfetta per chi desidera comfort, servizi e collegamenti senza rinunciare alla tranquillità:
MM2 Cernusco sul Naviglio raggiungibile a piedi
Centro storico e area pedonale nelle immediate vicinanze
Pista ciclabile della Martesana a pochi passi
Scuole, parchi, supermercati e tutti i principali servizi sotto casa
La casa ideale per famiglie, coppie o per chi cerca spazi autentici in una delle località più apprezzate dellhinterland milanese.
Contattaci per maggiori informazioni o per prenotare una visita.
ð www.sogim.net
ð± Instagram: sogimimmobiliare
'¶ï¸ YouTube: sogimimmobiliare
In una delle zone più richieste di Cernusco sul Naviglio, a pochi minuti dalla fermata MM2 e dal suggestivo centro storico pedonale, Sogim Immobiliare propone in vendita trilocale caratterizzato da ambienti ampi, luminosi e perfettamente distribuiti.
Situato al primo piano, lappartamento conquista fin dal primo ingresso grazie alle generose metrature e alla piacevole doppia esposizione che dona luce naturale durante tutta la giornata.
La zona living offre un ampio salone di circa 27 mq con accesso al balcone perimetrale, uno spazio ideale per rilassarsi, condividere momenti in famiglia o creare una piacevole area outdoor. La cucina abitabile, spaziosa e funzionale, completa perfettamente la zona giorno.
La zona notte è composta da due grandi camere matrimoniali, sempre più difficili da trovare nelle moderne costruzioni, entrambe affacciate sul tranquillo cortile interno per garantire privacy e silenzio.
Limmobile dispone inoltre di doppi servizi: un bagno principale finestrato e un secondo bagno di servizio, ideale anche come lavanderia.
Completa la proprietà una cantina al piano seminterrato.
Una posizione che migliora la qualità della vita
Via Leonardo da Vinci rappresenta la soluzione perfetta per chi desidera comfort, servizi e collegamenti senza rinunciare alla tranquillità:
MM2 Cernusco sul Naviglio raggiungibile a piedi
Centro storico e area pedonale nelle immediate vicinanze
Pista ciclabile della Martesana a pochi passi
Scuole, parchi, supermercati e tutti i principali servizi sotto casa
La casa ideale per famiglie, coppie o per chi cerca spazi autentici in una delle località più apprezzate dellhinterland milanese.
Contattaci per maggiori informazioni o per prenotare una visita.
ð www.sogim.net
ð± Instagram: sogimimmobiliare
'¶ï¸ YouTube: sogimimmobiliare
Main data
| Reference | CE533680 |
| Ad date | 09/04/2026 |
| Contract | Sale |
| Typology | Apartment |
| Surface | 121 m2 |
| Locals | 3 (2 bedrooms, 1 other), 2 bathrooms, kitchen habitable |
| Plan | 1 from 2 totals |
| Occupied | Free |
| Furniture | Absent |
Costs
| Price | 289.000 € |
| Price per m2 | 2.388 €/m2 |
Energy efficiency
| Status | Good |
| Heating | Semi-autonomous |
| Heating Power Type | Diesel |
| Energy rating | Property exempt from energy certification |
Floor plans
Address and map
VIA LEONARDO DA VINCI
102, Cernusco sul Naviglio
Ad without map,
try asking the advertiser for the position
try asking the advertiser for the position
Mortgage calculation
Selling price:
Advance
20,00
Mortgage
80,00
Rate: -+
Payment: 827 per month
The results are an indicative estimate based on the data entered and do not constitute a financial offer.
Advertiser

SOGIM CERNUSCO
Piazza Conciliazione 2, Cernusco sul Naviglio
Show Phone
Show Mobile
Call
CONTACT

