

Three-room apartment via D'Azeglio 1, Bologna (neighborhood Centro Storico)
€ 310.000Appartamento a Bologna - Centro Storico
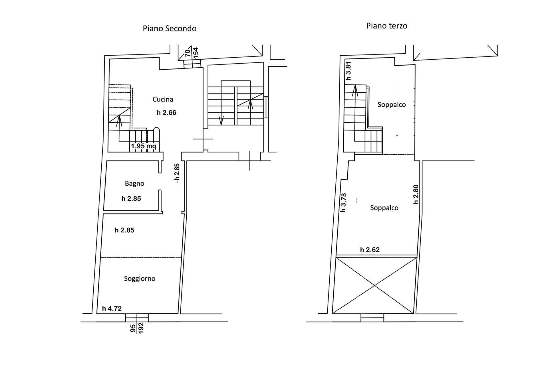
P.zza Maggiore ad.ze nel cuore più autentico ed esclusivo di Bologna, inserito al secondo ed ultimo piano di un palazzo storico in stile vecchia Bologna, appartamento composto da ingresso, elegante soggiorno con doppio volume e vista sul Palazzo Comunale d'Accursio, cucina abitabile e bagno con doccia. Al piano superiore, grande soppalco a tutt'altezza con ampia camera da letto e zona guardaroba. Tetto in legno travi a vista, ambienti voluminosi intimi ed accoglienti, riscaldamento autonomo, climatizzazione, sono alcune delle caratteristiche di questa rara ed interessante unità abitativa. Appartamento in ottime condizioni, soluzione unica ed ambita, in uno dei luoghi più iconici e privilegiati della città dove arte storia e cultura si fondono. Referente dell'immobile Sig. Tonelli 393-1110411
Main data
| Reference | CBO733V |
| Ad date | 08/04/2026 |
| Contract | Sale |
| Typology | Apartment |
| Surface | 60 m2 |
| Locals | 3 (1 bedroom, 2 other), 1 bathroom |
| Plan | 2 |
Costs
| Price | 310.000 € |
| Price per m2 | 5.167 €/m2 |
| Condominium fees | €50,00/month |
Energy efficiency
| Heating | Autonomous |
| Energy rating | Property exempt from energy certification |
Address and map
via D'Azeglio 1, Bologna - neighborhood Centro Storico
Ad without map,
try asking the advertiser for the position
try asking the advertiser for the position
Mortgage calculation
Selling price:
Advance
20,00
Mortgage
80,00
Rate: -+
Payment: 887 per month
The results are an indicative estimate based on the data entered and do not constitute a financial offer.
Advertiser
Call
CONTACT
