Terraced Villa Clivo Delle Case Basse, Roma
€ 485.000
La dimensione ideale tra città e campagna.
LA ZONA
Nel riservato contesto di Clivo delle Case Basse, nel quadrante sud-ovest di Roma, proponiamo una location esclusiva immersa nel verde dellAgro Romano.
Larea si distingue per lelevata qualità ambientale, caratterizzata da ampi spazi aperti, vegetazione spontanea, ville e casali inseriti in un contesto silenzioso e poco urbanizzato. Un ambiente ideale per chi ricerca privacy, tranquillità e un contatto autentico con la natura, senza rinunciare alla vicinanza ai principali servizi.
La posizione risulta strategica: la vicinanza alla Via Cristoforo Colombo consente un accesso rapido sia al quartiere EUR e al centro direzionale di Roma, sia al litorale di Ostia. La zona è inoltre servita dalla linea ferroviaria RomaLido (stazione di Acilia), che collega direttamente con il centro città, e da linee autobus che garantiscono collegamenti con i principali servizi del quartiere.
LA NOSTRA RESIDENZA
La villa gode di un'ottima doppia esposizione a Sud/Est con una libera veduta verso ampi spazi verdi e i Castelli romani.
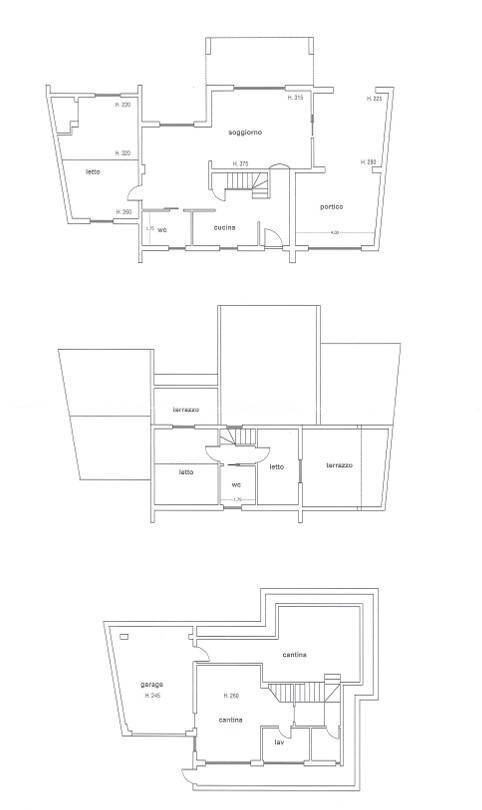
Si sviluppa su tre livelli (piano interrato, piano terra e primo piano) per una superficie coperta di circa 205 mq oltre terrazza e balcone di circa 21 mq. L'esterno della villa, invece, si estende per circa 1.000 mq includendo piccole distese alberate, prati, patio, deposito attrezzi, gazebo, zona barbecue.
Piano S1 (interrato): composto da ampia zona lavanderia accessoriata e con finestre, cantina, per un totale di circa 60 mq; box auto di circa 15 mq;
Piano terra (con doppio ingresso dal giardino dentrata alla villa): si sviluppa in una grande cucina/tinello, salotto con camino, angolo studio, stanza multifunzione, camera da letto e servizio, per una superficie di circa 100 mq;
Piano primo: con una superficie interna di circa 30 mq, si distribuisce in disimpegno, camera da letto con balcone (di circa 6 mq), cameretta con terrazza a livello (di circa 15 mq) e servizio.
La residenza si presenta in buone condizioni di manutenzione, dotata di impianto di condizionamento caldo/freddo e impianto fotovoltaico.
La richiesta economica è di 485.000,00.
THE AREA
Located in the exclusive and private setting of Clivo delle Case Basse, in the south-west quadrant of Rome, we offer a unique property immersed in the greenery of the Roman countryside (Agro Romano).
This area stands out for its high environmental quality, characterized by wide open spaces, natural vegetation, villas and country houses set in a áá¨ááá, low-density residential context. It is the ideal environment for those seeking privacy, tranquility, and an authentic connection with nature, without giving up proximity to essential services.
The location is highly strategic: its proximity to Via Cristoforo Colombo allows quick access to both the EUR district and Romes business center, as well as the seaside area of Ostia. The area is also served by the RomaLido railway line (Acilia station), providing a direct connection to the city center, along with several bus lines linking to the main local services.
THE PROPERTY
The villa benefits from excellent dual exposure (South/East) with open views over green areas and the Castelli Romani.
The property is arranged over three levels (basement, ground floor, and first floor) with a total covered surface of approximately 205 sqm, plus terraces and balconies of about 21 sqm. The outdoor area extends over approximately 1,000 sqm and includes some landscaped green areas, lawn, patio, tool shed, gazebo, and barbecue area.
Basement level (S1): features a spacious, fully equipped laundry room with windows, a cellar, for a total of approximately 60 sqm, and a garage of about 15 sqm.
Ground floor (with double entrance from the front garden): comprises a large kitchen/dining area, living room with fireplace, study corner, multifunctional room, one bedroom, and...
LA ZONA
Nel riservato contesto di Clivo delle Case Basse, nel quadrante sud-ovest di Roma, proponiamo una location esclusiva immersa nel verde dellAgro Romano.
Larea si distingue per lelevata qualità ambientale, caratterizzata da ampi spazi aperti, vegetazione spontanea, ville e casali inseriti in un contesto silenzioso e poco urbanizzato. Un ambiente ideale per chi ricerca privacy, tranquillità e un contatto autentico con la natura, senza rinunciare alla vicinanza ai principali servizi.
La posizione risulta strategica: la vicinanza alla Via Cristoforo Colombo consente un accesso rapido sia al quartiere EUR e al centro direzionale di Roma, sia al litorale di Ostia. La zona è inoltre servita dalla linea ferroviaria RomaLido (stazione di Acilia), che collega direttamente con il centro città, e da linee autobus che garantiscono collegamenti con i principali servizi del quartiere.
LA NOSTRA RESIDENZA
La villa gode di un'ottima doppia esposizione a Sud/Est con una libera veduta verso ampi spazi verdi e i Castelli romani.
Si sviluppa su tre livelli (piano interrato, piano terra e primo piano) per una superficie coperta di circa 205 mq oltre terrazza e balcone di circa 21 mq. L'esterno della villa, invece, si estende per circa 1.000 mq includendo piccole distese alberate, prati, patio, deposito attrezzi, gazebo, zona barbecue.
Piano S1 (interrato): composto da ampia zona lavanderia accessoriata e con finestre, cantina, per un totale di circa 60 mq; box auto di circa 15 mq;
Piano terra (con doppio ingresso dal giardino dentrata alla villa): si sviluppa in una grande cucina/tinello, salotto con camino, angolo studio, stanza multifunzione, camera da letto e servizio, per una superficie di circa 100 mq;
Piano primo: con una superficie interna di circa 30 mq, si distribuisce in disimpegno, camera da letto con balcone (di circa 6 mq), cameretta con terrazza a livello (di circa 15 mq) e servizio.
La residenza si presenta in buone condizioni di manutenzione, dotata di impianto di condizionamento caldo/freddo e impianto fotovoltaico.
La richiesta economica è di 485.000,00.
THE AREA
Located in the exclusive and private setting of Clivo delle Case Basse, in the south-west quadrant of Rome, we offer a unique property immersed in the greenery of the Roman countryside (Agro Romano).
This area stands out for its high environmental quality, characterized by wide open spaces, natural vegetation, villas and country houses set in a áá¨ááá, low-density residential context. It is the ideal environment for those seeking privacy, tranquility, and an authentic connection with nature, without giving up proximity to essential services.
The location is highly strategic: its proximity to Via Cristoforo Colombo allows quick access to both the EUR district and Romes business center, as well as the seaside area of Ostia. The area is also served by the RomaLido railway line (Acilia station), providing a direct connection to the city center, along with several bus lines linking to the main local services.
THE PROPERTY
The villa benefits from excellent dual exposure (South/East) with open views over green areas and the Castelli Romani.
The property is arranged over three levels (basement, ground floor, and first floor) with a total covered surface of approximately 205 sqm, plus terraces and balconies of about 21 sqm. The outdoor area extends over approximately 1,000 sqm and includes some landscaped green areas, lawn, patio, tool shed, gazebo, and barbecue area.
Basement level (S1): features a spacious, fully equipped laundry room with windows, a cellar, for a total of approximately 60 sqm, and a garage of about 15 sqm.
Ground floor (with double entrance from the front garden): comprises a large kitchen/dining area, living room with fireplace, study corner, multifunctional room, one bedroom, and...
Main data
| Reference | CASE BASSE |
| Ad date | 08/04/2026 |
| Contract | Sale |
| Typology | Terraced Villa |
| Surface | 205 m2 |
| Locals | 5 (3 bedrooms, 2 other), 3 bathrooms, kitchen habitable |
| Plan | On several levels, 3 totals |
| Construction type | Signorile |
| Occupied | Free |
| Garage | Single |
| Furniture | Absent |
Costs
| Price | 485.000 € |
| Price per m2 | 2.366 €/m2 |
Energy efficiency
| Status | Good |
| Heating | Autonomous |
| Heating Power Type | Gpl |
| Energy rating | G |
| Energy Performance Index (IPE) | - |
Floor plans
Virtual tour
Address and map
Clivo Delle Case Basse, Roma
Ad without map,
try asking the advertiser for the position
try asking the advertiser for the position
Mortgage calculation
Selling price:
Advance
20,00
Mortgage
80,00
Rate: -+
Payment: 1.387 per month
The results are an indicative estimate based on the data entered and do not constitute a financial offer.
Advertiser
Call
CONTACT


