Rustic Strada Casaltone, Brescello
€ 270.000Rustico in vendita
A pochi minuti da Sorbolo, proponiamo in vendita una casa indipendente ristrutturata dagli ampi spazi interni ed esterni, ideale per chi desidera una residenza che unisca il fascino del passato ai comfort moderni.
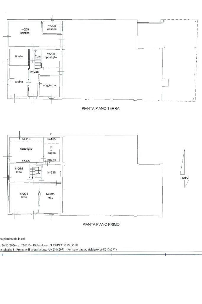
L’immobile dispone di due ingressi ed è distribuito su due livelli:
Piano terra composto da: un accogliente e spazioso soggiorno con camino, cucina abitabile, bagno con box doccia e ampia cantina.
Piano superiore composto da: tre camere da letto di generose dimensioni, un comodo ripostiglio e un secondo bagno.
La proprietà è dotata di doppi vetri, zanzariere e condizionatore.
-Gli interni sono caratterizzati da dettagli architettonici che richiamano lo stile rustico, creando un'atmosfera accogliente e calda.
-Infine, gli spazi esterni offrono la possibilità di godere della tranquillità della campagna circostante, rendendo questa proprietà un rifugio ideale per chi desidera vivere lontano dal caos cittadino.
Situato in una posizione strategica, questo rustico rappresenta un'opportunità unica per chi desidera investire in una dimora di carattere e storia.
PER MAGGIORI INFORMAZIONI CHIAMA IL. 333.8306454
L’immobile dispone di due ingressi ed è distribuito su due livelli:
Piano terra composto da: un accogliente e spazioso soggiorno con camino, cucina abitabile, bagno con box doccia e ampia cantina.
Piano superiore composto da: tre camere da letto di generose dimensioni, un comodo ripostiglio e un secondo bagno.
La proprietà è dotata di doppi vetri, zanzariere e condizionatore.
-Gli interni sono caratterizzati da dettagli architettonici che richiamano lo stile rustico, creando un'atmosfera accogliente e calda.
-Infine, gli spazi esterni offrono la possibilità di godere della tranquillità della campagna circostante, rendendo questa proprietà un rifugio ideale per chi desidera vivere lontano dal caos cittadino.
Situato in una posizione strategica, questo rustico rappresenta un'opportunità unica per chi desidera investire in una dimora di carattere e storia.
PER MAGGIORI INFORMAZIONI CHIAMA IL. 333.8306454
Main data
| Reference | 61201949 |
| Ad date | 04/04/2026 |
| Contract | Sale |
| Typology | Rustic |
| Surface | 242 m2 |
| Locals | 4 (4 other), 2 bathrooms |
| Plan | 2 from 2 totals |
| Number of parking spaces | 1 |
Costs
| Price | 270.000 € |
| Price per m2 | 1.116 €/m2 |
Energy efficiency
| Heating | Autonomous |
| Heating Power Type | Methane |
| Energy rating | G |
| Energy Performance Index (IPE) | - |
Floor plans
Address and map
Strada Casaltone, Brescello
Mortgage calculation
Selling price:
Advance
20,00
Mortgage
80,00
Rate: -+
Payment: 772 per month
The results are an indicative estimate based on the data entered and do not constitute a financial offer.
Advertiser
Call
CONTACT

