Rustic G. Marconi 10, Castel Goffredo
€ 130.000
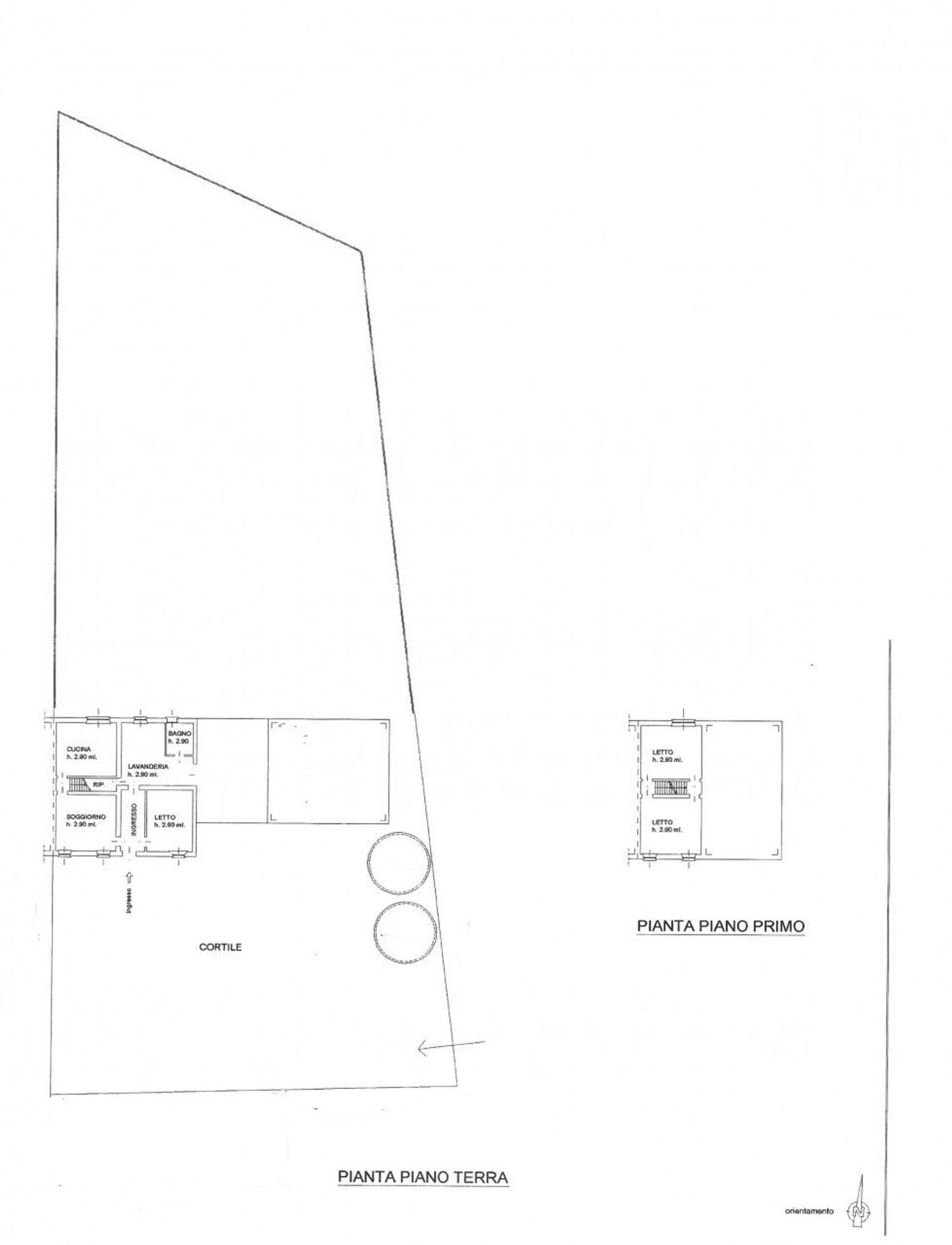
Amanti della natura e degli spazi aperti! A soli 2 km dal centro di Castel Goffredo, proponiamo in vendita una rara opportunità: porzione di cascina di testa completamente da ristrutturare, immersa nel verde e nella tranquillità della campagna mantovana. L'immobile si sviluppa su tre livelli per un totale di circa 300 mq abitativi più ex stalla/deposito adiacente di circa 90 mq ideale come garage o magazzino. La proprietà comprende ben 1.900 mq di area esclusiva pianeggiante che circondano la casa, perfetti per chi desidera realizzare un grande giardino privato, orto oppure uno spazio dedicato agli animali. La struttura principale conserva il fascino autentico delle antiche case rurali lombarde con muri in mattoni pieni e tetto tradizionale; all'interno è possibile personalizzare ogni ambiente secondo le proprie esigenze abitative o ricettive (agriturismo/B&B). Sul terreno sono presenti anche due caratteristici silos agricoli che aggiungono unicità al complesso. Facilmente accessibile tramite strada asfaltata a soli 200 metri dalla provinciale che collega direttamente al cuore del paese dove troviamo tutti i servizi principali: negozi alimentari, scuole, uffici pubblici e fermate autobus. Zona servita ma riservata ai margini del parco naturale dell'Alto Mantovanoideale per famiglie numerose o amanti dei grandi progetti! Soluzione perfetta sia come residenza privata sia come investimento turistico-ricettivo grazie alla posizione strategica tra Lombardia ed Emilia-Romagna. Non perdere questa occasione unica: contatta subito l'agenzia al per fissare una visita senza impegno! "Dati e immagini hanno valore indicativo e saranno confermati in sede di appuntamento. Le foto possono includere render illustrativi; l'indirizzo indica la zona e non l'ubicazione precisa. ".
Main data
| Reference | 2802 |
| Ad date | 04/04/2026 |
| Contract | Sale |
| Typology | Rustic |
| Surface | 400 m2 |
| Locals | 5 (3 bedrooms, 2 other), 1 bathroom, kitchen habitable |
| Plan | On several levels, 2 totals |
| Occupied | Free |
| Garage | Double |
| Number of parking spaces | 3 |
| Furniture | Absent |
Costs
| Price | 130.000 € |
| Price per m2 | 325 €/m2 |
Energy efficiency
| Status | To be restored |
| Heating | Absent |
| Heating Power Type | Other |
| Energy rating | G |
| Energy Performance Index (IPE) | 175 kWh/m2 year |
Floor plans
Virtual tour
Address and map
G. Marconi
10, Castel Goffredo
Ad without map,
try asking the advertiser for the position
try asking the advertiser for the position
Mortgage calculation
Selling price:
Advance
20,00
Mortgage
80,00
Rate: -+
Payment: 372 per month
The results are an indicative estimate based on the data entered and do not constitute a financial offer.
Advertiser
Network immobiliare
Corso Giuseppe Garibaldi 64, Lonato del Garda
Show Phone
Show Mobile
Call
CONTACT

