Two-room apartment Repubblica, Mazzano
€ 78.000
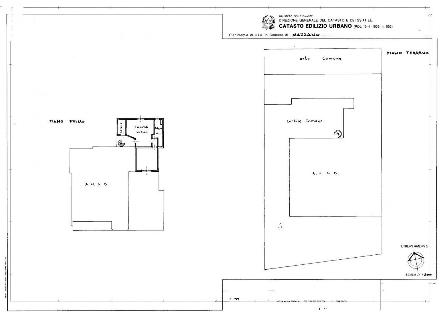
Centralissimo - Bilocale da ristrutturare a Molinetto
Proponiamo in vendita un'interessante appartamento bilocale di circa 60 mq situato nel cuore della frazione Molinetto del Comune di Mazzano. L'immobile è posto al primo piano all'interno di una piccola palazzina plurifamiliare priva di spese condominiali e con ingresso completamente indipendente tramite scala esterna a chiocciola che conduce ad un comodo terrazzino privato.
L'appartamento si compone di soggiorno con angolo cottura, disimpegno, camera matrimoniale, bagno finestrato e lavanderia separata. La soluzione necessita di lavori di ristrutturazione sia per quanto riguarda il tetto che gli impianti interni: ciò rappresenta l'opportunità ideale per personalizzare ogni ambiente secondo i propri gusti ed esigenze.
Nella corte interna comune vi è uno spazio esclusivo dove parcheggiare l'auto. Grazie alla sua posizione strategica nella zona centrale del paese ben servita da negozi, scuole e mezzi pubblici questo immobile risulta perfetto anche come investimento o prima casa per giovani coppie o single desiderosi dell'indipendenza abitativa.
Nessuna spesa condominiale! Non perdere questa occasione unica per creare la tua nuova casa su misura nel centro storico più ricercato della zona!
Per maggiori informazioni o fissare una visita contatta subito l'agenzia referente al.
"Dati e immagini hanno valore indicativo e saranno confermati in sede di appuntamento. Le foto possono includere render illustrativi; l'indirizzo indica la zona e non l'ubicazione precisa. ".
Proponiamo in vendita un'interessante appartamento bilocale di circa 60 mq situato nel cuore della frazione Molinetto del Comune di Mazzano. L'immobile è posto al primo piano all'interno di una piccola palazzina plurifamiliare priva di spese condominiali e con ingresso completamente indipendente tramite scala esterna a chiocciola che conduce ad un comodo terrazzino privato.
L'appartamento si compone di soggiorno con angolo cottura, disimpegno, camera matrimoniale, bagno finestrato e lavanderia separata. La soluzione necessita di lavori di ristrutturazione sia per quanto riguarda il tetto che gli impianti interni: ciò rappresenta l'opportunità ideale per personalizzare ogni ambiente secondo i propri gusti ed esigenze.
Nella corte interna comune vi è uno spazio esclusivo dove parcheggiare l'auto. Grazie alla sua posizione strategica nella zona centrale del paese ben servita da negozi, scuole e mezzi pubblici questo immobile risulta perfetto anche come investimento o prima casa per giovani coppie o single desiderosi dell'indipendenza abitativa.
Nessuna spesa condominiale! Non perdere questa occasione unica per creare la tua nuova casa su misura nel centro storico più ricercato della zona!
Per maggiori informazioni o fissare una visita contatta subito l'agenzia referente al.
"Dati e immagini hanno valore indicativo e saranno confermati in sede di appuntamento. Le foto possono includere render illustrativi; l'indirizzo indica la zona e non l'ubicazione precisa. ".
Main data
| Reference | 2788 |
| Ad date | 04/04/2026 |
| Contract | Sale |
| Typology | Apartment |
| Surface | 60 m2 |
| Locals | 2 (1 bedroom, 1 other), 1 bathroom, kitchen on sight |
| Plan | 1 from 2 totals |
| Construction type | Popular |
| Occupied | Free |
| Garage | Absent |
| Number of parking spaces | 1 |
| Furniture | Absent |
Costs
| Price | 78.000 € |
| Price per m2 | 1.300 €/m2 |
Energy efficiency
| Status | To be restored |
| Heating | Autonomous |
| Energy rating | G |
| Energy Performance Index (IPE) | 175 kWh/m2 year |
Floor plans
Virtual tour
Video
Address and map
Repubblica, Mazzano
Ad without map,
try asking the advertiser for the position
try asking the advertiser for the position
Mortgage calculation
Selling price:
Advance
20,00
Mortgage
80,00
Rate: -+
Payment: 223 per month
The results are an indicative estimate based on the data entered and do not constitute a financial offer.
Advertiser
Network immobiliare
Corso Giuseppe Garibaldi 64, Lonato del Garda
Show Phone
Show Mobile
Call
CONTACT

