Four-room apartment Via Socrate, Nonantola
€ 336.000Appartamento - Trilocale a Nonantola
NONANTOLA
Palazzina di nuova costruzione classe A4
APPARTAMENTO INGRESSO INDIPENDENTE
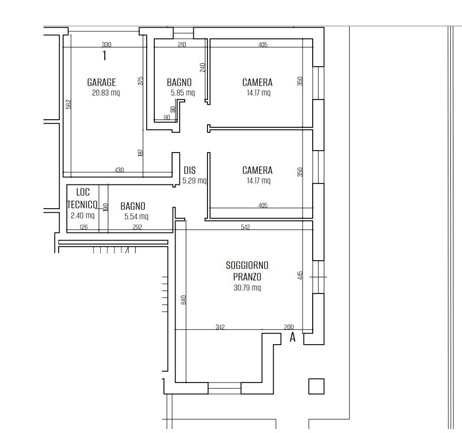
In piccolo contesto appartamento al piano terra con GIARDINO, composto da: ampia zona giorno con cucina a vista con sfogo esterno su giardino, disimpegno, due camere da letto e doppi servizi. Garage al piano terra.
Porta blindata, videocitofono, riscaldamento a PAVIMENTO con centralina e possibilità di regolare la temperatura dei singoli vani, aria condizionata con split, ricircolo dell’aria e deumidificazione predisposta, zanzariere, sanitari sospesi, caldaie autonome, pannelli fotovoltaici 3 Kwat.
Consegna Settembre 2026
Palazzina di nuova costruzione classe A4
APPARTAMENTO INGRESSO INDIPENDENTE
In piccolo contesto appartamento al piano terra con GIARDINO, composto da: ampia zona giorno con cucina a vista con sfogo esterno su giardino, disimpegno, due camere da letto e doppi servizi. Garage al piano terra.
Porta blindata, videocitofono, riscaldamento a PAVIMENTO con centralina e possibilità di regolare la temperatura dei singoli vani, aria condizionata con split, ricircolo dell’aria e deumidificazione predisposta, zanzariere, sanitari sospesi, caldaie autonome, pannelli fotovoltaici 3 Kwat.
Consegna Settembre 2026
Main data
| Reference | 3165 |
| Ad date | 27/03/2026 |
| Contract | Sale |
| Typology | Apartment |
| Surface | 139 m2 |
| Locals | 4 (2 bedrooms, 2 other), 2 bathrooms |
| Plan | 1 totals |
Costs
| Price | 336.000 € |
| Price per m2 | 2.417 €/m2 |
Energy efficiency
| Year built | 2026 |
| Energy rating | A+ |
| Energy Performance Index (IPE) | - |
Floor plans
Address and map
Via Socrate, Nonantola
Mortgage calculation
Selling price:
Advance
20,00
Mortgage
80,00
Rate: -+
Payment: 961 per month
The results are an indicative estimate based on the data entered and do not constitute a financial offer.
Advertiser

Immobiliare 227 snc di Fabbri Stefano e C.
Via Emilia Centro 227, Modena
Show Phone
Show Mobile
Call
CONTACT

