Apartment Via Crociata, Santo Stefano di Magra
€ 35.0005 locali in vendita
Ponzano Superiore – Nel suggestivo borgo storico, caratterizzato da tranquillità e scorci tipici della zona, proponiamo terratetto di ampia metratura disposto su più livelli.
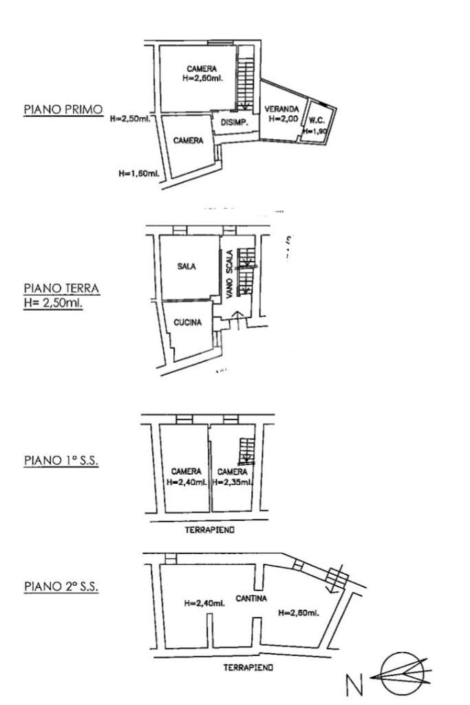
L’immobile si sviluppa con ingresso al piano terra dove troviamo la zona giorno composta da soggiorno e cucina separata, ambienti che, con un intervento di ristrutturazione, possono essere valorizzati e resi moderni e funzionali.
Al piano superiore si sviluppa la zona notte con due camere da letto matrimoniali, entrambe di generose dimensioni, ideali per garantire comfort e vivibilità.
Scendendo al piano sottostante rispetto al piano terra, troviamo ulteriori due vani attualmente allo stato grezzo, con la possibilità di essere trasformati in ulteriori camere, studio o zona relax a seconda delle esigenze.
Ad un livello ancora inferiore è presente una doppia cantina, anch’essa allo stato grezzo, ideale come spazio accessorio oppure da recuperare e valorizzare.
L’intero immobile si presenta completamente da ristrutturare, rappresentando quindi una soluzione ideale per chi desidera personalizzare ogni ambiente secondo il proprio gusto, sfruttando al massimo le potenzialità degli spazi e la tipicità della struttura.
Grazie alla disposizione su più livelli e alla metratura complessiva, l’immobile si presta sia come abitazione principale per famiglie, sia come investimento per realizzare una soluzione ricettiva o da mettere a reddito.
Nell’annuncio sono presenti dei rendering a scopo puramente illustrativo, realizzati per mostrare una possibile ipotesi di ristrutturazione e valorizzazione degli ambienti.
L’immobile si sviluppa con ingresso al piano terra dove troviamo la zona giorno composta da soggiorno e cucina separata, ambienti che, con un intervento di ristrutturazione, possono essere valorizzati e resi moderni e funzionali.
Al piano superiore si sviluppa la zona notte con due camere da letto matrimoniali, entrambe di generose dimensioni, ideali per garantire comfort e vivibilità.
Scendendo al piano sottostante rispetto al piano terra, troviamo ulteriori due vani attualmente allo stato grezzo, con la possibilità di essere trasformati in ulteriori camere, studio o zona relax a seconda delle esigenze.
Ad un livello ancora inferiore è presente una doppia cantina, anch’essa allo stato grezzo, ideale come spazio accessorio oppure da recuperare e valorizzare.
L’intero immobile si presenta completamente da ristrutturare, rappresentando quindi una soluzione ideale per chi desidera personalizzare ogni ambiente secondo il proprio gusto, sfruttando al massimo le potenzialità degli spazi e la tipicità della struttura.
Grazie alla disposizione su più livelli e alla metratura complessiva, l’immobile si presta sia come abitazione principale per famiglie, sia come investimento per realizzare una soluzione ricettiva o da mettere a reddito.
Nell’annuncio sono presenti dei rendering a scopo puramente illustrativo, realizzati per mostrare una possibile ipotesi di ristrutturazione e valorizzazione degli ambienti.
Main data
| Reference | 61195184 |
| Ad date | 01/04/2026 |
| Contract | Sale |
| Typology | Apartment |
| Surface | 94 m2 |
| Locals | 5 (5 other), 1 bathroom |
| Plan | 1 from 3 totals |
Costs
| Price | 35.000 € |
| Price per m2 | 372 €/m2 |
Energy efficiency
| Year built | 1960 |
| Heating | Absent |
| Energy rating | Property exempt from energy certification |
Floor plans
Video
Address and map
Via Crociata, Santo Stefano di Magra
Mortgage calculation
Selling price:
Advance
20,00
Mortgage
80,00
Rate: -+
Payment: 100 per month
The results are an indicative estimate based on the data entered and do not constitute a financial offer.
Advertiser
Call
CONTACT

