Villa Via Coreallo 4A, Spotorno
€ 430.000
Spotorno Via Coreallo | Villetta a schiera di testa con giardino e ambienti su più livelli
Nel contesto residenziale di Via Coreallo, a Spotorno, proponiamo in vendita una villetta a schiera di testa, caratterizzata da posizione riservata, ottima esposizione e spazi ben distribuiti su più livelli.
La proprietà si distingue per la sua collocazione angolare, che garantisce maggiore indipendenza rispetto alle unità centrali, oltre alla presenza di giardini privati su due lati, ideali per vivere appieno gli spazi esterni in un contesto tranquillo e immerso nel verde.
Grazie alla posizione di testa e agli affacci su due lati, la casa gode di luce naturale durante tutto il giorno, con ambienti sempre luminosi e ben esposti, dal mattino fino al tardo pomeriggio.
Limmobile, attualmente di proprietà di un architetto, presenta finiture curate e una realizzazione attenta ai dettagli, mantenendosi oggi in perfetto stato di conservazione e risultando immediatamente pronto alluso.
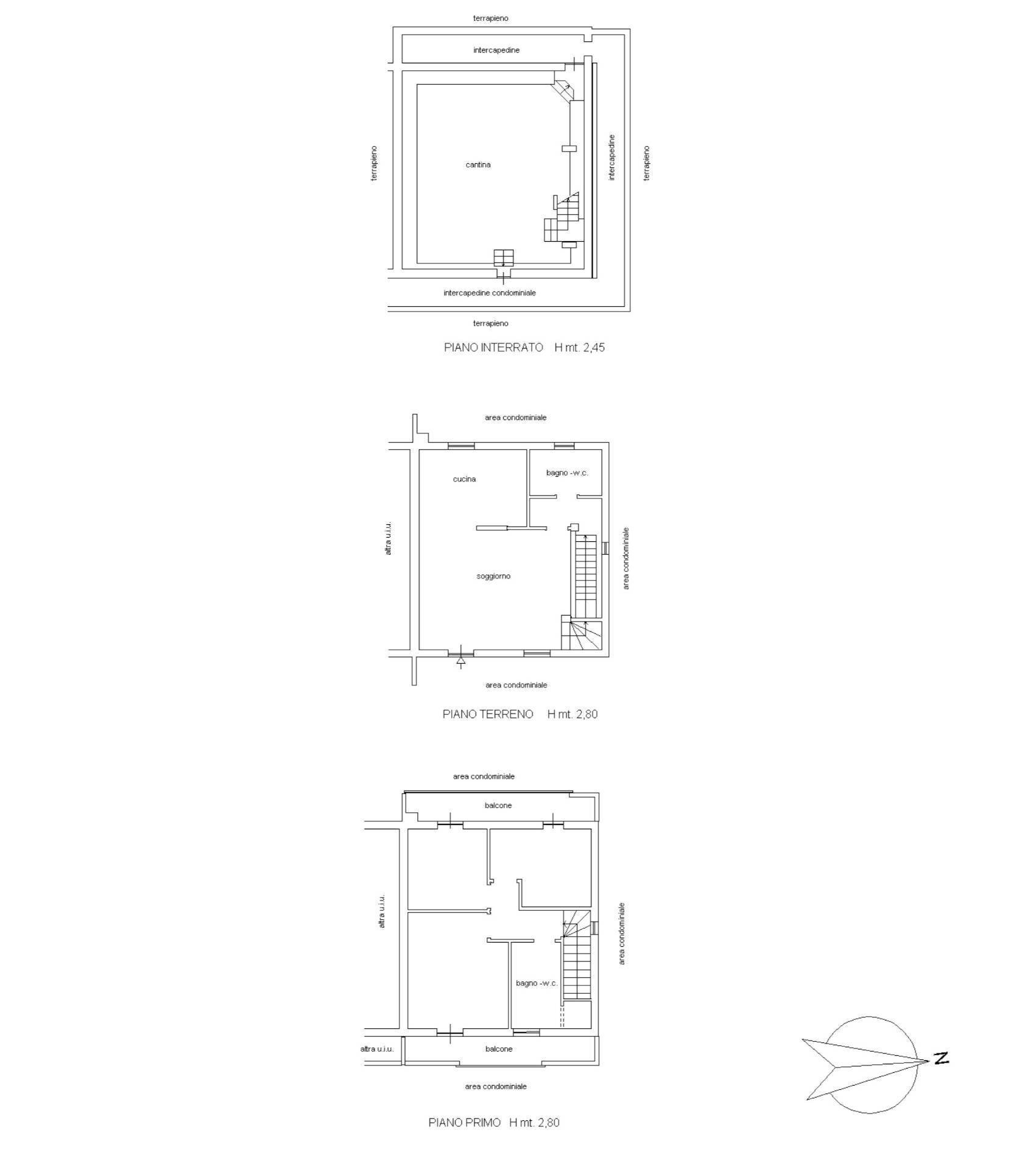
Distribuzione degli spazi
Piano terra
Il livello dingresso ospita una zona giorno luminosa con soggiorno e cucina, oltre a un bagno finestrato. Gli ambienti dialogano con lesterno, creando una continuità naturale con il giardino.
Piano primo
La zona notte comprende due camere da letto, uno studio e un bagno finestrato. Sono presenti balconi su entrambi i lati, che garantiscono luce durante tutto larco della giornata.
Piano interrato
Una taverna completa il piano, spazio versatile ideale come zona relax, ambiente conviviale o area hobby.
Piano mansardato
È presente inoltre un piano mansardato, utilizzabile come spazio accessorio e di disimpegno.
Sempre al piano interrato è presente un box auto singolo.
Caratteristiche
villetta a schiera di testa (angolare)
giardino privato su due lati
finiture di qualità e lavori eseguiti a regola darte
ottimo stato di conservazione
immediatamente abitabile
La proprietà si trova a Spotorno, località estremamente ambita della Riviera di Ponente, a breve distanza dal mare e dai principali servizi, pur mantenendo unelevata tranquillità.
Una soluzione ideale per chi ricerca una casa funzionale, luminosa e immersa nel verde, in una posizione privilegiata sulla costa ligure.
Nel contesto residenziale di Via Coreallo, a Spotorno, proponiamo in vendita una villetta a schiera di testa, caratterizzata da posizione riservata, ottima esposizione e spazi ben distribuiti su più livelli.
La proprietà si distingue per la sua collocazione angolare, che garantisce maggiore indipendenza rispetto alle unità centrali, oltre alla presenza di giardini privati su due lati, ideali per vivere appieno gli spazi esterni in un contesto tranquillo e immerso nel verde.
Grazie alla posizione di testa e agli affacci su due lati, la casa gode di luce naturale durante tutto il giorno, con ambienti sempre luminosi e ben esposti, dal mattino fino al tardo pomeriggio.
Limmobile, attualmente di proprietà di un architetto, presenta finiture curate e una realizzazione attenta ai dettagli, mantenendosi oggi in perfetto stato di conservazione e risultando immediatamente pronto alluso.
Distribuzione degli spazi
Piano terra
Il livello dingresso ospita una zona giorno luminosa con soggiorno e cucina, oltre a un bagno finestrato. Gli ambienti dialogano con lesterno, creando una continuità naturale con il giardino.
Piano primo
La zona notte comprende due camere da letto, uno studio e un bagno finestrato. Sono presenti balconi su entrambi i lati, che garantiscono luce durante tutto larco della giornata.
Piano interrato
Una taverna completa il piano, spazio versatile ideale come zona relax, ambiente conviviale o area hobby.
Piano mansardato
È presente inoltre un piano mansardato, utilizzabile come spazio accessorio e di disimpegno.
Sempre al piano interrato è presente un box auto singolo.
Caratteristiche
villetta a schiera di testa (angolare)
giardino privato su due lati
finiture di qualità e lavori eseguiti a regola darte
ottimo stato di conservazione
immediatamente abitabile
La proprietà si trova a Spotorno, località estremamente ambita della Riviera di Ponente, a breve distanza dal mare e dai principali servizi, pur mantenendo unelevata tranquillità.
Una soluzione ideale per chi ricerca una casa funzionale, luminosa e immersa nel verde, in una posizione privilegiata sulla costa ligure.
Main data
| Reference | CBI098-3123-530 |
| Ad date | 01/04/2026 |
| Contract | Sale |
| Typology | Villa |
| Surface | 140 m2 |
| Locals | 5 (3 bedrooms, 2 other), 2 bathrooms, kitchen habitable |
| Plan | Earth, 3 totals |
| Construction type | Average |
| Occupied | Free |
| Garage | Single |
| Furniture | Complete |
Costs
| Price | 430.000 € |
| Price per m2 | 3.071 €/m2 |
| Heating Expenses | €130,00/year |
Energy efficiency
| Status | Excellent |
| Heating | Autonomous |
| Energy rating | G |
| Energy Performance Index (IPE) | 170 kWh/m2 year |
Floor plans
Video
Address and map
Via Coreallo
4A, Spotorno
Ad without map,
try asking the advertiser for the position
try asking the advertiser for the position
Mortgage calculation
Selling price:
Advance
20,00
Mortgage
80,00
Rate: -+
Payment: 1.230 per month
The results are an indicative estimate based on the data entered and do not constitute a financial offer.
Advertiser

Coldwell Banker International & More
Corso Vittorio Emanuele II N°52/A, Torino
Show Phone
Show Mobile
Call
CONTACT

