Apartment viale Zampieri Vespignani, Imola
€ 700.000NUOVA QUADRIFAMILIARE - RESIDENZA PIANO PRIMO CON TERRAZZO
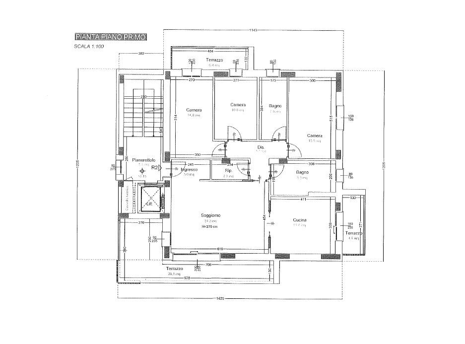
IMOLA VIA ZAMPIERI VESPIGNANI: All’interno di nuova ed elegante palazzina quadrifamiliare proponiamo raffinata residenza situata al piano primo e servita da ascensore in contesto residenziale nel quartiere Cappuccini. L'alloggio è composto da ingresso su ampia zona giorno di oltre 50mq con ampio living ed accesso diretto sul terrazzo ad angolo, cucina abitabile con accesso al balcone e bagno finestrato. La zona notte è composta da tre ampie camere da letto, ulteriore terrazzo e secondo bagno finestrato. Completano la proprietà garage e cantina al piano interrato. Alta efficienza energetica e comfort abitativo: l’immobile è dotato di isolamento termico a cappotto, impianto a pompa di calore aria/acqua, impianto fotovoltaico e sistema di riscaldamento e raffrescamento a pavimento oltre alla possibilità di personalizzazioni. Rif. 71 A.
Main data
| Reference | 71 A |
| Ad date | 31/03/2026 |
| Contract | Sale |
| Typology | Apartment |
| Surface | 232 m2 |
| Locals | 5 (3 bedrooms, 2 other), 2 bathrooms, kitchen habitable |
| Plan | 1 (Mezzanine) from 3 totals |
| Construction type | Signorile |
| Occupied | Free |
| Number of terraces | 1 |
| Number of balconies | 2 |
| Box number | 1 |
| Garage | Double |
| Number of parking spaces | 2 |
| Furniture | Partial |
| Lati liberi | Quattro |
| Impianto TV | Singolo |
Costs
| Price | 700.000 € |
| Price per m2 | 3.017 €/m2 |
Energy efficiency
| Year built | 2026 |
| Status | New |
| Air Conditioning | Autonomous |
| Heating | Autonomous |
| Heating System Type | on the floor |
| Heating Power Type | Photovoltaic |
| External frames | Double glass / PVC |
| Energy rating | A4 |
Floor plans
Address and map
viale Zampieri Vespignani, Imola
Mortgage calculation
Selling price:
Advance
20,00
Mortgage
80,00
Rate: -+
Payment: 2.002 per month
The results are an indicative estimate based on the data entered and do not constitute a financial offer.
Advertiser

Agenzia Immobiliare Calamosca
Via Paolo Galeati 27, Imola
Show Phone
Show Mobile
Call
CONTACT

