Four-room apartment via dei Girasoli 7, Montelibretti
€ 125.000
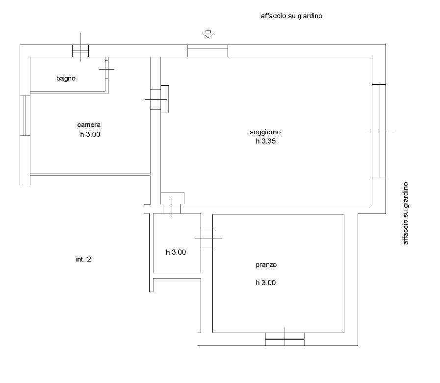
Montelibretti - Via dei Girasoli, appartamento da ristrutturare all'interno di un casale di campagna con 255 mq di giardino e corte esterna.
A pochi minuti dai principali collegamenti ferroviari, allinterno di un casale di campagna composto da sole due unità immobiliari, è disponibile un appartamento di 114 mq su unico livello, completamente da ristrutturare. Limmobile si trova al piano terra e offre la possibilità di realizzare un ampio quadrilocale con luminosa zona living, tre camere da letto e due bagni, oltre a un giardino privato di circa 255 mq che valorizza ulteriormente la proprietà.
La corte esterna comune consente di parcheggiare comodamente fino a tre auto, rendendo labitazione pratica anche per nuclei familiari con più mezzi. È già presente la fossa biologica per lo smaltimento delle acque scure, un dettaglio importante per chi cerca una soluzione indipendente in contesto rurale.
La posizione è particolarmente strategica: la stazione di Pianabella si raggiunge in due minuti di macchina, mentre Monterotondo Scalo dista circa sette minuti. A pochi passi si trova anche la fermata dellautobus, e la zona è servita dal pulmino scolastico, rendendo gli spostamenti quotidiani semplici e ben organizzati.
Questa proprietà rappresenta unopportunità ideale per chi desidera personalizzare la propria casa in un ambiente tranquillo, immerso nel verde ma vicino ai servizi e alle principali vie di collegamento. APE "G".
A pochi minuti dai principali collegamenti ferroviari, allinterno di un casale di campagna composto da sole due unità immobiliari, è disponibile un appartamento di 114 mq su unico livello, completamente da ristrutturare. Limmobile si trova al piano terra e offre la possibilità di realizzare un ampio quadrilocale con luminosa zona living, tre camere da letto e due bagni, oltre a un giardino privato di circa 255 mq che valorizza ulteriormente la proprietà.
La corte esterna comune consente di parcheggiare comodamente fino a tre auto, rendendo labitazione pratica anche per nuclei familiari con più mezzi. È già presente la fossa biologica per lo smaltimento delle acque scure, un dettaglio importante per chi cerca una soluzione indipendente in contesto rurale.
La posizione è particolarmente strategica: la stazione di Pianabella si raggiunge in due minuti di macchina, mentre Monterotondo Scalo dista circa sette minuti. A pochi passi si trova anche la fermata dellautobus, e la zona è servita dal pulmino scolastico, rendendo gli spostamenti quotidiani semplici e ben organizzati.
Questa proprietà rappresenta unopportunità ideale per chi desidera personalizzare la propria casa in un ambiente tranquillo, immerso nel verde ma vicino ai servizi e alle principali vie di collegamento. APE "G".
Main data
| Reference | CBI049-227-905 |
| Ad date | 31/03/2026 |
| Contract | Sale |
| Typology | Apartment |
| Surface | 114 m2 |
| Locals | 4 (3 bedrooms, 1 other), 1 bathroom, kitchen habitable |
| Plan | Earth, 2 totals |
| Occupied | Free |
| Garage | Absent |
| Number of parking spaces | 3 |
| Furniture | Absent |
Costs
| Price | 125.000 € |
| Price per m2 | 1.096 €/m2 |
Energy efficiency
| Status | To be restored |
| Heating | Absent |
| Heating Power Type | Gpl |
| Energy rating | G |
| Energy Performance Index (IPE) | 225 kWh/m2 year |
Floor plans
Video
Address and map
via dei Girasoli
7, Montelibretti
Ad without map,
try asking the advertiser for the position
try asking the advertiser for the position
Mortgage calculation
Selling price:
Advance
20,00
Mortgage
80,00
Rate: -+
Payment: 357 per month
The results are an indicative estimate based on the data entered and do not constitute a financial offer.
Advertiser

Coldwell Banker Eretum RE Group
Via Corsica 28, Monterotondo
Show Phone
Show Mobile
Call
CONTACT

