Two-room apartment Via Pavia 9, Pietra Ligure
€ 135.000Appartamento - Bilocale a Zona Montegrosso, Pietra Ligure
CERCHI UN BILOCALE AMPIO IN ZONA STRATEGICA, A POCHI PASSI DAL MARE E CON OTTIME POTENZIALITÀ?
SITUAZIONE ATTUALE:
L’immobile è attualmente locato con contratto in essere fino a marzo 2027,
rappresentando un’interessante opportunità per chi cerca una rendita immediata con prospettiva futura di utilizzo personale.
Immagina di avere una casa al mare in una posizione comoda e servita, dove puoi muoverti a piedi e personalizzare ogni spazio secondo il tuo gusto,
creando un ambiente su misura per te o un investimento intelligente nel tempo.
L’Agenzia Immobiliare InvestiQui di Pietra Ligure è lieta di proporre in vendita un ampio bilocale, situato in posizione strategica, ideale sia come casa vacanze che come opportunità di investimento.
UBICAZIONE:
L’immobile si trova a Pietra Ligure, in zona Via Pavia, poco sopra il rinomato Viale della Repubblica, in posizione comoda e ben collegata.
Il mare dista circa 500 metri ed è facilmente raggiungibile a piedi in pochi minuti.
Nelle immediate vicinanze si trovano i principali servizi, tra cui bar, ristoranti, negozi e tutto ciò che serve per vivere la casa senza necessità dell’auto.
La presenza di parcheggi nella zona rende la soluzione ancora più pratica e funzionale.
DISPOSIZIONE:
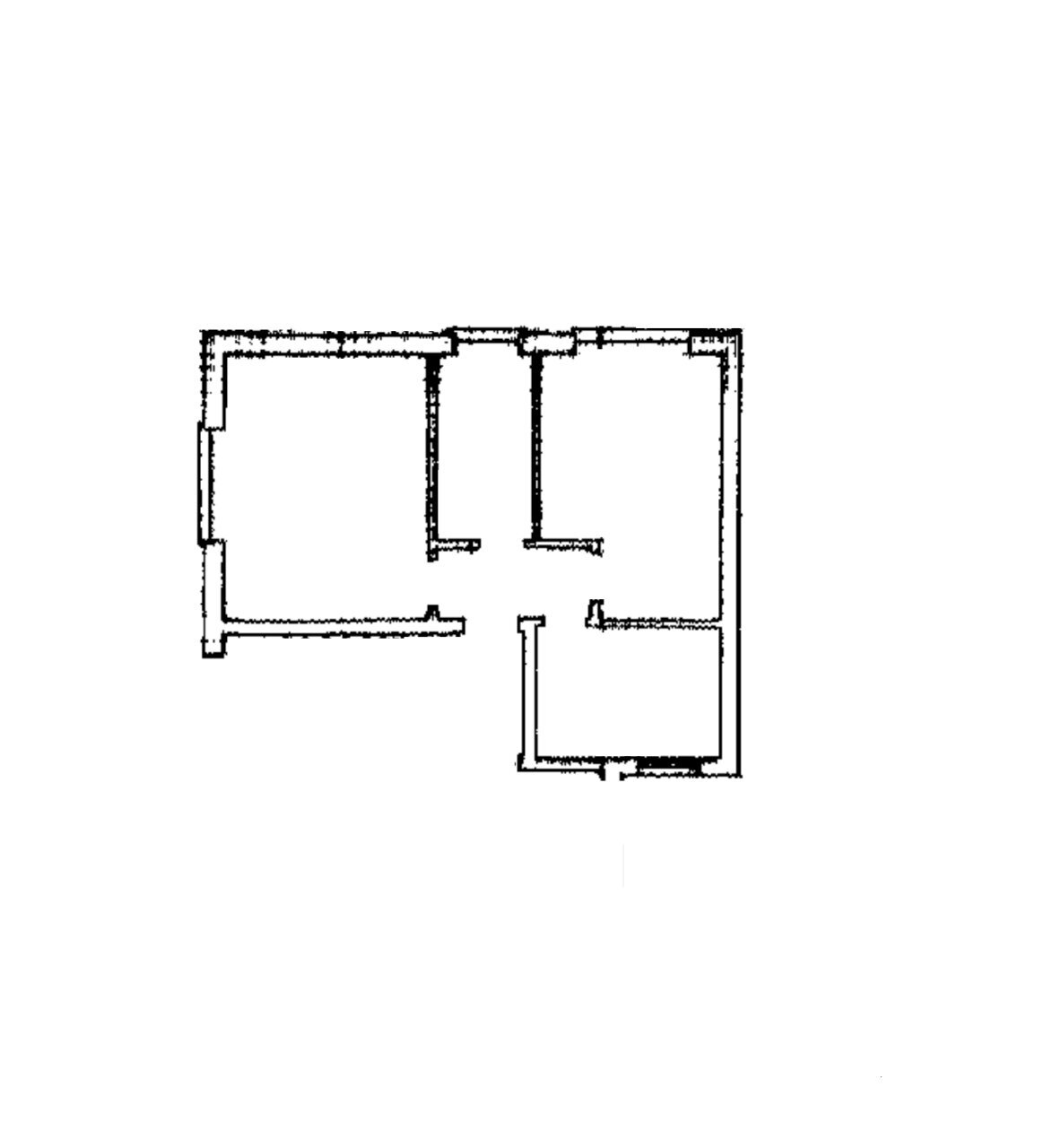
Posto al piano rialzato, l’appartamento si apre su un ingresso con disimpegno che distribuisce in modo ordinato gli ambienti.
Il soggiorno è accogliente e ben sfruttabile, mentre la cucina abitabile separata rappresenta un valore aggiunto per chi desidera spazi distinti e funzionali.
La camera da letto matrimoniale è ampia e luminosa, ideale per garantire comfort e tranquillità.
Il bagno è finestrato, elemento sempre più ricercato per praticità e aerazione.
L’immobile non dispone di balconi, ma la distribuzione interna consente un’ottima vivibilità degli spazi.
CARATTERISTICHE:
Esposizione su tre lati: sud, est e ovest, che garantisce buona luminosità durante tutta la giornata
Stato originale, da ristrutturare o abitabile da subito
Riscaldamento tramite stufa a gas
Spazi ampi e ben distribuiti
Zona comoda e servita
Parcheggi nelle vicinanze
Cantina di proprietà
PERCHÉ ACQUISTARE QUESTO APPARTAMENTO:
La vera forza di questa soluzione è la combinazione tra posizione strategica, ampia metratura e possibilità di personalizzazione.
Perfetto per chi desidera creare una casa su misura vicino al mare o per chi cerca un investimento solido in una delle località più richieste della Riviera Ligure.
4 BUONI MOTIVI PER ACQUISTARLO:
1. ZONA COMODA E SERVITA
2. AMPI SPAZI INTERNI
3. OTTIMA OPPORTUNITÀ DI INVESTIMENTO
4. POSSIBILITÀ DI PERSONALIZZAZIONE
INVESTIQUI IMMOBILIARE, PER LA TUA CASA AL MARE!
Per fissare un appuntamento e/o per maggiori informazioni può contattarci al numero 019. 61.33.51 o tramite mail [email protected]
Può trovarci a Pietra ligure in Corso Italia, 5 dal lunedì al sabato ore 9:15 12:30 /15:30 19:00 domenica su appuntamento.
Può trovare questa e tante altre soluzioni su www.gruppoinvestiqui.it nella sezione "immobili Liguria".
Devi vendere il tuo immobile? fai la scelta giusta, affidati ad InvestiQui immobiliare in Liguria e Piemonte potrai usufruire della nostra attività di intermediazione e affrontare con serenità e concretezza la vendita del tuo immobile!
Ricerchiamo immobili per i nostri clienti - Offriamo valutazioni gratuite del vostro immobile.
SEGUICI SUI SOCIAL PER TUTTE LE NOVITA' INVESTIQUI PIETRA LIGURE INSTAGRAM, TIK TOK E FACEBOOK.
SITUAZIONE ATTUALE:
L’immobile è attualmente locato con contratto in essere fino a marzo 2027,
rappresentando un’interessante opportunità per chi cerca una rendita immediata con prospettiva futura di utilizzo personale.
Immagina di avere una casa al mare in una posizione comoda e servita, dove puoi muoverti a piedi e personalizzare ogni spazio secondo il tuo gusto,
creando un ambiente su misura per te o un investimento intelligente nel tempo.
L’Agenzia Immobiliare InvestiQui di Pietra Ligure è lieta di proporre in vendita un ampio bilocale, situato in posizione strategica, ideale sia come casa vacanze che come opportunità di investimento.
UBICAZIONE:
L’immobile si trova a Pietra Ligure, in zona Via Pavia, poco sopra il rinomato Viale della Repubblica, in posizione comoda e ben collegata.
Il mare dista circa 500 metri ed è facilmente raggiungibile a piedi in pochi minuti.
Nelle immediate vicinanze si trovano i principali servizi, tra cui bar, ristoranti, negozi e tutto ciò che serve per vivere la casa senza necessità dell’auto.
La presenza di parcheggi nella zona rende la soluzione ancora più pratica e funzionale.
DISPOSIZIONE:
Posto al piano rialzato, l’appartamento si apre su un ingresso con disimpegno che distribuisce in modo ordinato gli ambienti.
Il soggiorno è accogliente e ben sfruttabile, mentre la cucina abitabile separata rappresenta un valore aggiunto per chi desidera spazi distinti e funzionali.
La camera da letto matrimoniale è ampia e luminosa, ideale per garantire comfort e tranquillità.
Il bagno è finestrato, elemento sempre più ricercato per praticità e aerazione.
L’immobile non dispone di balconi, ma la distribuzione interna consente un’ottima vivibilità degli spazi.
CARATTERISTICHE:
Esposizione su tre lati: sud, est e ovest, che garantisce buona luminosità durante tutta la giornata
Stato originale, da ristrutturare o abitabile da subito
Riscaldamento tramite stufa a gas
Spazi ampi e ben distribuiti
Zona comoda e servita
Parcheggi nelle vicinanze
Cantina di proprietà
PERCHÉ ACQUISTARE QUESTO APPARTAMENTO:
La vera forza di questa soluzione è la combinazione tra posizione strategica, ampia metratura e possibilità di personalizzazione.
Perfetto per chi desidera creare una casa su misura vicino al mare o per chi cerca un investimento solido in una delle località più richieste della Riviera Ligure.
4 BUONI MOTIVI PER ACQUISTARLO:
1. ZONA COMODA E SERVITA
2. AMPI SPAZI INTERNI
3. OTTIMA OPPORTUNITÀ DI INVESTIMENTO
4. POSSIBILITÀ DI PERSONALIZZAZIONE
INVESTIQUI IMMOBILIARE, PER LA TUA CASA AL MARE!
Per fissare un appuntamento e/o per maggiori informazioni può contattarci al numero 019. 61.33.51 o tramite mail [email protected]
Può trovarci a Pietra ligure in Corso Italia, 5 dal lunedì al sabato ore 9:15 12:30 /15:30 19:00 domenica su appuntamento.
Può trovare questa e tante altre soluzioni su www.gruppoinvestiqui.it nella sezione "immobili Liguria".
Devi vendere il tuo immobile? fai la scelta giusta, affidati ad InvestiQui immobiliare in Liguria e Piemonte potrai usufruire della nostra attività di intermediazione e affrontare con serenità e concretezza la vendita del tuo immobile!
Ricerchiamo immobili per i nostri clienti - Offriamo valutazioni gratuite del vostro immobile.
SEGUICI SUI SOCIAL PER TUTTE LE NOVITA' INVESTIQUI PIETRA LIGURE INSTAGRAM, TIK TOK E FACEBOOK.
Main data
| Reference | PAVALE |
| Ad date | 20/03/2026 |
| Contract | Sale |
| Typology | Apartment |
| Surface | 45 m2 |
| Locals | 2 (1 bedroom, 1 other), 1 bathroom |
| Plan | 1 totals |
Costs
| Price | 135.000 € |
| Price per m2 | 3.000 €/m2 |
| Condominium fees | €38,00/month |
Energy efficiency
| Year built | 1970 |
| Energy rating | G |
Floor plans
Address and map
Via Pavia 9, Pietra Ligure
Mortgage calculation
Selling price:
Advance
20,00
Mortgage
80,00
Rate: -+
Payment: 386 per month
The results are an indicative estimate based on the data entered and do not constitute a financial offer.
Advertiser

InvestiQui Pietra Ligure
Corso Italia 5, Pietra Ligure
Show Phone
Show Mobile
Call
CONTACT

