Independent house via della salita 28, Pontedera
€ 170.000
NUOVA COSTRUZIONE A TREGGIAIA
Eleganza, Efficienza e Comfort
Due Appartamenti Indipendenti in Classe A Personalizzabili
Se cerchi una casa moderna, immersa nella tranquillità di Treggiaia e costruita con le ultime tecnologie per il risparmio energetico, questa è l'opportunità che aspettavi. Proponiamo in vendita due appartamenti gemelli (uno al piano terra e uno al primo piano), caratterizzati da finiture di pregio e massima indipendenza.
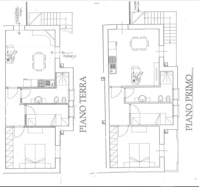
Caratteristiche Principali (60 mq ad unità)
Ogni appartamento è studiato per ottimizzare gli spazi e offrire il massimo benessere abitativo:
Piano terra:
Zona Living: Ingresso indipendente in un luminoso soggiorno con angolo cottura con accesso al giardino.
Zona Notte: Disimpegno, camera matrimoniale e camerina.
Bagno: Moderno e dotato di finestra.
Spazio Esterno: Grande giardino privato di circa 65 mq per godersi momenti di relax all'aperto.
Piano primo:
Zona Living: Ingresso indipendente dal giardino privato con scala esterna, in un luminoso soggiorno con angolo cottura.
Zona Notte: Disimpegno, camera matrimoniale con accesso ad un piccolo terrazzo di circa 3,44mq e camerina.
Bagno: Moderno e dotato di finestra.
Spazio Esterno: Grande giardino privato di circa 65 mq per godersi momenti di relax all'aperto.
Pertinenze e Servizi
Posto Auto: Uno spazio riservato proprio davanti all'ingresso.
Garage: Box auto privato nel seminterrato accessibile anche direttamente da un percorso pedonale a comune, tramite scala esterna.
Lavanderia: Locale tecnico/lavanderia con finestra situato nel seminterrato.
Perché scegliere queste abitazioni?
Classe Energetica A: Riscaldamento autonomo, pannelli fotovoltaici a 1,5 kw, coibentazione e isolamento interno e muratura termica.
Finiture Personalizzabili: Se acquisti in fase di completamento, potrai scegliere pavimenti, rivestimenti e colori per cucirti la casa addosso secondo il tuo gusto.
Location Esclusiva: Treggiaia offre quella rara combinazione di silenzio, vista panoramica e vicinanza ai principali servizi.
Prezzo su richiesta Consegna prevista: Luglio 2027 circa.
Non lasciarti sfuggire la possibilità di vivere nel nuovo! Contattaci per una visita in cantiere o per consultare il capitolato delle opere.
L'acquisto dei 2 immobili è soggetto a iva.
Info in agenzia. COD. annuncio: DV2026010
Eleganza, Efficienza e Comfort
Due Appartamenti Indipendenti in Classe A Personalizzabili
Se cerchi una casa moderna, immersa nella tranquillità di Treggiaia e costruita con le ultime tecnologie per il risparmio energetico, questa è l'opportunità che aspettavi. Proponiamo in vendita due appartamenti gemelli (uno al piano terra e uno al primo piano), caratterizzati da finiture di pregio e massima indipendenza.
Caratteristiche Principali (60 mq ad unità)
Ogni appartamento è studiato per ottimizzare gli spazi e offrire il massimo benessere abitativo:
Piano terra:
Zona Living: Ingresso indipendente in un luminoso soggiorno con angolo cottura con accesso al giardino.
Zona Notte: Disimpegno, camera matrimoniale e camerina.
Bagno: Moderno e dotato di finestra.
Spazio Esterno: Grande giardino privato di circa 65 mq per godersi momenti di relax all'aperto.
Piano primo:
Zona Living: Ingresso indipendente dal giardino privato con scala esterna, in un luminoso soggiorno con angolo cottura.
Zona Notte: Disimpegno, camera matrimoniale con accesso ad un piccolo terrazzo di circa 3,44mq e camerina.
Bagno: Moderno e dotato di finestra.
Spazio Esterno: Grande giardino privato di circa 65 mq per godersi momenti di relax all'aperto.
Pertinenze e Servizi
Posto Auto: Uno spazio riservato proprio davanti all'ingresso.
Garage: Box auto privato nel seminterrato accessibile anche direttamente da un percorso pedonale a comune, tramite scala esterna.
Lavanderia: Locale tecnico/lavanderia con finestra situato nel seminterrato.
Perché scegliere queste abitazioni?
Classe Energetica A: Riscaldamento autonomo, pannelli fotovoltaici a 1,5 kw, coibentazione e isolamento interno e muratura termica.
Finiture Personalizzabili: Se acquisti in fase di completamento, potrai scegliere pavimenti, rivestimenti e colori per cucirti la casa addosso secondo il tuo gusto.
Location Esclusiva: Treggiaia offre quella rara combinazione di silenzio, vista panoramica e vicinanza ai principali servizi.
Prezzo su richiesta Consegna prevista: Luglio 2027 circa.
Non lasciarti sfuggire la possibilità di vivere nel nuovo! Contattaci per una visita in cantiere o per consultare il capitolato delle opere.
L'acquisto dei 2 immobili è soggetto a iva.
Info in agenzia. COD. annuncio: DV2026010
Main data
| Reference | DV2026010 |
| Ad date | 28/03/2026 |
| Contract | Sale |
| Typology | Independent house |
| Surface | 60 m2 |
| Locals | 3 (2 bedrooms, 1 other), 1 bathroom, kitchen on sight |
| Plan | Earth, 2 totals |
| Garage | Single |
| Number of parking spaces | 1 |
Costs
| Price | 170.000 € |
| Price per m2 | 2.833 €/m2 |
Energy efficiency
| Heating | Autonomous |
| Heating Power Type | Photovoltaic |
| Energy rating | A1 |
Floor plans
Address and map
via della salita
28, Pontedera
Ad without map,
try asking the advertiser for the position
try asking the advertiser for the position
Mortgage calculation
Selling price:
Advance
20,00
Mortgage
80,00
Rate: -+
Payment: 486 per month
The results are an indicative estimate based on the data entered and do not constitute a financial offer.
Advertiser

Dimora Velox 1967 servizi
Via Toscoromagnola 137, Pontedera
Show Phone
Show Mobile
Call
CONTACT