Three-room apartment via Saluzzo, 3, Mondovì
€ 800 per monthNUOVO APPARTAMENTO IN VIA SALUZZO
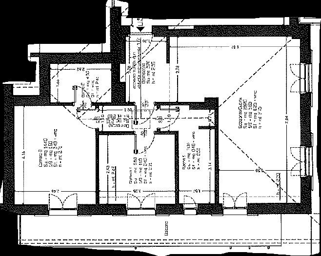
NUOVO APPARTAMENTO IN VIA SALUZZO Proponiamo in affitto, in Via Saluzzo, un interessante alloggio al piano terra disposto su due livelli. L’ingresso si apre su un comodo disimpegno che conduce all’ampia zona giorno con soggiorno/cucina e un primo bagno. Tramite una scala interna si accede alla zona notte, composta da due camere da letto, di cui una con balcone, e un secondo bagno. Completano la proprietà un pratico box auto e una cantina. L’immobile è situato in una palazzina recentemente ristrutturata, composta da sole 5 unità abitative. Il riscaldamento è autonomo con pompa di calore e pannelli fotovoltaici. L’alloggio viene locato non arredato; è tuttavia possibile richiedere, con un supplemento, l’installazione della cucina completa di elettrodomestici. Tutte le informazioni contenute negli annunci immobiliari (caratteristiche tecniche, disposizione degli ambienti, accessori, dotazioni, ecc…) potrebbero non corrispondere in parte allo stato di fatto attuale dell'immobile. Inoltre, i vari portali immobiliari utilizzano diversi criteri per la pubblicazione dello stesso annuncio che può generare differenze sui dati inseriti dalla Dielle Studiocasa S.A.S. e la stessa declina ogni responsabilità per eventuali involontarie incoerenze. Tutte le informazioni contenute negli annunci immobiliari (caratteristiche tecniche, disposizione degli ambienti, accessori, dotazioni, ecc…) potrebbero non corrispondere in parte allo stato di fatto attuale dell'immobile. Inoltre, i vari portali immobiliari utilizzano diversi criteri per la pubblicazione dello stesso annuncio che può generare differenze sui dati inseriti dalla Dielle Studiocasa S.A.S. e la stessa declina ogni responsabilità per eventuali involontarie incoerenze.
Main data
| Reference | 1366 |
| Ad date | 25/03/2026 |
| Contract | Rent |
| Typology | Apartment |
| Surface | 107 m2 |
| Locals | 3 (2 bedrooms, 1 other), 2 bathrooms, kitchen habitable |
| Plan | 3 totals |
| Construction type | Average |
| Number of balconies | 1 |
| Garage | Single |
| Number of parking spaces | 1 |
| Furniture | Absent |
Costs
| Price | 800 € per month |
| Condominium fees | €12,00/month |
Energy efficiency
| Status | Excellent |
| Heating | Autonomous |
| Energy rating | A4 |
Floor plans
Address and map
via Saluzzo, 3, Mondovì
Advertiser

Dielle Studiocasa
Corso Italia 2, Mondovì
Show Phone
Call
CONTACT

