Four-room apartment at auction Via Renato Quartini 22, Genova (neighborhood Rivarolo)
€ 23.904Appartamento - Quadrilocale a Genova
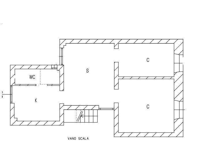
Piena proprietà dell’appartamento ubicato a Genova (GE) - Via Renato Quartini, edificio 22, interno 4, piano 1 Appartamento al piano primo dello stabile. L'alloggio è composto da un ampio ambiente di ingresso soggiorno, due camere, una cucina abitabile ed un servizio igienico. Superficie lorda 61 mq consistenza 4 vani.
- Il Prezzo visualizzato è la Base d'Asta in quanto l’immobile è oggetto di esecuzione immobiliare venduto tramite Asta Giudiziaria.
- L'immobile aggiudicato, viene venduto libero e sgombro da persone cose ed ipoteche nello stato di fatto e di diritto in cui si trova.
- Non rappresentiamo il Tribunale, ma lavoriamo nell'esclusivo interesse del potenziale acquirente per garantire un acquisto sicuro.
- I consulenti di ASTE ITALIA ti assisteranno in tutte le attività dell'iter giudiziario dalla visita dell'immobile fino alla consegna chiavi.
- Contatta il nostro Servizio Clienti , i nostri operatori sono a disposizione per chiarire i molteplici dubbi per partecipare alle ASTE.
- Il Prezzo visualizzato è la Base d'Asta in quanto l’immobile è oggetto di esecuzione immobiliare venduto tramite Asta Giudiziaria.
- L'immobile aggiudicato, viene venduto libero e sgombro da persone cose ed ipoteche nello stato di fatto e di diritto in cui si trova.
- Non rappresentiamo il Tribunale, ma lavoriamo nell'esclusivo interesse del potenziale acquirente per garantire un acquisto sicuro.
- I consulenti di ASTE ITALIA ti assisteranno in tutte le attività dell'iter giudiziario dalla visita dell'immobile fino alla consegna chiavi.
- Contatta il nostro Servizio Clienti , i nostri operatori sono a disposizione per chiarire i molteplici dubbi per partecipare alle ASTE.
Main data
| Reference | GE280/25LU-2805-26-1500 |
| Ad date | 23/03/2026 |
| Contract | Sale |
| Typology | Apartment |
| Surface | 61 m2 |
| Locals | 4 (2 bedrooms, 2 other), 1 bathroom |
| Plan | 1 totals |
Costs
| Minimum bid | € 23.904 |
| Price per m2 | 392 €/m2 |
Energy efficiency
| Energy rating | F |
Floor plans
Address and map
Via Renato Quartini 22, Genova - neighborhood Rivarolo
Mortgage calculation
Selling price:
Advance
20,00
Mortgage
80,00
Rate: -+
Payment: 68 per month
The results are an indicative estimate based on the data entered and do not constitute a financial offer.
Advertiser

DOMY ONLINE S.R.L.
Via San Lorenzo 5 Int. 41, Genova
Show Phone
Show Mobile
Call
CONTACT

