Three-room apartment Via Doberdo' 22, Milano
€ 412.000
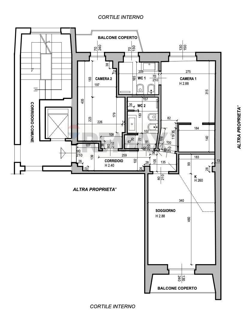
TRILOCALE COMPLETAMENTE RISTRUTTURATO LIBERO SUBITO VIA DOBERDÒ 22, MILANO In contesto civile ben tenuto con servizio di portineria e ascensore, proponiamo in vendita splendido trilocale completamente ristrutturato a nuovo, situato al 4° piano. Limmobile si distingue per lottima distribuzione degli spazi e la doppia esposizione, che garantisce luminosità durante tutto larco della giornata. Composizione: Ingresso su disimpegno, ampia zona giorno con cucina a vista, due camere da letto, doppi servizi di cui uno en suite Finiture e dotazioni: Ristrutturazione completa con materiali di pregio Pavimentazione in parquet Infissi in PVC doppio vetro con taglio termico Bagni moderni in gres di design Aria condizionata con pompa di calore Impianti nuovi Stabile: Ascensore Servizio di portineria Zona: Limmobile è inserito in una zona ben servita, con: Mezzi pubblici (tram, autobus e metropolitana) nelle immediate vicinanze Supermercati, farmacie e negozi di prima necessità Scuole e servizi educativi Aree verdi e spazi per il tempo libero Soluzione ideale per chi cerca un appartamento moderno, pronto da abitare, in una posizione comoda e ben collegata. LIBERO SUBITO Se fosse interessato ad una valutazione GRATUITA e SENZA IMPEGNO del Suo immobile, siamo a Sua completa disposizione! Ti informiamo, inoltre, che la nostra struttura offre CONSULENZE DI MUTUO GRATUITE CON TASSI AGEVOLATI. La presente scheda non vincola in alcun modo l'agenzia immobiliare non costituisce forma di contratto, le informazioni qui contenute sono da ritenersi del tutto indicative e non potranno essere utilizzate come parte integrante in un eventuale contratto di vendita o locazione della proprietà.
Main data
| Reference | 37881242-4 |
| Ad date | 21/03/2026 |
| Contract | Sale |
| Typology | Apartment |
| Surface | 78 m2 |
| Locals | 3 (2 bedrooms, 1 other), 2 bathrooms, kitchen on sight |
| Plan | 4 from 7 totals |
| Construction type | Signorile |
| Occupied | Free |
| Garage | Absent |
| Furniture | Partial |
Costs
| Price | 412.000 € |
| Price per m2 | 5.282 €/m2 |
Energy efficiency
| Status | Partially restored |
| Heating | Semi-autonomous |
| Energy rating | D |
| Energy Performance Index (IPE) | 156 kWh/m2 year |
Floor plans
Virtual tour
Address and map
Via Doberdo'
22, Milano
Ad without map,
try asking the advertiser for the position
try asking the advertiser for the position
Mortgage calculation
Selling price:
Advance
20,00
Mortgage
80,00
Rate: -+
Payment: 1.178 per month
The results are an indicative estimate based on the data entered and do not constitute a financial offer.
Advertiser

RE/MAX Class 4
Via Cenisio, 14, Milano
Show Phone
Call
CONTACT

