Independent house Via Beltrami 20, Portogruaro
€ 197.000
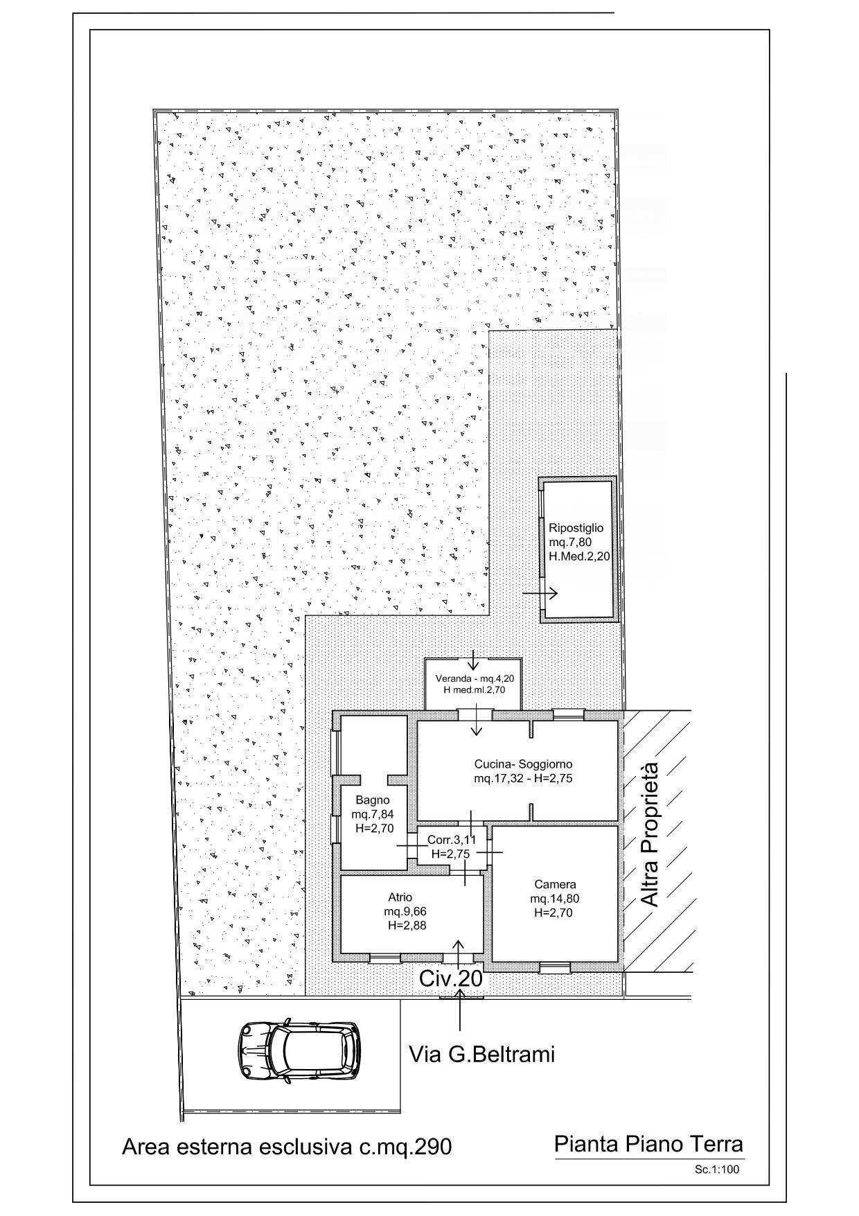
Villetta Indipendente con due camere, bagno e giardino privato in vendita a Portogruaro. A pochi minuti dal centro storico di Portogruaro proponiamo in vendita una villetta indipendente sviluppata su un unico livello, soluzione ideale per chi desidera una casa autonoma e riservata senza rinunciare alla comodità dei principali servizi. Laccesso allabitazione avviene direttamente dal giardino privato situato sul retro della casa, una caratteristica che garantisce un elevato livello di privacy e tranquillità. Allingresso troviamo un comodo disimpegno con armadiatura a muro, dal quale si accede alla zona giorno open space, composta da una cucina abitabile e dal soggiorno. La zona notte, separata dalla zona giorno tramite un secondo disimpegno, è composta da: una camera matrimoniale padronale una camera singola Completa la zona notte un bagno finestrato, dotato di vasca idromassaggio, ideale per momenti di relax. L'immobile è dotato di impianto di riscaldamento autonomo con radiatori e di un sistema di climatizzazione estiva tramite split, così da poter garantire comfort in ogni stagione. Allesterno la proprietà dispone di un giardino privato di circa 200 mq, perfetto per trascorrere momenti allaria aperta o per chi desidera uno spazio verde per i propri amici a quattro zampe. Completano la proprietà un ripostiglio esterno e un posto auto scoperto. Un ulteriore valore aggiunto è rappresentato dalla possibilità di ampliamento dellimmobile fino a 19 mq sul retro dellabitazione, intervento già approvato dal Comune di Portogruaro, unopportunità interessante per chi desidera personalizzare ulteriormente gli spazi della villetta. A rendere questa soluzione ancora più interessante è limportante intervento di ristrutturazione completa eseguito nel settembre 2020, che ha interessato lintero immobile. In tale occasione sono stati completamente rifatti gli impianti elettrico e idrico, oltre alla posa del nuovo pavimento in tutta la casa. Le pareti interne sono state completamente rifatte e ridistribuite secondo una planimetria aggiornata; anche le parti in sasso sono state realizzate ex novo, in quanto precedentemente non presenti. Particolare attenzione è stata dedicata allefficienza energetica grazie allisolamento del tetto realizzato con lana di roccia dello spessore di 12 cm e allisolamento delle pareti tramite struttura in cartongesso da 7 cm con inserimento di lana di roccia e lastra da 15 mm. Sono stati inoltre sostituiti il climatizzatore e verificati gli impianti con relativo aggiornamento del libretto per APE, mentre la caldaia è stata sottoposta a regolare revisione. Lesterno delledificio è stato oggetto di tinteggiatura, così come le grondaie, che sono state sistemate e rinnovate. È stata eseguita anche la ripassatura del tetto, la realizzazione di controsoffitti interni e la sostituzione completa di tutti gli infissi e delle porte interne. Gli ambienti interni sono stati completamente tinteggiati, mentre allesterno sono stati rifatti il marciapiede e sistemato il giardino, rendendo la proprietà pronta da vivere senza necessità di ulteriori interventi. Per maggiori informazioni su questa villetta indipendente con due camere, bagno e giardino privato in vendita a Portogruaro, contatta l'agenzia impREsa di Pordenone al numero 0434-311665 chiedendo dell'immobile con riferimento I/LM024ID. Trovi questa e molte altre proposte sul nostro sito www.impresaimmobiliare.com
Main data
| Reference | I/LM024ID |
| Ad date | 21/03/2026 |
| Contract | Sale |
| Typology | Independent house |
| Surface | 75 m2 |
| Locals | 3 (2 bedrooms, 1 other), 1 bathroom, kitchen on sight |
| Plan | Earth |
| Occupied | Free |
| Garage | Absent |
| Number of parking spaces | 1 |
Costs
| Price | 197.000 € |
| Price per m2 | 2.627 €/m2 |
Energy efficiency
| Status | Good |
| Heating | Autonomous |
| Energy rating | C |
| Energy Performance Index (IPE) | 218 kWh/m2 year |
Floor plans
Virtual tour
Address and map
Via Beltrami
20, Portogruaro
Ad without map,
try asking the advertiser for the position
try asking the advertiser for the position
Mortgage calculation
Selling price:
Advance
20,00
Mortgage
80,00
Rate: -+
Payment: 563 per month
The results are an indicative estimate based on the data entered and do not constitute a financial offer.
Advertiser

impREsa Pordenone
via Bertossi, 4, Pordenone
Show Phone
Call
CONTACT

