Two-room apartment Via Giovan Battista Aleotti, Argenta
€ 87.000Bilocale in vendita
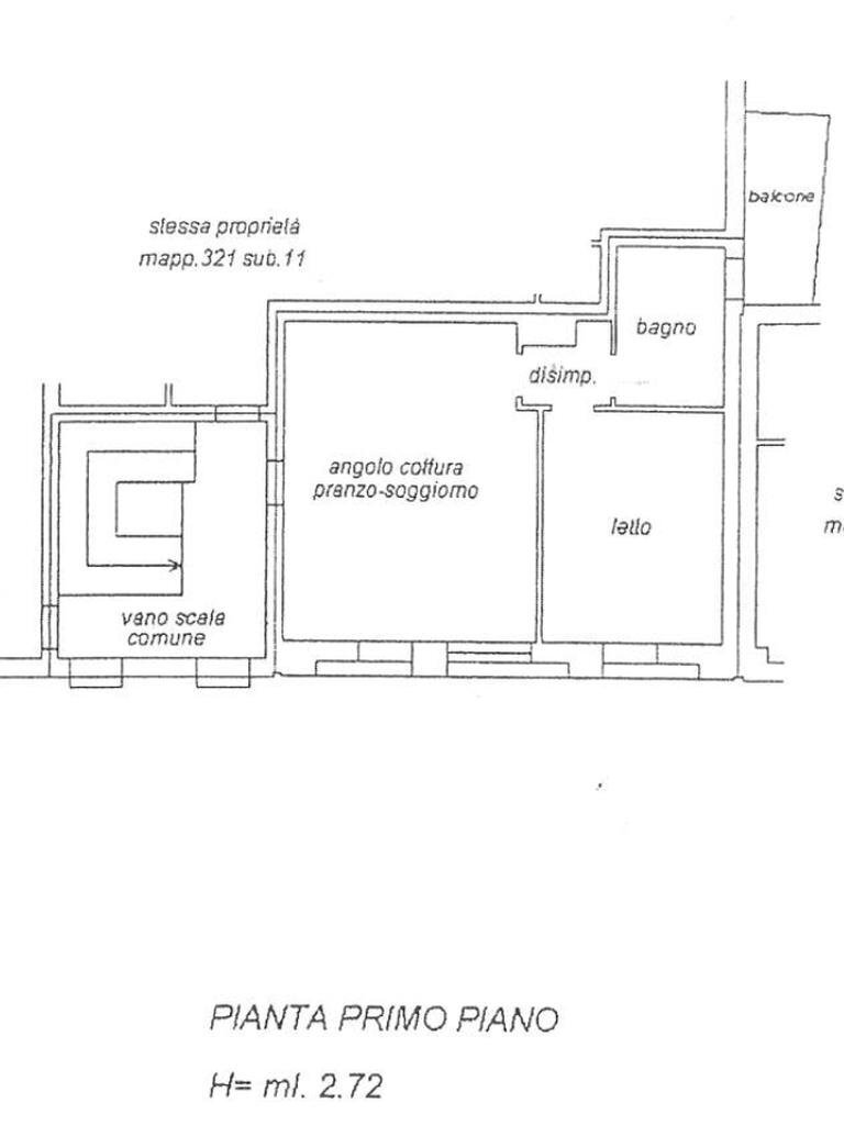
Argenta. Nel centro del paese, in recente palazzina, proponiamo questa soluzione di appartamento bilocale al primo piano comodo. Ingresso su luminoso soggiorno, ampia zona cottura. Disimpegno, camera matrimoniale e bagno con balcone. La soluzione si caratterizza per le ampie vetrate che offrono buona luminosità all'immobile. La posizione centrale, permette di raggiungere a piedi tutti i servizi del paese. attualmente locato ad inquilino referenziato con contratto in scadenza al 31/07/2028 Ideale per chi cerca per investimento con inquilino referenziato già presente.
Main data
| Reference | 61194554 |
| Ad date | 20/03/2026 |
| Contract | Sale |
| Typology | Apartment |
| Surface | 60 m2 |
| Locals | 2 (2 other), 1 bathroom |
| Plan | 1 from 2 totals |
Costs
| Price | 87.000 € |
| Price per m2 | 1.450 €/m2 |
| Condominium fees | €17,00/month |
Energy efficiency
| Year built | 2006 |
| Heating | Autonomous |
| Heating Power Type | Methane |
| Energy rating | B |
| Energy performance index (EP GL, NREN ) | 54.8 kWh/m3 year |
Floor plans
Address and map
Via Giovan Battista Aleotti, Argenta
Mortgage calculation
Selling price:
Advance
20,00
Mortgage
80,00
Rate: -+
Payment: 249 per month
The results are an indicative estimate based on the data entered and do not constitute a financial offer.
Advertiser
Call
CONTACT

