Villa Frazione Bricco Visconti Sud, 14, Valfenera
€ 169.000Cascinale ristrutturato con giardino e 2.800 mq di terreno
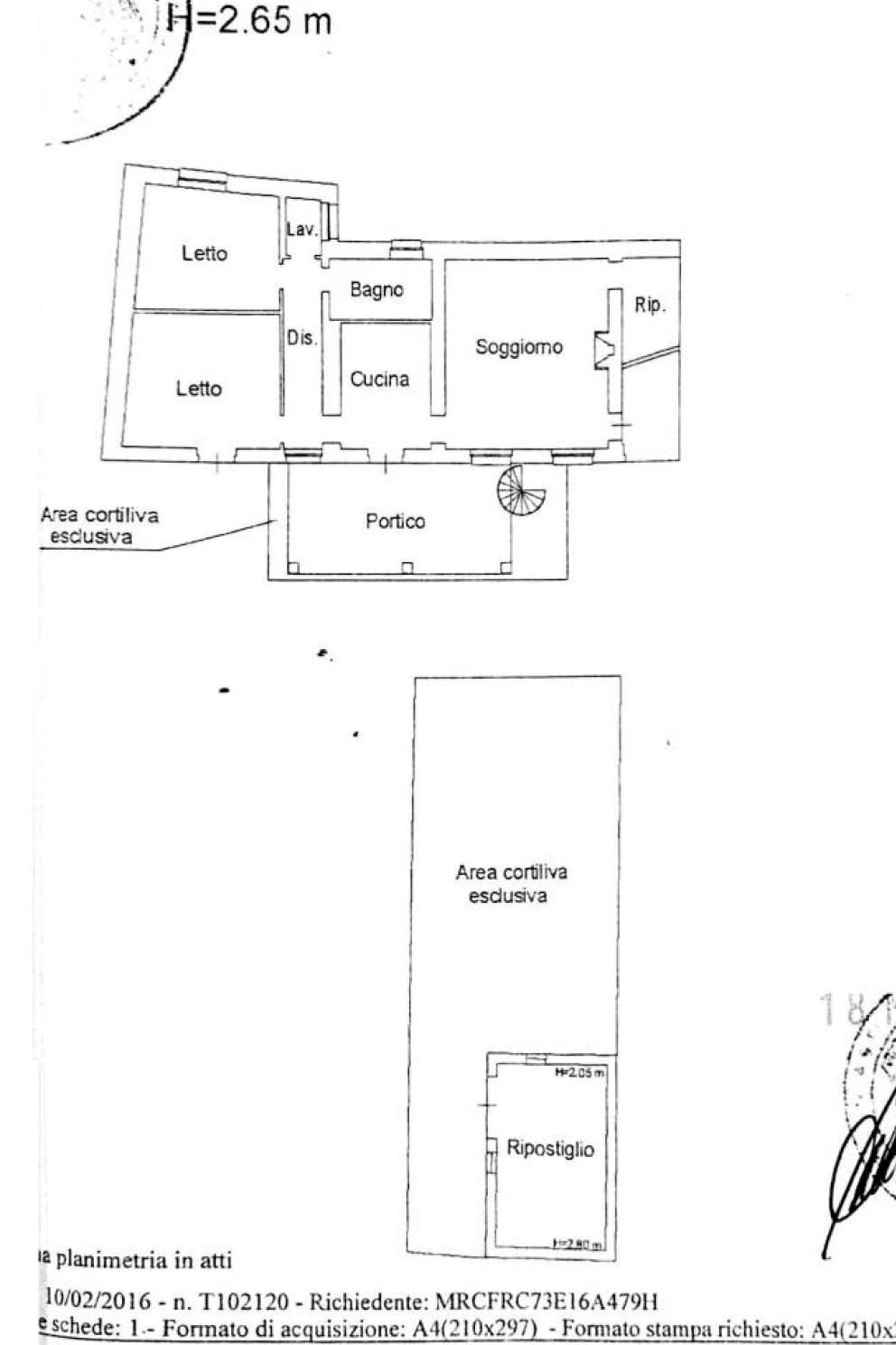
VALFENERA – PORZIONE DI CASCINALE RISTRUTTURATO CON GIARDINO E TERRENI AGRICOLI Nel verde delle colline astigiane, in posizione panoramica dominante, proponiamo in vendita affascinante porzione di cascinale storico indipendente su due lati, ristrutturato con cura e immerso nella tranquillità della natura. La proprietà conserva il fascino autentico della tradizione piemontese, unito al comfort degli spazi abitativi ben organizzati. L’immobile si sviluppa su due livelli per una superficie complessiva di circa 200 mq, ed è attualmente suddiviso in due alloggi indipendenti, soluzione ideale per due nuclei familiari, genitori e figli oppure per chi desidera abitazione principale con unità per ospiti. Composizione Piano Terra – circa 100 mq - Soggiorno con caminetto a legna - Cucinotta - Due camere da letto - Bagno - Lavanderia - Ampio porticato coperto, perfetto per pranzi e momenti conviviali all’aperto Primo Piano – circa 100 mq - Spazioso soggiorno - Cucina abitabile - Camera matrimoniale - Camera ragazzi - Bagno - Ripostiglio - Balcone panoramico con vista sul verde circostante Spazi esterni La proprietà è circondata da giardino privato di oltre 300 mq, ideale per vivere pienamente gli spazi all’aperto, organizzare pranzi in famiglia, creare un’area giochi per bambini o uno spazio dedicato agli animali. Completano la proprietà: - Cantina al piano interrato - Due ricoveri attrezzi in muratura nel giardino - Due terreni agricoli inclusi nel prezzo, situati fronte e retro abitazione, rispettivamente di circa 1.088 mq e 1.780 mq, ideali per orto, frutteto o coltivazioni. Caratteristiche principali - Cascinale ristrutturato - Superficie abitativa circa 200 mq - Due unità abitative indipendenti - Giardino privato 300 mq - Terreni agricoli inclusi oltre 2.800 mq - Cantina - Due ricoveri attrezzi in muratura - Contatori luce e metano indipendenti - Classe energetica F – IPE 248,96 kWh/m² anno Una soluzione ideale per - Chi desidera vivere immerso nella natura senza rinunciare agli spazi e alla comodità di una casa ristrutturata - Due famiglie che vogliono abitare vicine mantenendo la propria indipendenza - Amanti degli animali, dell’orto e della vita all’aria aperta Una proprietà dal grande fascino rurale, perfetta per chi cerca tranquillità, panorama e spazi verdi. Contattaci per maggiori informazioni o per prenotare una visita.
Main data
| Reference | ID3002690 |
| Ad date | 02/03/2026 |
| Contract | Sale |
| Typology | Villa |
| Surface | 232 m2 |
| Locals | more than 5 (4 bedrooms, 3 other), 2 bathrooms, kitchen habitable |
| Plan | 2 totals |
| Construction type | Signorile |
| Number of balconies | 1 |
| Garage | Double |
| Number of parking spaces | 1 |
| Furniture | Absent |
Costs
| Price | 169.000 € |
| Price per m2 | 728 €/m2 |
Energy efficiency
| Year built | 1930 |
| Status | Excellent |
| Heating | Autonomous |
| Energy rating | F |
| Energy Performance Index (IPE) | 175 kWh/m2 year |
Floor plans
Address and map
Frazione Bricco Visconti Sud, 14, Valfenera
Mortgage calculation
Selling price:
Advance
20,00
Mortgage
80,00
Rate: -+
Payment: 483 per month
The results are an indicative estimate based on the data entered and do not constitute a financial offer.
Advertiser

Reximm Real Estate
viale stazione 1, Moncalieri
Show Mobile
Call
CONTACT

